Hayes Road, Paignton
By Amanda Ayshford Estate Agents
£ 139,950
Reviews
3 out of 5 stars
Amanda Ayshford Estate Agents says ..
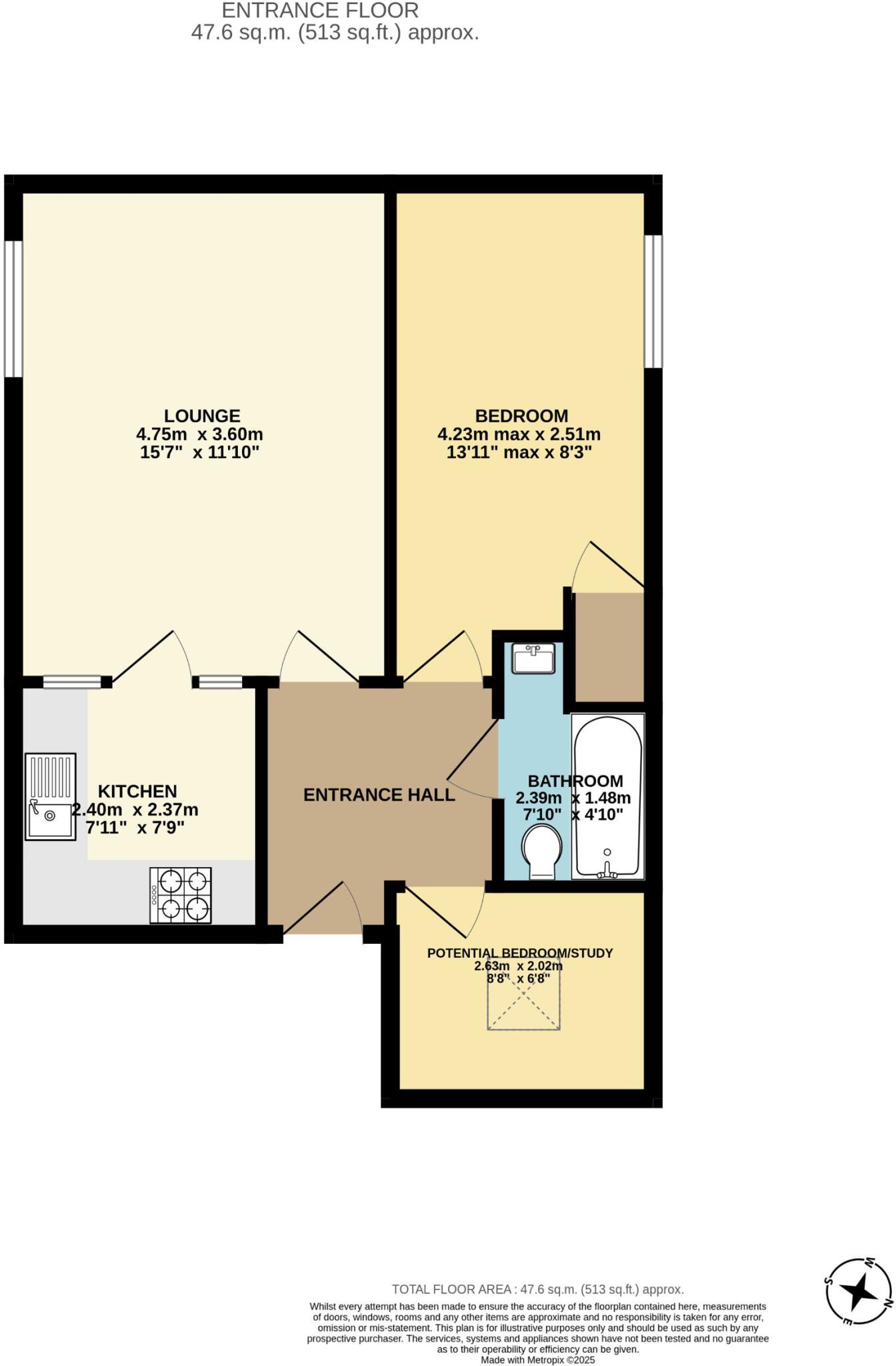
A purpose built first floor flat offering two bedrooms, lounge/dining room, fitted kitchen and bathroom/WC, allocated parking space and no onward chain.
Property Oracle says ..
This property is a two bedroom flat located on Hayes Road in Paignton, Devon. The flat is situated close to Hayes School (0.07km) and other amenities. While the provided images show the property to be in a generally clean condition, it appears dated and could benefit from some modernisation. The kitchen and bathroom are particularly basic. The property includes residents and visitors parking. The list price of £139,950 is significantly lower than the average house price in the area (£351,751), and the average price per sqft is also lower (£332 compared to the area average of £332). However, it is important to note that the average house price and price per sqft are based on larger properties than this flat. The smaller size of the flat and its need for modernisation should be considered when assessing the value.
Therefore, we give this property 6 / 10. *Disclaimer: This is our option and does constitute a recommendation or financial advice. Do your own research. *
- Price
- 8
- Condition
- 6
- Location
- 7
- Land
- 3
- Bedrooms
- 2
- Bathrooms
- 1
- Sqft (est)
- 454.45
- Lot (est)
- 512.36
The heatmap indicates the level of crime in the area. The color of the heatmap indicates the crime severity and recency.
Metrics Year-on-Year
- Average area value
- 277,075.00 £Decreased by 13.22 %
- Est sale value
- 140,425.05 £Decreased by 4.04 %
- Average area rental value
- 1,317.00 £/moIncreased by 38.63 %
- Est letting value
- 454.45 £/mo
- Est rental Yield
- 5.70 %Increased by 59.66 %
- Crime Rate
- 3.00 %Unchanged by 0.00 %
Agent Activity
Amanda Ayshford Estate Agents created the listing.
Nearby Schools
| Name | Type | Ofsted | Distance |
|---|---|---|---|
| Hayes School | Academy Converter | Good | 0.07 KM |
| St Michael'S Church Of England Academy | Free Schools | 0.77 KM | |
| Paignton Academy | Academy Converter | Good | 0.95 KM |
| Curledge Street Children'S Centre | Children's Centre Linked Site | 0.98 KM | |
| Curledge Street Academy | Academy Converter | Good | 1.03 KM |
Images
Nearby Streets
| Name | Average Price | Average Sqft | Distance |
|---|---|---|---|
| Brantwood Close | £ 425,000 | 0 | 0.00 KM |
| St. Michael's Road Rear | £ 0 | 0 | 0.00 KM |
| Clifton Gardens | £ 0 | 0 | 0.00 KM |
| St. Mary's Court | £ 0 | 0 | 0.00 KM |
| York Gardens | £ 0 | 0 | 0.00 KM |
Nearby Transport
| Name | NLC | TLC | Distance |
|---|---|---|---|
| Paignton | 3427 | PGN | 1.49 KM |
| Torquay | 3434 | TQY | 5.13 KM |
| Torre | 3432 | TRR | 5.92 KM |
Nearby Listings
| Address | Price | Type | Score | Distance |
|---|---|---|---|---|
| Hayes Road, Paignton | £ 269,950 | BUY | 7 / 10 | 0.00 KM |
| Hayes Road, Paignton | £ 230,000 | BUY | 7 / 10 | 0.00 KM |
| Hayes Road, Paignton | £ 139,950 | BUY | 6 / 10 | 0.00 KM |
| Hayes Mews, Hayes Road, Paignton, TQ4 | £ 130,000 | BUY | 4 / 10 | 0.02 KM |
| Hayes Road, Paignton | £ 230,000 | BUY | 6 / 10 | 0.03 KM |
Nearby Properties
| Address | Price | Distance |
|---|---|---|
| 33 Hayes Road | £ 125,000 | 0.02 KM |
| 31 Hayes Road | £ 112,000 | 0.02 KM |
| 27 Hayes Road | £ 143,000 | 0.02 KM |
| 22a Hayes Road | £ 182,500 | 0.02 KM |
| 26 Hayes Road | £ 283,000 | 0.02 KM |