HA
8 Montford Bridge Shrewsbury, SY4 1EB
By Halls Estate Agents
£ 229,500
Reviews
3 out of 5 stars
Halls Estate Agents says ..
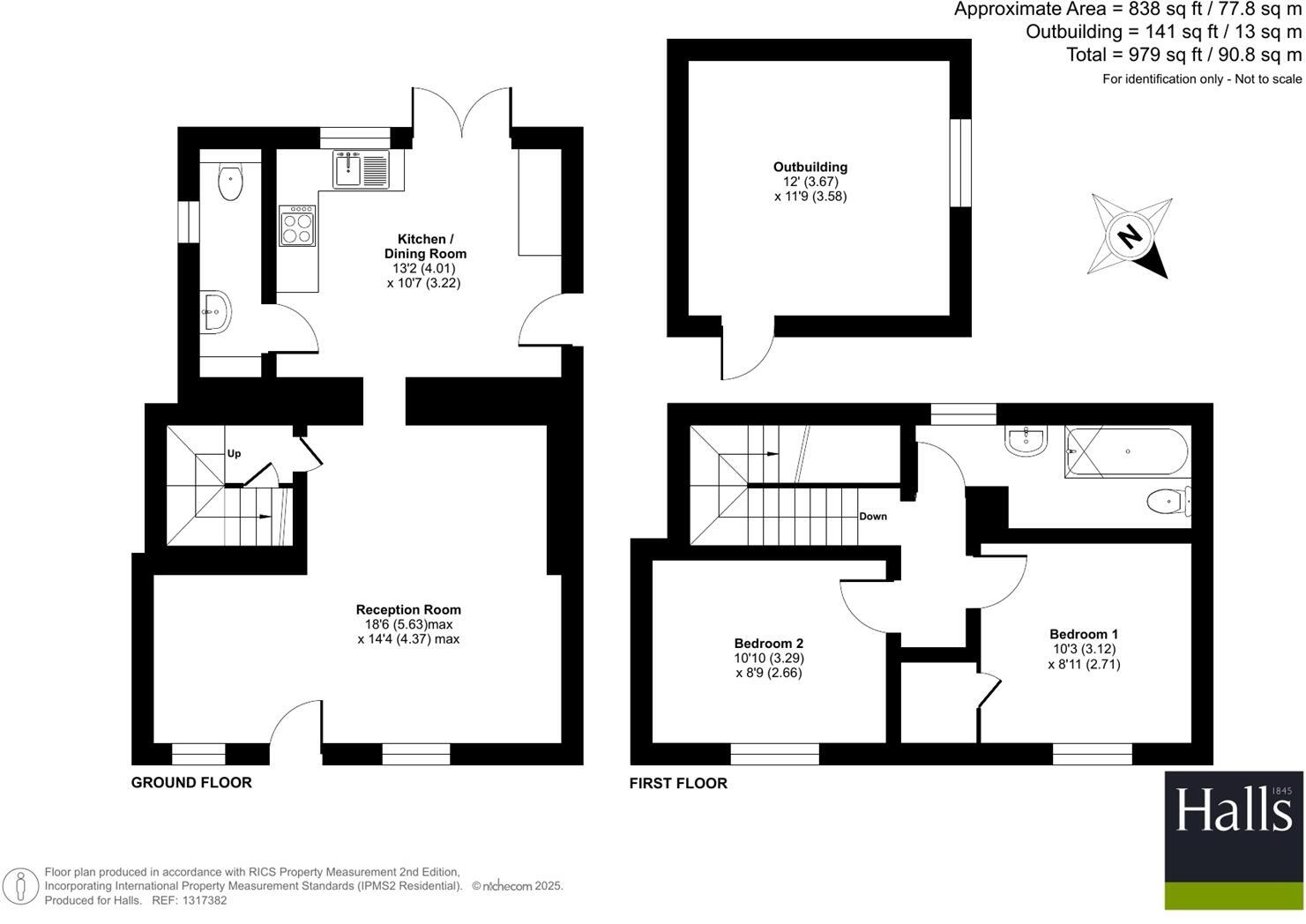
An attractively appointed and improved mature semi-detached cottage, offering well proportioned rooms and character features, set with parking and south facing gardens in this most popular village locality.
Property Oracle says ..
Therefore, we give this property 7 / 10. *Disclaimer: This is our option and does constitute a recommendation or financial advice. Do your own research. *
- Price
- 6
- Condition
- 8
- Location
- 7
- Land
- 7
- Bedrooms
- 2
- Bathrooms
- 1
- Sqft (est)
- 731.88
The heatmap indicates the level of crime in the area. The color of the heatmap indicates the crime severity and recency.
Metrics Year-on-Year
- Average area value
- 243,278.00 £Decreased by 3.15 %
- Est sale value
- 229,078.44 £Increased by 28.81 %
- Average area rental value
- 1,186.00 £/moIncreased by 12.42 %
- Est letting value
- 731.88 £/moUnchanged by 0.00 %
- Est rental Yield
- 5.85 %Increased by 16.07 %
- Crime Rate
- 0.00 %
from 251,196.00 £
from 177,846.84 £
from 1,055.00 £/mo
from 731.88 £/mo
from 5.04 %
from 0.00 %
Agent Activity
Halls Estate Agents created the listing.
Nearby Schools
| Name | Type | Ofsted | Distance |
|---|---|---|---|
| Bicton Cofe Primary School And Nursery | Voluntary Controlled School | Requires improvement | 2.45 KM |
| Condover College Limited | Special Post 16 Institution | Good | 3.21 KM |
| Trinity Cofe Primary School | Voluntary Controlled School | Good | 3.38 KM |
| Oxon Cofe Primary School | Voluntary Controlled School | Outstanding | 4.67 KM |
| Adcote School For Girls | Other Independent School | 4.85 KM |
Images
Nearby Streets
| Name | Average Price | Average Sqft | Distance |
|---|---|---|---|
| The Crescent | £ 252,429 | 0 | 0.00 KM |
| Highfield | £ 0 | 0 | 0.00 KM |
Nearby Listings
| Address | Price | Type | Score | Distance |
|---|---|---|---|---|
| 8 Montford Bridge Shrewsbury, SY4 1EB | £ 229,500 | BUY | 7 / 10 | 0.00 KM |
| Montford Bridge, Shrewsbury | £ 400,000 | BUY | 6 / 10 | 0.05 KM |
| 44 The Crescent, Montford Bridge, Shrewsbury, SY4 1EA | £ 195,000 | BUY | 7 / 10 | 0.11 KM |
| Yell Bank, Montford Bridge | £ 599,995 | BUY | Unknown | 0.38 KM |
| Preston Montford, Shrewsbury, SY4 | £ 390,000 | BUY | 7 / 10 | 0.67 KM |
Nearby Properties
| Address | Price | Distance |
|---|---|---|
| 17 The Crescent | £ 260,000 | 0.19 KM |
| 14 The Crescent | £ 146,000 | 0.19 KM |
| 13 The Crescent | £ 145,000 | 0.19 KM |
| 22 The Crescent | £ 245,000 | 0.19 KM |
| 8 The Crescent | £ 138,000 | 0.19 KM |