Kingsgate Place, Broadstairs, CT10 3AZ
By Elivia Homes Eastern
£ 1,345,000
Reviews
4 out of 5 stars
Elivia Homes Eastern says ..
Just Released - A stunning 6 bedroom home finished to a high standard with far reaching views across the golf course to Joss Bay
Property Oracle says ..
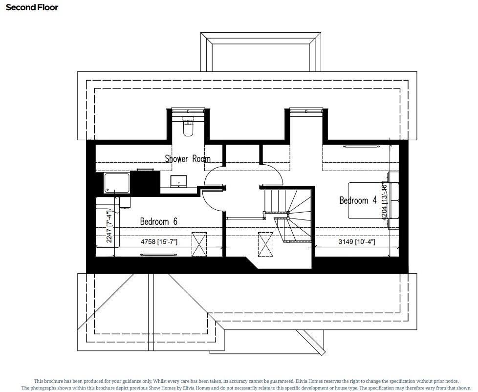
Kingsgate Place is located in Broadstairs, a town in the Thanet district of Kent. The property is a detached house with six bedrooms and four bathrooms, and a list price of £1,345,000. The average house price in the area is significantly lower at £439,763, and the average price per square foot is £339. The property’s plot size is not specified.
The area benefits from relatively close proximity to several Southeastern train stations, including Broadstairs, Dumpton Park, Ramsgate, and Margate, offering convenient transport links. Several schools are within a reasonable distance, including St Peter-In-Thanet Cofe Junior School (rated ‘Good’ by Ofsted) and Callis Grange Nursery And Infant School (rated ‘Outstanding’). This positively impacts the desirability and value of properties in the area.
Based on the provided images, the property appears to be a new build, or very recently constructed. The architecture is modern, with a traditional aesthetic. The property is presented in excellent condition, with high-quality finishes and landscaping visible. The presence of a garage is also evident from the images.
Given the property’s modern construction, excellent condition, and desirable location near good schools and transport links, the list price of £1,345,000 is likely to be at the higher end of the market in this area. However, the lack of plot size information prevents a definitive conclusion on the land value. The significantly higher price compared to area averages suggests that the property’s size, features, and condition justify the premium. Further investigation into comparable properties of similar size and specification in the immediate vicinity would provide a more precise assessment of its value.
Therefore, we give this property 8 / 10. *Disclaimer: This is our option and does constitute a recommendation or financial advice. Do your own research. *
- Price
- 7
- Condition
- 10
- Location
- 9
- Land
- 0
- Bedrooms
- 6
- Bathrooms
- 4
- Sqft (est)
- 28,558.00
The heatmap indicates the level of crime in the area. The color of the heatmap indicates the crime severity and recency.
Metrics Year-on-Year
- Average area value
- 544,999.00 £Increased by 38.50 %
- Est sale value
- 2,627,336.00 £Decreased by 75.20 %
- Average area rental value
- 1,440.00 £/moIncreased by 6.67 %
- Est letting value
- 0.00 £/moDecreased by 100.00 %
- Est rental Yield
- 3.17 %Decreased by 23.06 %
- Crime Rate
- 4.00 %Unchanged by 0.00 %
Agent Activity
Elivia Homes Eastern created the listing.
Nearby Schools
| Name | Type | Ofsted | Distance |
|---|---|---|---|
| St Peter-In-Thanet Cofe Junior School | Voluntary Aided School | Good | 0.47 KM |
| Callis Grange Nursery And Infant School | Community School | Outstanding | 0.54 KM |
| Callis Grange Children'S Centre | Children's Centre | 0.66 KM | |
| St Joseph'S Catholic Primary School, Broadstairs | Academy Converter | Good | 1.09 KM |
| Kms Kent Ltd | Special Post 16 Institution | 1.57 KM |
Images
Nearby Streets
| Name | Average Price | Average Sqft | Distance |
|---|---|---|---|
| Astor Road | £ 0 | 0 | 0.00 KM |
| Churchfields | £ 765,000 | 0 | 0.00 KM |
| Cedar Close | £ 411,250 | 0 | 0.00 KM |
| The Paddocks | £ 657,778 | 0 | 0.00 KM |
| The Oaks | £ 612,833 | 0 | 0.00 KM |
Nearby Transport
| Name | NLC | TLC | Distance |
|---|---|---|---|
| Broadstairs | 5006 | BSR | 1.53 KM |
| Dumpton Park | 5034 | DMP | 3.24 KM |
| Ramsgate | 5023 | RAM | 4.64 KM |
| Margate | 5018 | MAR | 6.70 KM |
Nearby Listings
| Address | Price | Type | Score | Distance |
|---|---|---|---|---|
| Kingsgate Place, Broadstairs, CT10 3AZ | £ 1,350,000 | BUY | Unknown | 0.00 KM |
| Kingsgate Place, Broadstairs, CT10 3AZ | £ 1,250,000 | BUY | 9 / 10 | 0.00 KM |
| Kingsgate Place, Broadstairs, CT10 3AZ | £ 610,000 | BUY | 7 / 10 | 0.00 KM |
| Kingsgate Place, Broadstairs, CT10 3AZ | £ 600,000 | BUY | 8 / 10 | 0.00 KM |
| Kingsgate Place, Broadstairs, CT10 3AZ | £ 1,295,000 | BUY | 7 / 10 | 0.00 KM |
Nearby Properties
| Address | Price | Distance |
|---|---|---|
| 39 Reading Street | £ 285,000 | 0.00 KM |
| 46 Reading Street | £ 480,000 | 0.00 KM |
| 34 Reading Street | £ 232,000 | 0.00 KM |
| 35 Reading Street | £ 154,995 | 0.00 KM |
| 42 Reading Street | £ 290,000 | 0.00 KM |