Lister Road, Dursley
BE

Lister Road, Dursley

By Bennett Jones

£ 360,000

Reviews

3 out of 5 stars

Bennett Jones says ..

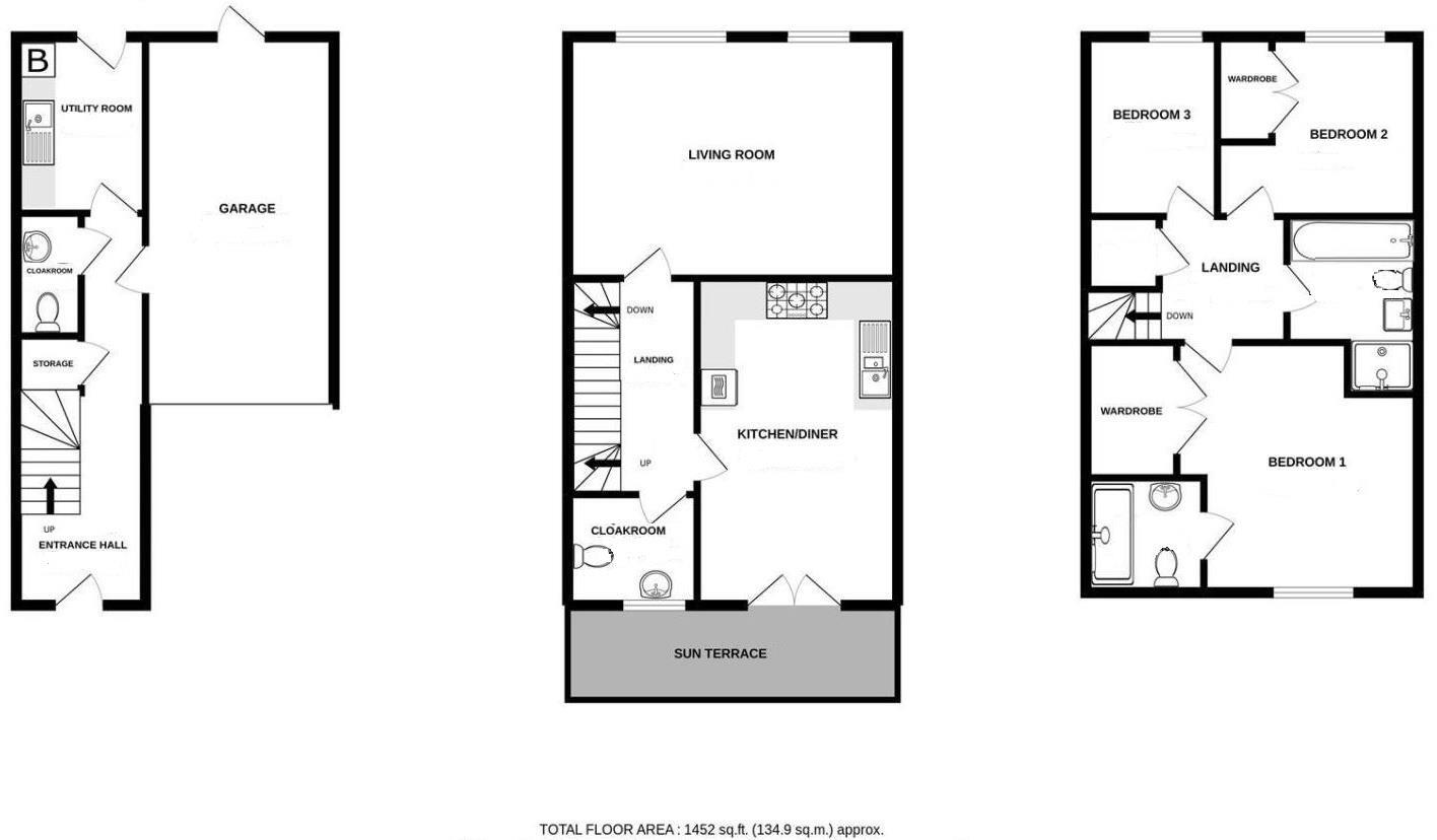
Immaculately presented and extremely spacious three bedroom semi-detached home, with full sized garage plus car port, constructed 2019 (4 years remaining on NHBC), well presented landscaped rear garden, first floor balcony/terrace, immaculate throughout, entrance hallway, cloakroom/4th WC, utilit...

Property Oracle says ..

This property is a modern three-bedroom semi-detached house located in Dursley, Gloucestershire. The list price is £360,000, and the property has 1,452 square feet of living space situated on a plot of the same size. The property benefits from a modern kitchen and bathrooms, as well as a garden and a parking space. There are two good schools within a short distance of the property. The average house price in the area is £245,826, with an average price per square foot of £251. While there are some nearby properties that have sold for more, there are also others that have sold for less. The asking price seems reasonable given the condition, location, and amenities.

Therefore, we give this property 7 / 10. *Disclaimer: This is our option and does constitute a recommendation or financial advice. Do your own research. *

Price
7
Condition
9
Location
8
Land
7
Bedrooms
3
Bathrooms
2
Sqft (est)
1,452.00
Lot (est)
1,452.00

The heatmap indicates the level of crime in the area. The color of the heatmap indicates the crime severity and recency.

Metrics Year-on-Year

Average area value
251,538.00 £
Increased by 21.55 %
from 206,948.00 £
Est sale value
300,564.00 £
Decreased by 4.17 %
from 313,632.00 £
Average area rental value
754.00 £/mo
Decreased by 18.22 %
from 922.00 £/mo
Est letting value
0.00 £/mo
from 0.00 £/mo
Est rental Yield
3.60 %
Decreased by 32.71 %
from 5.35 %
Crime Rate
14.00 %
Unchanged by 0.00 %
from 14.00 %

Agent Activity

  • Bennett Jones created the listing.

Nearby Schools

NameTypeOfstedDistance
Peak AcademyAcademy Special Sponsor LedSerious Weaknesses0.55 KM
Rednock SchoolFoundation SchoolGood0.66 KM
Dursley Church Of England Primary AcademyAcademy Sponsor LedGood1.31 KM
Treetops Children'S CentreChildren's Centre1.31 KM
Cam Everlands Primary SchoolCommunity SchoolGood1.41 KM

Images

CP4_4253-2.jpg CP4_4304-2.jpg CP4_4289-2.jpg CP4_4295-2.jpg CP4_4327-2.jpg CP4_4334-2.jpg CP4_4270-2.jpg CP4_4263-2.jpg CP4_4259-2.jpg CP4_4266-2.jpg CP4_4276-2.jpg CP4_4280-2.jpg CP4_4318-2.jpg CP4_4283-2.jpg CP4_4287-2.jpg CP4_4313-2.jpg CP4_4316-2.jpg CP4_4325-2.jpg CP4_4331-2.jpg CP4_4311-2.jpg CP4_4292-2.jpg CP4_4250-2.jpg

Nearby Streets

NameAverage PriceAverage SqftDistance
Ashton Lane £ 228,33300.00 KM
Victoria Close £ 49,00000.00 KM
Foundry Rise £ 377,99500.00 KM
Lister Street £ 000.00 KM
Townsend Close £ 000.00 KM

Nearby Transport

NameNLCTLCDistance
Cam And Dursley3238CDU3.77 KM

Nearby Listings

AddressPriceTypeScoreDistance
Lister Road, Dursley £ 360,000BUY7 / 100.00 KM
The Cottonwood, Lister Gardens, Cam, GL11 £ 279,000BUY7 / 100.06 KM
Bailey Way, Dursley, Gloucestershire, GL11 £ 340,000BUY7 / 100.06 KM
Lister Road, Dursley £ 369,950BUY7 / 100.07 KM
Lister Road, Dursley £ 375,000BUY8 / 100.08 KM

Nearby Properties

AddressPriceDistance
4 Pedersen Close £ 130,0000.26 KM
48 Long Street £ 195,0000.28 KM
40 Long Street £ 220,0000.29 KM
50 Long Street £ 115,0000.29 KM
5 Chestal Terrace £ 227,5000.29 KM