Cavendish Residential says ..
A MODERNISED AND REFURBISHED 3 BEDOOM LINK-DETACHED HOUSE WITH GARAGE LOCATED IN AN ESTABLISHED RESIDENTIAL AREA CLOSE TO THE TOWN CENTRE. This attractive family home has benefitted from modernisation with enclosed porch, central hall, large through lounge with modern fireplace and wood ...
Property Oracle says ..
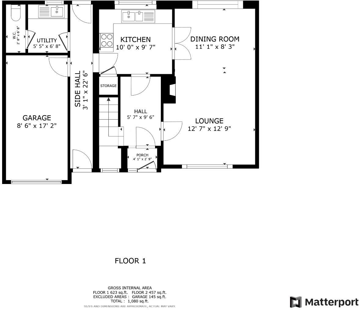
This property is a 3-bedroom, 1-bathroom house located in Ruthin, Denbighshire. Based on the photos, the property appears to be in good condition and has recently been modernised and refurbished. The property includes a garden, which is a desirable feature. The list price of £300,000 is slightly below the average price for the area (£363,878), and the property is larger than the average size (1080 sqft vs 929 sqft). Considering its condition, location, and included garden, the price seems reasonable.
Therefore, we give this property 7 / 10. *Disclaimer: This is our option and does constitute a recommendation or financial advice. Do your own research. *
- Price
- 8
- Condition
- 8
- Location
- 7
- Land
- 7
- Bedrooms
- 3
- Bathrooms
- 1
- Sqft (est)
- 1,080.00
The heatmap indicates the level of crime in the area. The color of the heatmap indicates the crime severity and recency.
Metrics Year-on-Year
- Average area value
- 326,418.00 £Decreased by 0.78 %
- Est sale value
- 360,720.00 £Increased by 1.52 %
- Average area rental value
- 1,459.00 £/moIncreased by 29.46 %
- Est letting value
- 1,080.00 £/moUnchanged by 0.00 %
- Est rental Yield
- 5.36 %Increased by 30.41 %
- Crime Rate
- 40.00 %Unchanged by 0.00 %
Agent Activity
Cavendish Residential created the listing.
Nearby Schools
| Name | Type | Ofsted | Distance |
|---|---|---|---|
| Borthyn V.C. Primary School | Welsh Establishment | 0.12 KM | |
| Ysgol Pen Barras | Welsh Establishment | 1.62 KM | |
| Rhos Street C.P. School | Welsh Establishment | 1.74 KM | |
| Ruthin School | Welsh Establishment | 2.13 KM | |
| Ysgol Brynhyfryd | Welsh Establishment | 2.34 KM |
Images
Nearby Streets
| Name | Average Price | Average Sqft | Distance |
|---|---|---|---|
| Stryd Y Wylan | £ 255,000 | 0 | 0.00 KM |
| Hen Lôn Parcwr | £ 0 | 0 | 0.00 KM |
| Castle Street | £ 425,000 | 0 | 0.00 KM |
| Ffordd yr Ysgol | £ 0 | 0 | 0.00 KM |
| Tan-y-Castell | £ 0 | 0 | 0.00 KM |
Nearby Listings
| Address | Price | Type | Score | Distance |
|---|---|---|---|---|
| Tyn Y Parc, Ruthin | £ 300,000 | BUY | 7 / 10 | 0.00 KM |
| Tyn Y Parc, Ruthin | £ 345,000 | BUY | 7 / 10 | 0.05 KM |
| Tyn Y Parc, Ruthin | £ 260,000 | BUY | Unknown | 0.07 KM |
| Tyn Y Parc, Ruthin | £ 300,000 | BUY | 7 / 10 | 0.08 KM |
| Mwrog Street, Ruthin, LL15 | £ 105,000 | BUY | 4 / 10 | 0.13 KM |
Nearby Properties
| Address | Price | Distance |
|---|---|---|
| 42 Mwrog Street | £ 130,000 | 0.11 KM |
| 50 Mwrog Street | £ 118,000 | 0.11 KM |
| 8 Mwrog Street | £ 114,000 | 0.11 KM |
| 98b Mwrog Street | £ 112,000 | 0.11 KM |
| 88 Mwrog Street | £ 92,000 | 0.11 KM |