Darlington Road, Heighington Village, Darlington, DL5
By J W Wood
£ 180,000
Reviews
2 out of 5 stars
J W Wood says ..
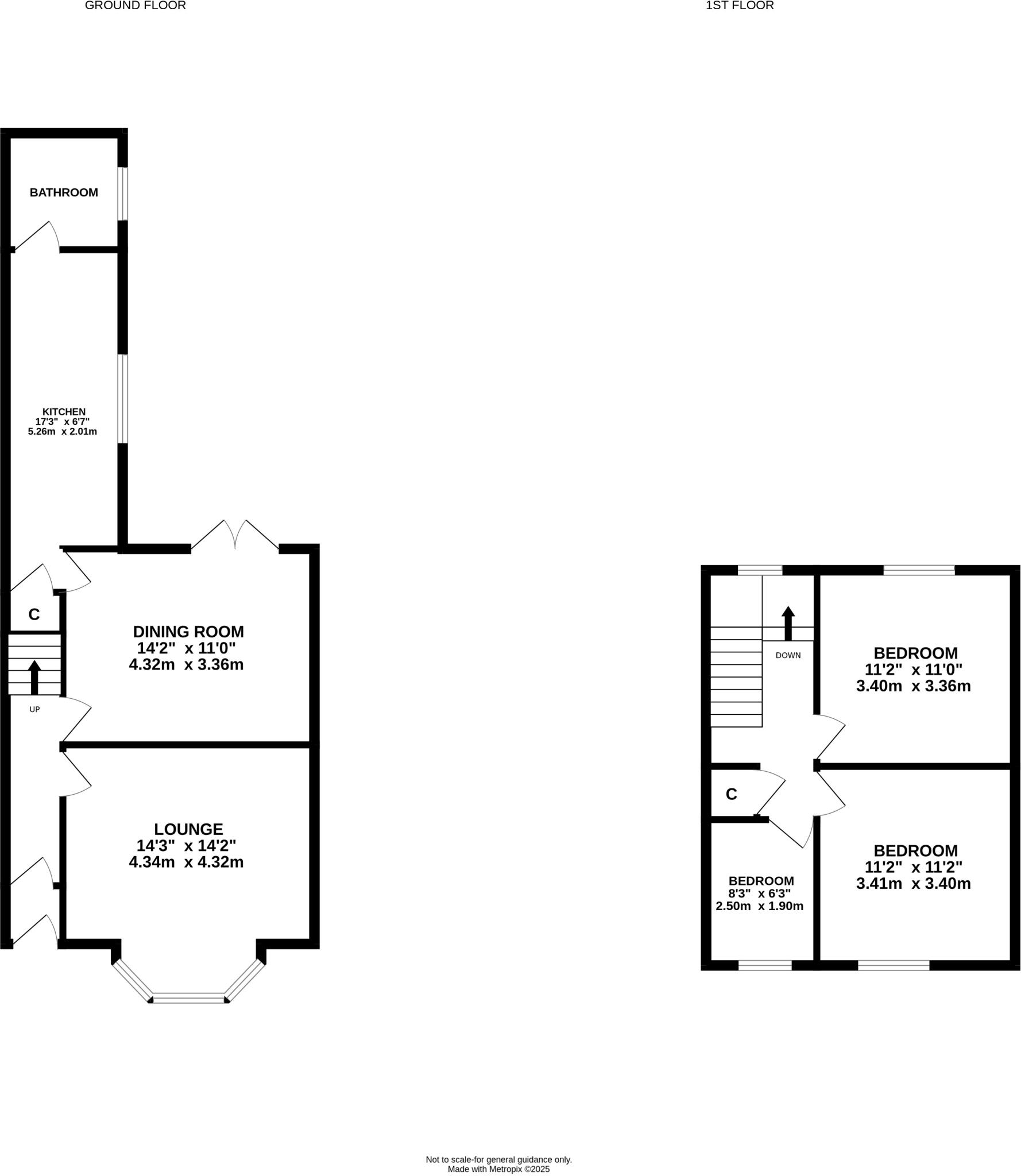
Occupying a pleasant position close to the beautiful village green in the popular, picturesque and historic village of Heighington, this is a deceptive period terrace offering well proportioned accommodation. In brief the property comprises on the vground floor; entrance lobby,entrance...
Property Oracle says ..
This three-bedroom terraced house in Heighington Village is listed at £180,000. Heighington is a desirable village location, with good local schools like Heighington Church of England Primary School (rated good by Ofsted) within a short distance. The property itself appears to be in reasonable condition based on the photos; however, there is limited information on the plot size. While the average house price in the area is significantly higher (£323,385), nearby comparable terraced houses have sold for prices ranging from £134,950 to £200,000. Given the average price per sqft in the area is £310 and this property is 854 sqft, a price closer to the lower end of the range might be expected. More information about the property’s condition and plot size would help determine if the asking price is reasonable.
Therefore, we give this property 5 / 10. *Disclaimer: This is our option and does constitute a recommendation or financial advice. Do your own research. *
- Price
- 5
- Condition
- 6
- Location
- 8
- Land
- 2
- Bedrooms
- 3
- Bathrooms
- 1
- Sqft (est)
- 854.00
The heatmap indicates the level of crime in the area. The color of the heatmap indicates the crime severity and recency.
Metrics Year-on-Year
- Average area value
- 222,749.00 £Decreased by 33.36 %
- Est sale value
- 73,444.00 £Decreased by 57.84 %
- Average area rental value
- 1,950.00 £/moIncreased by 136.94 %
- Est letting value
- 0.00 £/mo
- Est rental Yield
- 10.51 %Increased by 256.27 %
- Crime Rate
- 12.00 %Unchanged by 0.00 %
Agent Activity
J W Wood created the listing.
Nearby Schools
| Name | Type | Ofsted | Distance |
|---|---|---|---|
| Heighington Church Of England Primary School | Academy Converter | Good | 0.54 KM |
| Greenfield Community College, A Specialist Arts And Science School | Foundation School | Requires improvement | 3.28 KM |
| St Francis Cofe (Aided) Junior School | Voluntary Aided School | Good | 3.90 KM |
| Horndale Infants' School | Community School | Requires improvement | 3.91 KM |
| Byerley Park Primary School | Community School | Good | 4.03 KM |
Images
Nearby Streets
| Name | Average Price | Average Sqft | Distance |
|---|---|---|---|
| Water Lane | £ 0 | 0 | 0.00 KM |
| Buttercup Close | £ 0 | 0 | 0.00 KM |
| Hopelands Court | £ 0 | 0 | 0.00 KM |
| Manor Court | £ 0 | 0 | 0.00 KM |
| Clover Court | £ 0 | 0 | 0.00 KM |
Nearby Transport
| Name | NLC | TLC | Distance |
|---|---|---|---|
| Newton Aycliffe | 7834 | NAY | 3.64 KM |
| Heighington | 7887 | HEI | 3.81 KM |
| Shildon | 7893 | SHD | 4.21 KM |
| North Road (Darlington) | 7895 | NRD | 9.44 KM |
| Bishop Auckland | 7835 | BIA | 9.77 KM |
Nearby Listings
| Address | Price | Type | Score | Distance |
|---|---|---|---|---|
| Darlington Road, Heighington Village, Darlington, DL5 | £ 180,000 | BUY | 5 / 10 | 0.00 KM |
| Darlington Road, Heighington Village, DL5 | £ 200,000 | BUY | Unknown | 0.06 KM |
| South View, Heighington Village, Newton Aycliffe | £ 575,000 | BUY | 7 / 10 | 0.12 KM |
| Garthlands, Heighington Village, Newton Aycliffe, DL5 | £ 285,000 | BUY | Unknown | 0.16 KM |
| East Green, Heighington Village, Newton Aycliffe, Durham, DL5 6PP | £ 295,000 | BUY | Unknown | 0.20 KM |
Nearby Properties
| Address | Price | Distance |
|---|---|---|
| 17 Darlington Road | £ 410,000 | 0.05 KM |
| 6 Darlington Road | £ 140,000 | 0.05 KM |
| 12 Darlington Road | £ 134,950 | 0.05 KM |
| 11 Darlington Road | £ 380,000 | 0.05 KM |
| 5 Darlington Road | £ 308,000 | 0.05 KM |