Sunbury Mews, Edinburgh, EH4
MA

Sunbury Mews, Edinburgh, EH4

By Macgregor

£ 620,000

Reviews

2 out of 5 stars

Macgregor says ..

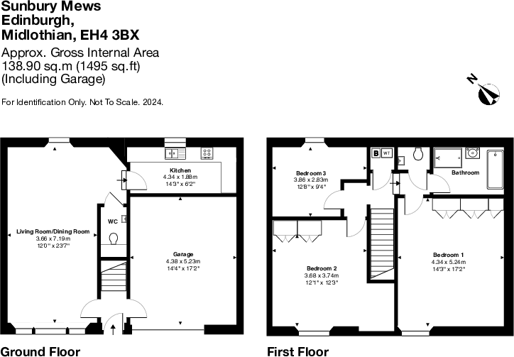
7 Sunbury Mews is a beautifully finished 3 bedroom mews house with garage on a beautiful cobbled street in Edinburgh's West End.

Property Oracle says ..

This three-bedroom mews house in Edinburgh’s Inverleith area presents a blend of attractive features and limitations. The property’s location in EH4 3BX benefits from its proximity to Haymarket train station, enhancing accessibility. While the provided information on nearby schools is limited, Edinburgh’s reputation for excellent education offers potential advantages that warrant further individual research. The property’s aesthetic appeal is significant; the interior images showcase a recently renovated or well-maintained space with modern and stylish design choices. However, a notable drawback is the apparent lack of outdoor space, something which could reduce value significantly for many buyers. The price of £620,000 requires a more thorough comparative market analysis to assess its reasonableness; additional data on price per square foot and plot size (currently unavailable) would significantly aid this evaluation. The absence of nearby comparable properties within the immediate vicinity adds to the difficulty in confirming the value for money. In conclusion, while the property’s condition and location are strong points, the lack of land and the need for further price analysis create a mixed outlook.

Therefore, we give this property 5 / 10. *Disclaimer: This is our option and does constitute a recommendation or financial advice. Do your own research. *

Price
7
Condition
8
Location
7
Land
1
Bedrooms
3
Bathrooms
2
Sqft (est)
1,495.11

The heatmap indicates the level of crime in the area. The color of the heatmap indicates the crime severity and recency.

Metrics Year-on-Year

Average area value
375,000.00 £
Decreased by 14.92 %
from 440,767.00 £
Est sale value
817,825.17 £
Increased by 42.08 %
from 575,617.35 £
Average area rental value
1,564.00 £/mo
Decreased by 5.95 %
from 1,663.00 £/mo
Est letting value
2,990.22 £/mo
Increased by 100.00 %
from 1,495.11 £/mo
Est rental Yield
5.00 %
Increased by 10.38 %
from 4.53 %
Crime Rate
0.00 %
from 0.00 %

Agent Activity

  • Macgregor created the listing.

Nearby Schools

NameTypeOfstedDistance
Merchiston Castle SchoolOffshore Schools5.75 KM
Cargilfield SchoolOffshore Schools9.06 KM

Images

Sunbury Mews Local area Water of Leith Guest WC Principal bedroom 2nd bedroom Main bathroom Separate WC Open Plan Living Turn key condition Kitchen 3rd bedroom Single garage

Nearby Streets

NameAverage PriceAverage SqftDistance
Sunbury Bridge £ 000.00 KM
Lord's Row £ 440,00000.00 KM
Magdala Mews £ 000.00 KM
Grosvenor Gardens £ 000.00 KM
Learmonth Gardens Lane £ 380,00000.00 KM

Nearby Transport

NameNLCTLCDistance
Haymarket9419HYM0.68 KM
Edinburgh9328EDB3.54 KM
Slateford9236SLA3.78 KM
Kingsknowe9217KGE6.15 KM
Wester Hailes9231WTA8.21 KM

Nearby Listings

AddressPriceTypeScoreDistance
22 Belford Mews, Edinburgh, EH4 3BT £ 585,000BUY7 / 100.05 KM
59 Belford Road, Edinburgh, £ 875,000BUY6 / 100.06 KM
59 Belford Road, Edinburgh, £ 798,000BUY6 / 100.06 KM
59A Belford Road, Edinburgh, £ 925,000BUY6 / 100.07 KM
Belford Road, West End, Edinburgh £ 900,000BUY6 / 100.07 KM