eXp UK says ..
REF/GP0453. Situated on one of most sought after roads in Eastcote this land has planning permission already granted to build a spacious family home. The property is within walking distance to Eastcote station, Cannon Lane Primary School and Pinner High School. For ...
Property Oracle says ..
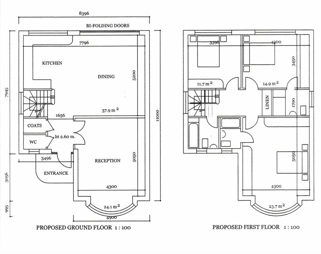
This property is a building plot located on Deane Croft Road in Pinner, HA5 1SP. The listing indicates planning permission has already been granted for a new build, which is a significant advantage, eliminating the often lengthy and expensive process of obtaining planning consent. The location is favourable for families, with good schools within easy walking distance, and reasonable access to public transport, although multiple transport options require travel by car or bus. The provided photo shows the plot of land which appears to be largely undeveloped with no existing structures. The listing price of £500,000 reflects the potential of the land and the fact that planning permission is in place. However, buyers should factor in the substantial costs associated with building a new house, which can often exceed initial estimations. Nearby property prices are significantly higher for existing homes, potentially indicating that this plot is underpriced in the current market, assuming the build costs for the planned structure remain within the expected budget; however, the plot of land itself is valued very cheaply. Overall, this property presents both opportunities and risks. While the granted planning permission simplifies the building process, potential buyers need to carefully consider their budget, and potential risks related to building costs and potential delays. The low price compared to nearby properties, coupled with the granted planning permission, can be seen as favourable though this must be assessed with the costs of construction and inherent risks when undertaking a project of this nature.
Therefore, we give this property 4 / 10. *Disclaimer: This is our option and does constitute a recommendation or financial advice. Do your own research. *
- Price
- 6
- Condition
- 2
- Location
- 7
- Land
- 2
- Bedrooms
- 3
- Bathrooms
- 3
- Sqft (est)
- 987.05
The heatmap indicates the level of crime in the area. The color of the heatmap indicates the crime severity and recency.
Metrics Year-on-Year
- Average area value
- 940,833.00 £Increased by 19.00 %
- Est sale value
- 534,981.10 £Increased by 11.29 %
- Average area rental value
- 2,875.00 £/moIncreased by 9.19 %
- Est letting value
- 987.05 £/moUnchanged by 0.00 %
- Est rental Yield
- 3.67 %Decreased by 8.25 %
- Crime Rate
- 4.00 %Unchanged by 0.00 %
Agent Activity
eXp UK marked this listing as sold.
eXp UK created the listing.
Nearby Schools
| Name | Type | Ofsted | Distance |
|---|---|---|---|
| Cannon Lane Primary School | Community School | Good | 0.78 KM |
| Newnham Infant And Nursery School | Community School | Good | 0.85 KM |
| Newnham Junior School | Community School | Outstanding | 0.85 KM |
| Pinner High School | Free Schools | Outstanding | 0.89 KM |
| West Lodge Primary School | Community School | Outstanding | 1.32 KM |
Images
Nearby Streets
| Name | Average Price | Average Sqft | Distance |
|---|---|---|---|
| Boundary Road | £ 0 | 0 | 0.00 KM |
| Rochester Drive | £ 1,500,000 | 0 | 0.00 KM |
| Garth Close | £ 0 | 0 | 0.00 KM |
| Myrtle Avenue | £ 833,333 | 0 | 0.00 KM |
| Essex Close | £ 0 | 0 | 0.00 KM |
Nearby Transport
| Name | NLC | TLC | Distance |
|---|---|---|---|
| South Ruislip | 3057 | SRU | 2.85 KM |
| Hatch End | 1398 | HTE | 4.22 KM |
| Headstone Lane | 1434 | HDL | 4.78 KM |
| Northolt Park | 1478 | NLT | 4.81 KM |
| West Ruislip | 3059 | WRU | 4.91 KM |
Nearby Listings
| Address | Price | Type | Score | Distance |
|---|---|---|---|---|
| Deane Croft Road,Pinner,HA5 1SP | £ 500,000 | BUY | 4 / 10 | 0.00 KM |
| Deane Croft Road, Eastcote | £ 850,000 | BUY | 7 / 10 | 0.10 KM |
| Abbotsbury Gardens, Pinner | £ 825,000 | BUY | 6 / 10 | 0.15 KM |
| Deane Croft Road, Eastcote, HA5 | £ 950,000 | BUY | Unknown | 0.17 KM |
| The Chase, Eastcote, Pinner | £ 950,000 | BUY | 6 / 10 | 0.17 KM |
Nearby Properties
| Address | Price | Distance |
|---|---|---|
| 58 Deane Croft Road | £ 810,000 | 0.01 KM |
| 72 Deane Croft Road | £ 835,000 | 0.01 KM |
| 88 Deane Croft Road | £ 495,000 | 0.01 KM |
| 56 Deane Croft Road | £ 394,500 | 0.01 KM |
| 94 Deane Croft Road | £ 545,000 | 0.01 KM |