Howards says ..
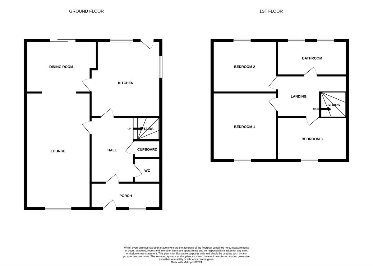
Extended three bedroom semi detached house sitting on a larger than average plot, in the popular village location of Bradwell, offering garage and off road parking and front and rear gardens
Property Oracle says ..
Therefore, we give this property 6 / 10. *Disclaimer: This is our option and does constitute a recommendation or financial advice. Do your own research. *
- Price
- 7
- Condition
- 5
- Location
- 7
- Land
- 7
- Bedrooms
- 3
- Bathrooms
- 2
- Sqft (est)
- 1,035.00
The heatmap indicates the level of crime in the area. The color of the heatmap indicates the crime severity and recency.
Metrics Year-on-Year
- Average area value
- 649,352.00 £Decreased by 3.16 %
- Est sale value
- 433,665.00 £Decreased by 13.43 %
- Average area rental value
- 1,515.00 £/moDecreased by 43.89 %
- Est letting value
- 0.00 £/moDecreased by 100.00 %
- Est rental Yield
- 2.80 %Decreased by 42.03 %
- Crime Rate
- 6.00 %Unchanged by 0.00 %
from 670,553.00 £
from 500,940.00 £
from 2,700.00 £/mo
from 1,035.00 £/mo
from 4.83 %
from 6.00 %
Agent Activity
Howards created the listing.
Nearby Schools
| Name | Type | Ofsted | Distance |
|---|---|---|---|
| Hillside Primary School | Community School | Good | 0.25 KM |
| Homefield Vc Cofe Primary School | Voluntary Controlled School | Good | 0.60 KM |
| Woodlands Primary Academy | Academy Sponsor Led | Good | 0.68 KM |
| Lynn Grove Academy | Academy Converter | Good | 1.78 KM |
| Ormiston Herman Academy | Academy Sponsor Led | Good | 1.84 KM |
Images
Nearby Streets
| Name | Average Price | Average Sqft | Distance |
|---|---|---|---|
| Dorothy Avenue | £ 340,000 | 0 | 0.00 KM |
| Oak Avenue | £ 225,000 | 0 | 0.00 KM |
| Orion Close | £ 0 | 0 | 0.00 KM |
| Kittiwake Close | £ 285,000 | 0 | 0.00 KM |
| Snowdrop Close | £ 240,000 | 0 | 0.00 KM |
Nearby Transport
| Name | NLC | TLC | Distance |
|---|---|---|---|
| Great Yarmouth | 7328 | GYM | 4.69 KM |
| Berney Arms | 7330 | BYA | 7.04 KM |
| Somerleyton | 7320 | SYT | 9.00 KM |
| Haddiscoe | 7300 | HAD | 9.65 KM |
Nearby Listings
| Address | Price | Type | Score | Distance |
|---|---|---|---|---|
| Laurel Drive, Bradwell | £ 265,000 | BUY | 6 / 10 | 0.00 KM |
| Alder Close, Bradwell | £ 230,000 | BUY | Unknown | 0.16 KM |
| Laurel Drive, Bradwell | £ 235,000 | BUY | 7 / 10 | 0.18 KM |
| Laurel Drive, Bradwell | £ 240,000 | BUY | Unknown | 0.18 KM |
| Laurel Drive, Bradwell | £ 270,000 | BUY | 7 / 10 | 0.19 KM |
Nearby Properties
| Address | Price | Distance |
|---|---|---|
| 50 Laurel Drive | £ 195,000 | 0.09 KM |
| 95 Laurel Drive | £ 177,000 | 0.09 KM |
| 75 Laurel Drive | £ 192,000 | 0.09 KM |
| 28 Willow Avenue | £ 160,000 | 0.13 KM |
| 26 Willow Avenue | £ 138,000 | 0.13 KM |