St Martins Road, Deal, CT14
By Jenkinson Estates
£ 295,000
Reviews
3 out of 5 stars
Jenkinson Estates says ..
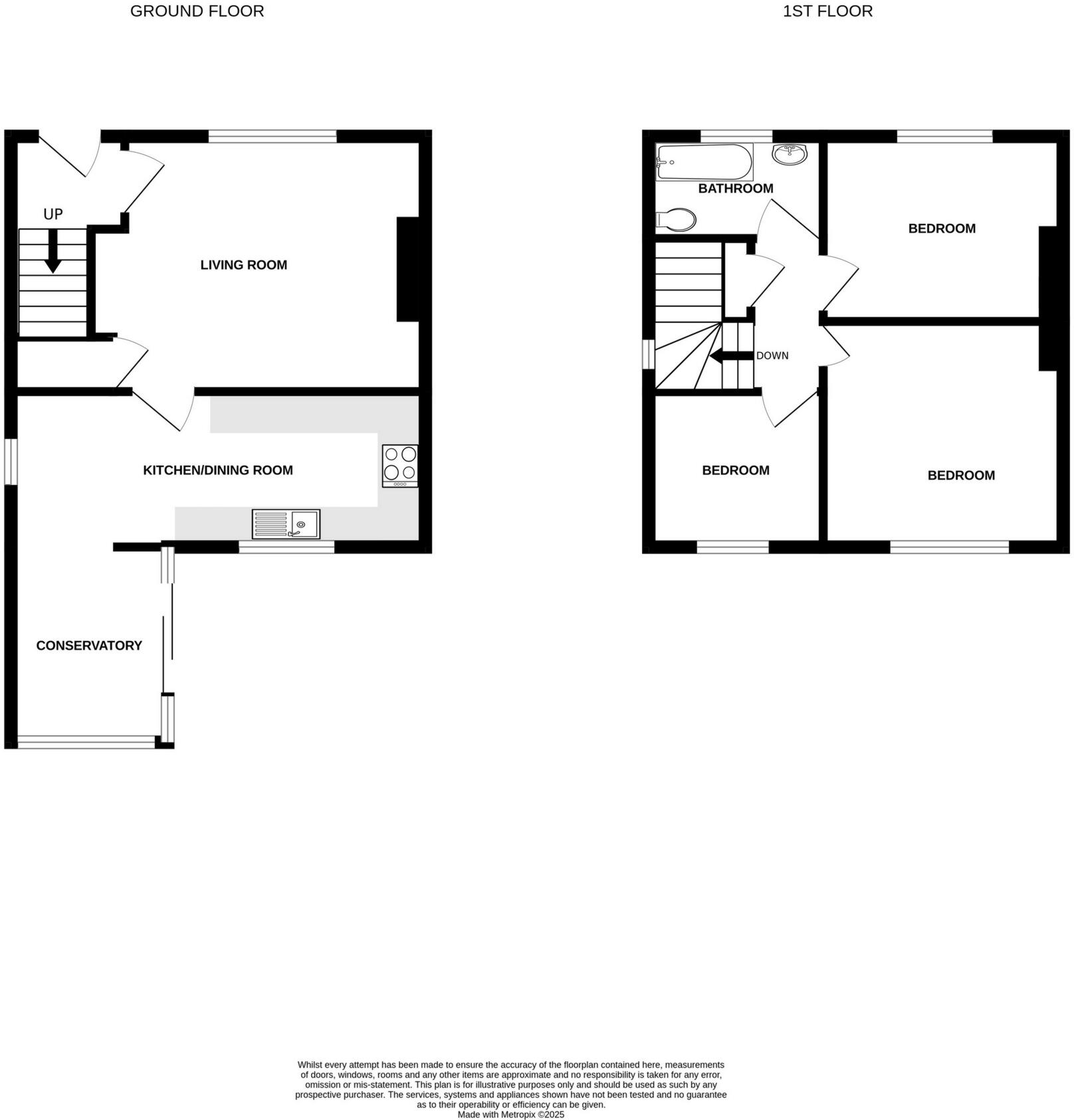
Exclusively via Jenkinson Estates comes to the market this beautifully presented semi detached home in the ever popular location of St Martins Road, Deal. The generous accommodation provides a living room that overlooks the front elevation and gives access through to the kitchen/utility area, whi...
Property Oracle says ..
This property is a 3-bedroom semi-detached house located in Deal, Kent. The property has recently undergone some modernisation, evident in the updated kitchen and bathroom. The images show a modern, well-maintained interior, and a good-sized garden with a patio area and shed. The location is within reasonable proximity to several primary schools, with options ranging from Good to Outstanding Ofsted ratings. Train stations are also within a reasonable distance, providing convenient access to other areas. The list price is lower than the average price for the area, but it is important to note that the average price is significantly higher due to larger properties. The square footage of this property is considerably smaller than the average for the area. Considering the condition, location, and land, the price seems reasonable for a smaller property in Deal.
Therefore, we give this property 7 / 10. *Disclaimer: This is our option and does constitute a recommendation or financial advice. Do your own research. *
- Price
- 7
- Condition
- 9
- Location
- 8
- Land
- 7
- Bedrooms
- 3
- Bathrooms
- 1
- Sqft (est)
- 648.00
The heatmap indicates the level of crime in the area. The color of the heatmap indicates the crime severity and recency.
Metrics Year-on-Year
- Average area value
- 696,062.00 £Decreased by 2.02 %
- Est sale value
- 336,312.00 £Decreased by 10.05 %
- Average area rental value
- 2,443.00 £/moDecreased by 15.35 %
- Est letting value
- 648.00 £/moDecreased by 50.00 %
- Est rental Yield
- 4.21 %Decreased by 13.55 %
- Crime Rate
- 7.00 %Unchanged by 0.00 %
Agent Activity
Jenkinson Estates created the listing.
Nearby Schools
| Name | Type | Ofsted | Distance |
|---|---|---|---|
| Hornbeam Primary School | Academy Converter | 0.46 KM | |
| St Mary'S Catholic Primary School | Academy Converter | Good | 0.50 KM |
| Sholden Church Of England Primary School | Academy Converter | 0.71 KM | |
| Warden House Primary School | Academy Converter | Outstanding | 1.03 KM |
| Blossom Children'S Centre | Children's Centre | 2.10 KM |
Images
Nearby Streets
| Name | Average Price | Average Sqft | Distance |
|---|---|---|---|
| St. Augustines Road | £ 0 | 0 | 0.00 KM |
| St. Nicholas Close | £ 0 | 0 | 0.00 KM |
| Jute Fields | £ 0 | 0 | 0.00 KM |
| Farm Lane | £ 394,500 | 0 | 0.00 KM |
| Norman Place | £ 342,970 | 0 | 0.00 KM |
Nearby Transport
| Name | NLC | TLC | Distance |
|---|---|---|---|
| Walmer | 5041 | WAM | 1.68 KM |
| Deal | 5011 | DEA | 2.97 KM |
| Martin Mill | 5040 | MTM | 5.65 KM |
| Sandwich | 5026 | SDW | 6.99 KM |
Nearby Listings
| Address | Price | Type | Score | Distance |
|---|---|---|---|---|
| St Martins Road, Deal, CT14 | £ 295,000 | BUY | 7 / 10 | 0.00 KM |
| St Martins Road, Deal, CT14 | £ 295,000 | BUY | 7 / 10 | 0.07 KM |
| Rectory Road, Deal, CT14 | £ 349,950 | BUY | 6 / 10 | 0.09 KM |
| Elizabeth Carter Avenue, Deal, CT14 | £ 232,500 | BUY | Unknown | 0.12 KM |
| St. Richards Road, Deal, CT14 | £ 400,000 | BUY | 7 / 10 | 0.13 KM |
Nearby Properties
| Address | Price | Distance |
|---|---|---|
| 28 St Martins Road | £ 230,000 | 0.04 KM |
| 16 St Martins Road | £ 271,500 | 0.04 KM |
| 15 St Martins Road | £ 162,995 | 0.04 KM |
| 33 St Martins Road | £ 157,500 | 0.04 KM |
| 10 St Martins Road | £ 170,000 | 0.04 KM |