Yopa says ..
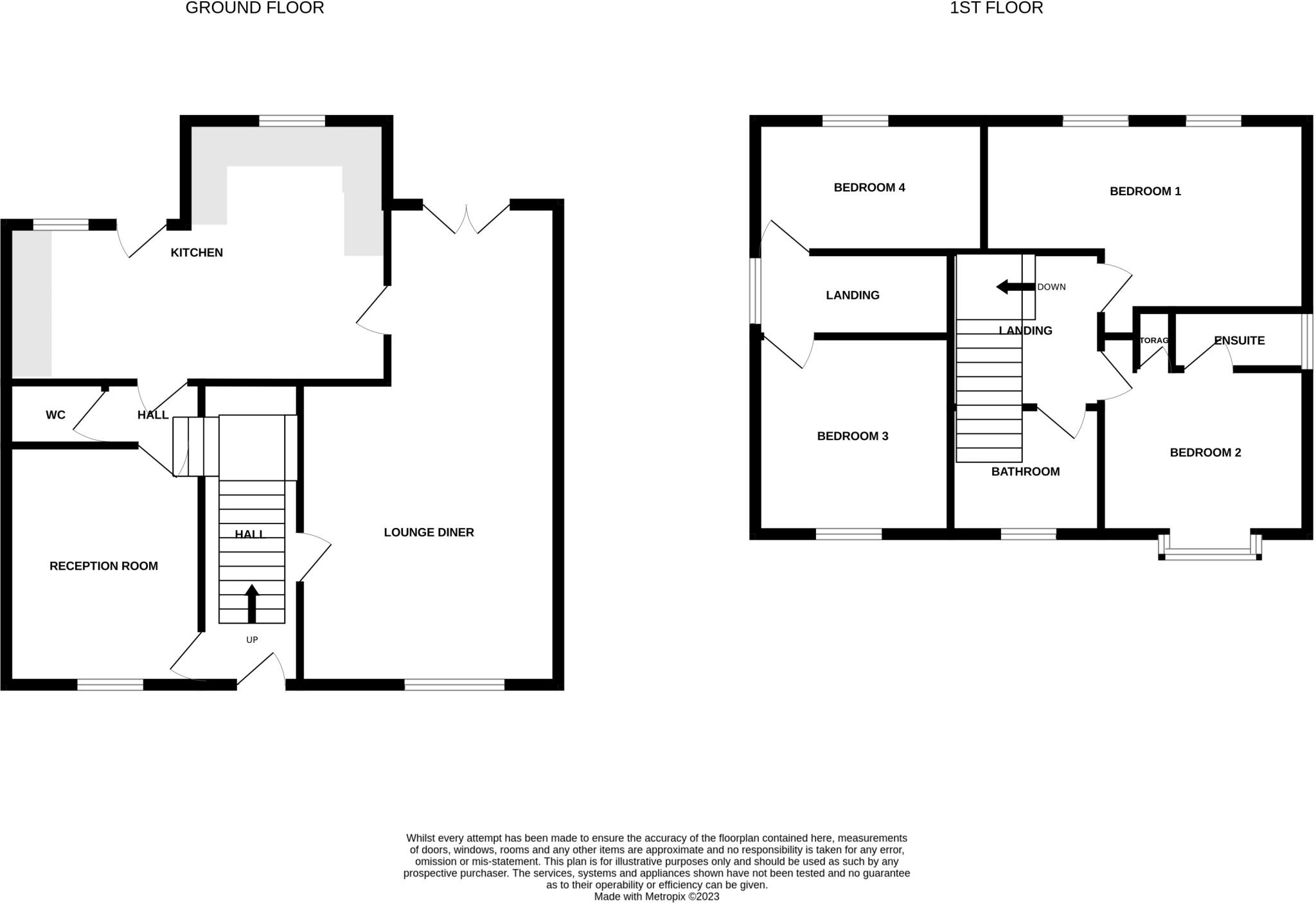
Yopa is proudly presenting this fantastic four bedroom detached family home to the market in the highly sought-after Lydiate Viewing are highly recommended and strictly by appointment only
Property Oracle says ..
Therefore, we give this property 7 / 10. *Disclaimer: This is our option and does constitute a recommendation or financial advice. Do your own research. *
- Price
- 9
- Condition
- 8
- Location
- 7
- Land
- 7
- Bedrooms
- 4
- Bathrooms
- 2
- Sqft (est)
- 1,354.00
The heatmap indicates the level of crime in the area. The color of the heatmap indicates the crime severity and recency.
Metrics Year-on-Year
- Average area value
- 339,299.00 £Increased by 1.34 %
- Est sale value
- 492,856.00 £Increased by 25.52 %
- Average area rental value
- 1,364.00 £/moIncreased by 34.92 %
- Est letting value
- 1,354.00 £/mo
- Est rental Yield
- 4.82 %Increased by 33.15 %
- Crime Rate
- 9.00 %Unchanged by 0.00 %
from 334,823.00 £
from 392,660.00 £
from 1,011.00 £/mo
from 0.00 £/mo
from 3.62 %
from 9.00 %
Agent Activity
Yopa created the listing.
Nearby Schools
| Name | Type | Ofsted | Distance |
|---|---|---|---|
| St Gregory'S Catholic Primary School | Voluntary Aided School | Good | 0.46 KM |
| Lydiate Primary School | Community School | Good | 0.47 KM |
| Green Park Primary School | Community School | Good | 1.13 KM |
| St John Bosco Catholic Primary School | Voluntary Aided School | Good | 1.17 KM |
| St Thomas Church Of England Primary School, Lydiate | Academy Converter | 1.62 KM |
Images
Nearby Streets
| Name | Average Price | Average Sqft | Distance |
|---|---|---|---|
| Marshall's Close | £ 0 | 0 | 0.00 KM |
| Bell's Close | £ 0 | 0 | 0.00 KM |
| High Banks | £ 0 | 0 | 0.00 KM |
| Liverpool Road | £ 359,744 | 0 | 0.00 KM |
| The Conifers | £ 0 | 0 | 0.00 KM |
Nearby Transport
| Name | NLC | TLC | Distance |
|---|---|---|---|
| Maghull | 2155 | MAG | 3.40 KM |
| Maghull North | 6576 | MNS | 3.62 KM |
| Old Roan | 2258 | ORN | 4.68 KM |
| Town Green | 2283 | TWN | 5.44 KM |
| Aintree | 2125 | AIN | 6.14 KM |
Nearby Listings
| Address | Price | Type | Score | Distance |
|---|---|---|---|---|
| Tyrers Avenue, Liverpool, L31 4LD | £ 340,000 | BUY | 6 / 10 | 0.00 KM |
| Tyrers Avenue, Liverpool, L31 | £ 340,000 | BUY | 7 / 10 | 0.00 KM |
| Kingsley Close, Lydiate | £ 330,000 | BUY | 7 / 10 | 0.05 KM |
| Weld Blundell Avenue, Lydiate | £ 195,000 | BUY | 6 / 10 | 0.09 KM |
| Roseland Close, Liverpool, L31 4JG | £ 350,000 | BUY | Unknown | 0.14 KM |
Nearby Properties
| Address | Price | Distance |
|---|---|---|
| 11 Tyrers Avenue | £ 190,000 | 0.01 KM |
| 3 Tyrers Avenue | £ 215,000 | 0.01 KM |
| 8 Tyrers Avenue | £ 177,500 | 0.01 KM |
| 17 Tyrers Avenue | £ 89,500 | 0.01 KM |
| 1 Kingsley Close | £ 260,000 | 0.04 KM |