Ocean says ..
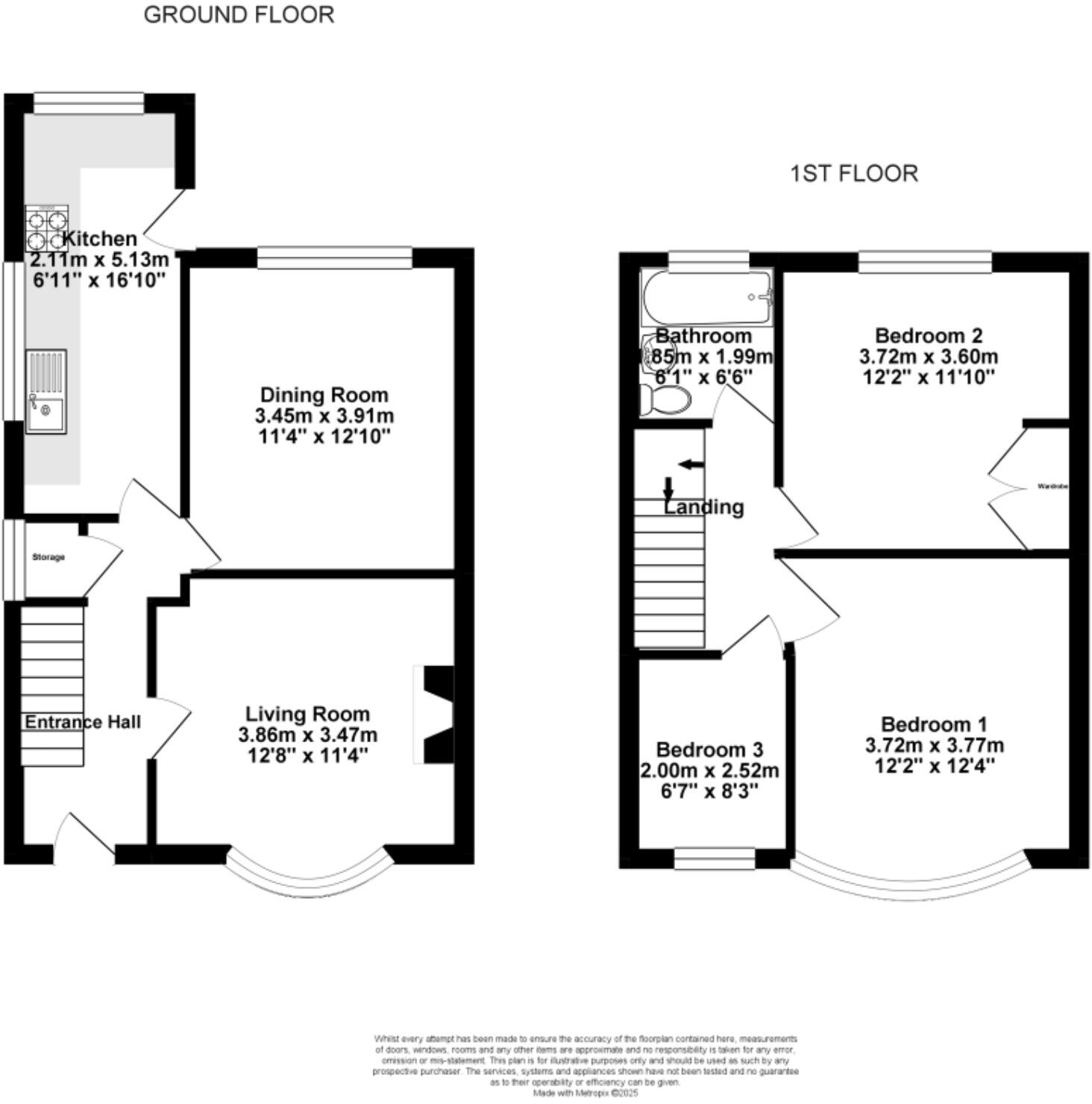
Ocean are pleased to bring to market this spacious 3 bedroom semi detached property on Maywood Crescent.
Property Oracle says ..
Therefore, we give this property 6 / 10. *Disclaimer: This is our option and does constitute a recommendation or financial advice. Do your own research. *
- Price
- 5
- Condition
- 6
- Location
- 7
- Land
- 7
- Bedrooms
- 3
- Bathrooms
- 1
- Sqft (est)
- 773.86
The heatmap indicates the level of crime in the area. The color of the heatmap indicates the crime severity and recency.
Metrics Year-on-Year
- Average area value
- 393,889.00 £Increased by 27.85 %
- Est sale value
- 410,145.80 £Increased by 58.21 %
- Average area rental value
- 1,626.00 £/moDecreased by 6.61 %
- Est letting value
- 1,547.72 £/moIncreased by 100.00 %
- Est rental Yield
- 4.95 %Decreased by 26.99 %
- Crime Rate
- 3.00 %Unchanged by 0.00 %
from 308,091.00 £
from 259,243.10 £
from 1,741.00 £/mo
from 773.86 £/mo
from 6.78 %
from 3.00 %
Agent Activity
Ocean created the listing.
Nearby Schools
| Name | Type | Ofsted | Distance |
|---|---|---|---|
| Little Hayes Nursery School | Local Authority Nursery School | Good | 0.41 KM |
| Gracefield Preparatory School | Other Independent School | Good | 0.43 KM |
| Little Hayes And Hillfields Early Years And Family Centre | Children's Centre | 0.47 KM | |
| Briarwood School | Community Special School | Good | 0.49 KM |
| Pathways Learning Centre | Pupil Referral Unit | Good | 0.68 KM |
Images
Nearby Streets
| Name | Average Price | Average Sqft | Distance |
|---|---|---|---|
| Birchwood Close | £ 0 | 0 | 0.00 KM |
| Chasefield Lane | £ 0 | 0 | 0.00 KM |
| Thicket Road | £ 0 | 0 | 0.00 KM |
| Jupiter Terrace | £ 182,500 | 0 | 0.00 KM |
| Chatsworth Road | £ 385,000 | 0 | 0.00 KM |
Nearby Transport
| Name | NLC | TLC | Distance |
|---|---|---|---|
| Bristol Parkway | 3230 | BPW | 4.37 KM |
| Stapleton Road | 3250 | SRD | 5.29 KM |
| Filton Abbey Wood | 3235 | FIT | 5.36 KM |
| Lawrence Hill | 3225 | LWH | 5.50 KM |
| Patchway | 3213 | PWY | 6.85 KM |
Nearby Listings
| Address | Price | Type | Score | Distance |
|---|---|---|---|---|
| Maywood Crescent, Bristol | £ 400,000 | BUY | 6 / 10 | 0.00 KM |
| Maywood Crescent, Fishponds, Bristol | £ 425,000 | BUY | 6 / 10 | 0.04 KM |
| Maywood Crescent, BRISTOL, Avon, BS16 | £ 200,000 | BUY | 7 / 10 | 0.04 KM |
| Maywood Crescent, Bristol, Somerset, BS16 | £ 230,000 | BUY | 6 / 10 | 0.04 KM |
| New Pooles Lodge, Fishponds | £ 360,000 | BUY | 7 / 10 | 0.05 KM |
Nearby Properties
| Address | Price | Distance |
|---|---|---|
| 13 Maywood Avenue | £ 263,000 | 0.05 KM |
| 15 Maywood Avenue | £ 179,995 | 0.05 KM |
| 11 Maywood Avenue | £ 176,000 | 0.05 KM |
| 10 Maywood Avenue | £ 238,180 | 0.05 KM |
| 1 Maywood Avenue | £ 115,000 | 0.05 KM |