Wilkinson Grant & Co says ..
**OPEN HOUSE - SATURDAY 12TH JULY** Stylish lower ground floor apartment forming part of a beautiful Grade II Listed Georgian building. Offering OVER 1200 SQFT of OPEN PLAN living space and bespoke kitchen with the added benefit of a wine cellar in a highly SOUGHT AFTER LOCATION. Close...
Property Oracle says ..
Therefore, we give this property 6 / 10. *Disclaimer: This is our option and does constitute a recommendation or financial advice. Do your own research. *
- Price
- 6
- Condition
- 8
- Location
- 8
- Land
- 3
- Bedrooms
- 2
- Bathrooms
- 2
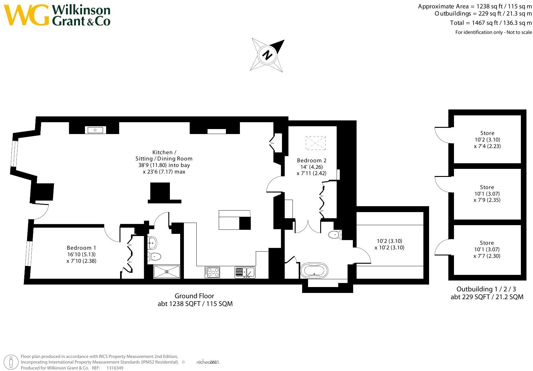
- Sqft (est)
- 1,238.00
- Lot (est)
- 1,467.00
The heatmap indicates the level of crime in the area. The color of the heatmap indicates the crime severity and recency.
Metrics Year-on-Year
- Average area value
- 332,222.00 £Decreased by 5.67 %
- Est sale value
- 578,146.00 £Increased by 26.56 %
- Average area rental value
- 1,355.00 £/moIncreased by 23.29 %
- Est letting value
- 1,238.00 £/moUnchanged by 0.00 %
- Est rental Yield
- 4.89 %Increased by 30.75 %
- Crime Rate
- 5.00 %Unchanged by 0.00 %
from 352,200.00 £
from 456,822.00 £
from 1,099.00 £/mo
from 1,238.00 £/mo
from 3.74 %
from 5.00 %
Agent Activity
Wilkinson Grant & Co created the listing.
Nearby Schools
| Name | Type | Ofsted | Distance |
|---|---|---|---|
| Exeter Cathedral School | Other Independent School | 0.45 KM | |
| Exeter Royal Academy For Deaf Education | Special Post 16 Institution | Requires improvement | 0.61 KM |
| St Leonard'S (Cofe) Primary School (Vc) | Academy Converter | 0.80 KM | |
| Exeter Central (Flying Start Children'S Centre) | Children's Centre | 0.80 KM | |
| Exeter Mathematics School | Free Schools 16 To 19 | Outstanding | 0.86 KM |
Images
Nearby Streets
| Name | Average Price | Average Sqft | Distance |
|---|---|---|---|
| Haven Banks | £ 0 | 0 | 0.00 KM |
| Clipper Quay | £ 325,000 | 0 | 0.00 KM |
| Kimberley Road | £ 0 | 0 | 0.00 KM |
| Western Way | £ 0 | 0 | 0.00 KM |
| Magdalen Street | £ 0 | 0 | 0.00 KM |
Nearby Transport
| Name | NLC | TLC | Distance |
|---|---|---|---|
| Exeter Central | 5755 | EXC | 1.08 KM |
| Exeter St Thomas | 3414 | EXT | 1.14 KM |
| St James Park (Exeter) | 5751 | SJP | 1.64 KM |
| Exeter St David'S | 3410 | EXD | 2.05 KM |
| Polsloe Bridge | 3422 | POL | 3.30 KM |
Nearby Listings
| Address | Price | Type | Score | Distance |
|---|---|---|---|---|
| Exeter, Devon | £ 475,000 | BUY | 6 / 10 | 0.00 KM |
| Colleton Crescent, Exeter, Devon, EX2 | £ 2,500,000 | BUY | 8 / 10 | 0.02 KM |
| Clipper Quay, The Quay, Exeter | £ 325,000 | BUY | 6 / 10 | 0.07 KM |
| Friars Walk, Exeter, EX2 | £ 145,000 | BUY | 6 / 10 | 0.08 KM |
| Riverside Court, Colleton Crescent, EX2 | £ 285,000 | BUY | 6 / 10 | 0.11 KM |
Nearby Properties
| Address | Price | Distance |
|---|---|---|
| 8 Lucky Lane | £ 78,000 | 0.05 KM |
| 6 Lucky Lane | £ 325,000 | 0.05 KM |
| 2 Lucky Lane | £ 76,500 | 0.06 KM |
| 8 Friars Walk | £ 97,500 | 0.07 KM |
| 18 Friars Walk | £ 217,000 | 0.07 KM |