Homefinders says ..
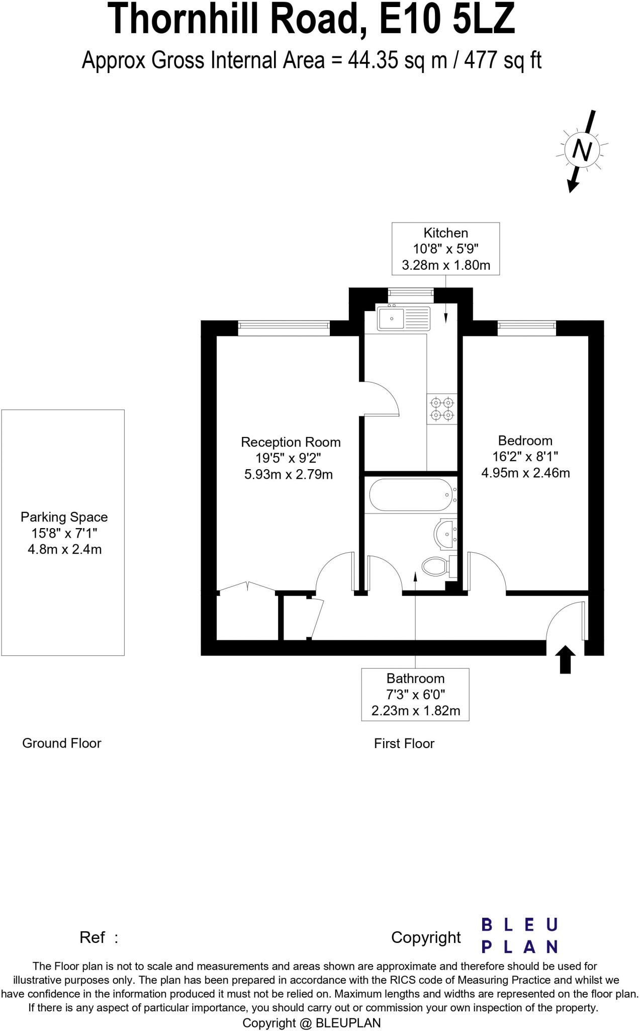
Offered chain-free with a brand new lease, this one-bedroom flat is situated within a secure gated development on Thornhill Road, Leyton. The property boasts off-street parking, access to a communal garden, and a convenient external storage unit. The flat is well-appointed, with double-glazed w...
Property Oracle says ..
This one-bedroom flat in Leyton, E10, is situated within a secure gated development offering off-street parking and access to a communal garden. The property’s interior appears clean and well-maintained, although a minor update to the decor and potential kitchen/bathroom upgrades could enhance its appeal. The floorplan seems suitable for a single person or couple and the presence of off-street parking is a considerable benefit in this area. The location in Leyton provides convenient access to the London Overground via Leyton Midland Road station, along with local bus services. The proximity to several schools is also a point to note. However, potential buyers should carefully consider the varied Ofsted ratings of nearby schools before making a purchase decision. The lack of a private garden may be a drawback for some buyers. Overall, the property presents a reasonable option for first-time buyers or investors, although further investigation into specifics and potential renovation requirements is advised before making a commitment. The price point appears to be in line with comparable properties in the locality, but detailed size comparisons of those properties is lacking.
Therefore, we give this property 5 / 10. *Disclaimer: This is our option and does constitute a recommendation or financial advice. Do your own research. *
- Price
- 7
- Condition
- 6
- Location
- 7
- Land
- 2
- Bedrooms
- 1
- Bathrooms
- 1
- Sqft (est)
- 477.38
The heatmap indicates the level of crime in the area. The color of the heatmap indicates the crime severity and recency.
Metrics Year-on-Year
- Average area value
- 552,778.00 £Increased by 26.58 %
- Est sale value
- 284,041.10 £Increased by 6.82 %
- Average area rental value
- 1,835.00 £/moDecreased by 4.03 %
- Est letting value
- 477.38 £/moDecreased by 50.00 %
- Est rental Yield
- 3.98 %Decreased by 24.19 %
- Crime Rate
- 5.00 %Unchanged by 0.00 %
Agent Activity
Homefinders created the listing.
Nearby Schools
| Name | Type | Ofsted | Distance |
|---|---|---|---|
| Lantern Of Knowledge Secondary School | Other Independent School | Inadequate | 0.36 KM |
| Dawlish Primary School | Community School | Good | 0.48 KM |
| George Mitchell School | Academy Converter | 0.65 KM | |
| Noor Ul Islam Primary School | Other Independent School | Good | 0.71 KM |
| St Joseph'S Catholic Junior School | Voluntary Aided School | Good | 0.80 KM |
Images
Nearby Streets
| Name | Average Price | Average Sqft | Distance |
|---|---|---|---|
| Windsor Road | £ 585,000 | 0 | 0.00 KM |
| Thornhill Road | £ 432,500 | 0 | 0.00 KM |
| Osborne Road | £ 700,000 | 0 | 0.00 KM |
| Lyttelton Road | £ 0 | 0 | 0.00 KM |
| Gateway Road | £ 0 | 0 | 0.00 KM |
Nearby Transport
| Name | NLC | TLC | Distance |
|---|---|---|---|
| Leyton Midland Road | 7402 | LEM | 0.94 KM |
| Stratford International | 7222 | SFA | 2.00 KM |
| Leytonstone High Road | 7403 | LER | 2.30 KM |
| Walthamstow Central | 6953 | WHC | 2.42 KM |
| Walthamstow Queen'S Road | 7407 | WMW | 2.47 KM |
Nearby Listings
| Address | Price | Type | Score | Distance |
|---|---|---|---|---|
| Thornhill Road, Leyton, E10 | £ 275,000 | BUY | 7 / 10 | 0.00 KM |
| Thornhill Road, Leyton, E10 | £ 275,000 | BUY | 5 / 10 | 0.00 KM |
| Thornhill Road, Leyton E10 5LZ | £ 300,000 | BUY | 5 / 10 | 0.00 KM |
| Salway House, Thornhill Road, Leyton, E10 | £ 300,000 | BUY | 5 / 10 | 0.00 KM |
| Thornhill Road, Leyton, London, E10 | £ 725,000 | BUY | 8 / 10 | 0.08 KM |
Nearby Properties
| Address | Price | Distance |
|---|---|---|
| 58 Thornhill Gardens | £ 275,000 | 0.04 KM |
| 84 Thornhill Gardens | £ 177,777 | 0.04 KM |
| 30 Thornhill Gardens | £ 133,000 | 0.12 KM |
| 91 Thornhill Gardens | £ 340,000 | 0.12 KM |
| 5 Thornhill Gardens | £ 75,000 | 0.12 KM |