Belleville Drive, Oadby
By Signature Homes. Powered by eXp
£ 495,000
Reviews
3 out of 5 stars
Signature Homes. Powered by eXp says ..
A charming 3/4 bedroom detached home ideally located upon Belleville Drive, a quiet residential road tucked away just off Launde Road in the ever popular Oadby.
Property Oracle says ..
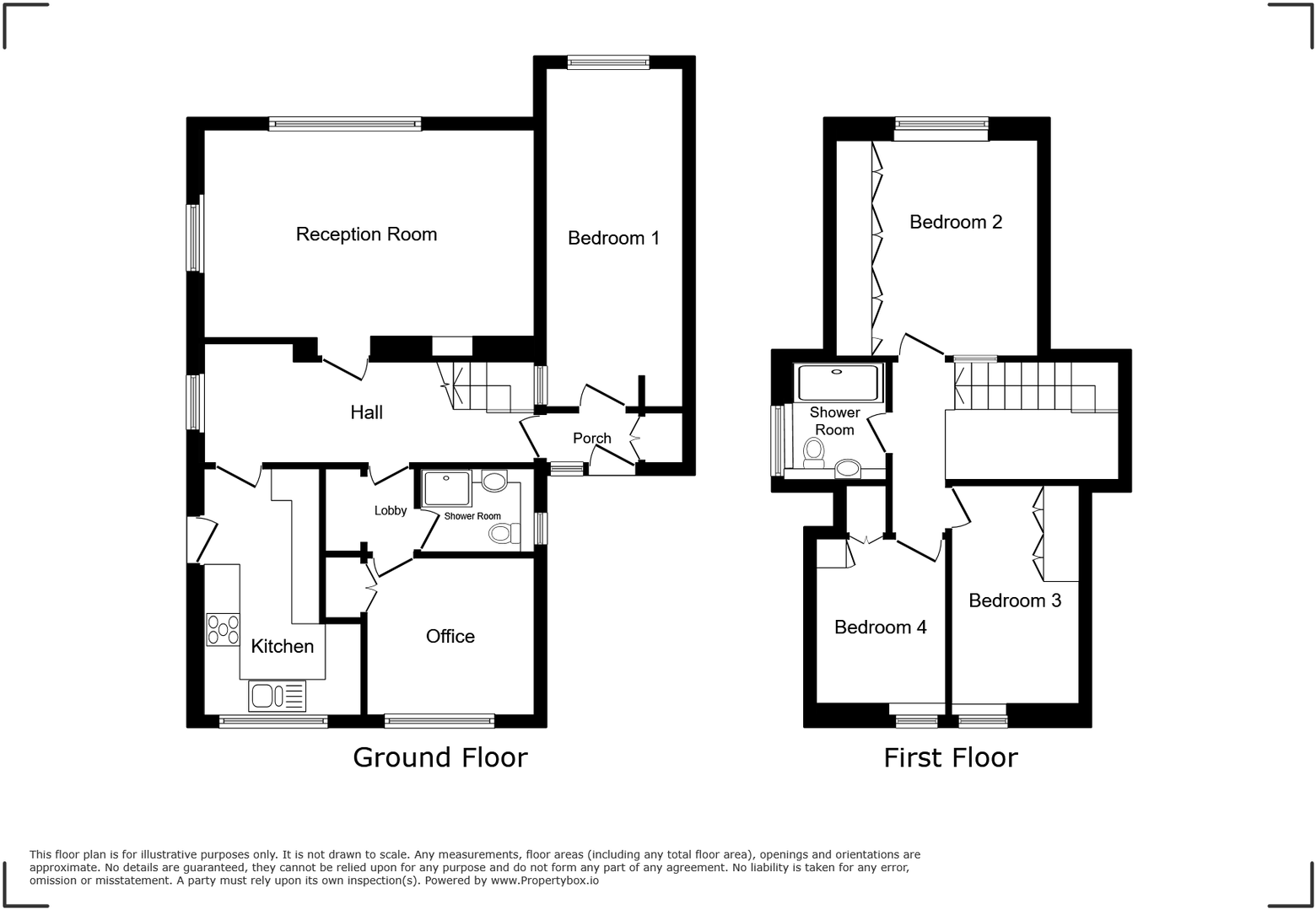
This is a detached property located on Belleville Drive in Oadby Uplands, Oadby And Wigston, Leicestershire. The house features four bedrooms and two bathrooms, with a total square footage of 945. The property includes a well-maintained garden and off-street parking. Nearby amenities include several schools, with Gartree High School being particularly noteworthy for its ‘Outstanding’ Ofsted rating. While Leicester and South Wigston train stations are a few miles away, providing reasonable access to rail transport. The property appears to be in generally good condition, with a modern kitchen, although some areas could benefit from updating. The asking price of £495,000 seems reasonable given the location, size, and condition of the property, and is below the average price per square foot for the area.
Therefore, we give this property 7 / 10. *Disclaimer: This is our option and does constitute a recommendation or financial advice. Do your own research. *
- Price
- 7
- Condition
- 7
- Location
- 7
- Land
- 8
- Bedrooms
- 4
- Bathrooms
- 2
- Sqft (est)
- 945.00
The heatmap indicates the level of crime in the area. The color of the heatmap indicates the crime severity and recency.
Metrics Year-on-Year
- Average area value
- 366,250.00 £Decreased by 10.05 %
- Est sale value
- 574,560.00 £Increased by 87.65 %
- Average area rental value
- 1,450.00 £/moIncreased by 21.04 %
- Est letting value
- 1,890.00 £/mo
- Est rental Yield
- 4.75 %Increased by 34.56 %
- Crime Rate
- 2.00 %Unchanged by 0.00 %
Agent Activity
Signature Homes. Powered by eXp created the listing.
Nearby Schools
| Name | Type | Ofsted | Distance |
|---|---|---|---|
| Launde Primary School | Academy Converter | 0.87 KM | |
| Brookside Primary School | Academy Converter | 0.96 KM | |
| Manor High School | Academy Converter | Good | 1.12 KM |
| Beauchamp College | Academy Converter | 1.40 KM | |
| Gartree High School | Academy Converter | Outstanding | 1.43 KM |
Images
Nearby Streets
| Name | Average Price | Average Sqft | Distance |
|---|---|---|---|
| Wyndham Close | £ 0 | 0 | 0.00 KM |
| Ann's Way | £ 0 | 0 | 0.00 KM |
| Alexandra Court | £ 180,000 | 0 | 0.00 KM |
| Meadow View | £ 0 | 0 | 0.00 KM |
| Tamar Road | £ 500,000 | 0 | 0.00 KM |
Nearby Transport
| Name | NLC | TLC | Distance |
|---|---|---|---|
| Leicester | 1947 | LEI | 7.02 KM |
| South Wigston | 1949 | SWS | 7.38 KM |
Nearby Listings
| Address | Price | Type | Score | Distance |
|---|---|---|---|---|
| Belleville Drive, Oadby | £ 495,000 | BUY | 7 / 10 | 0.00 KM |
| Belleville Drive, Oadby | £ 480,000 | BUY | 7 / 10 | 0.00 KM |
| Belleville Drive, Oadby, Leicester | £ 575,000 | BUY | 6 / 10 | 0.01 KM |
| Belleville Drive, Oadby, Leicester | £ 500,000 | BUY | Unknown | 0.08 KM |
| Covert Close, Oadby, Leicester | £ 700,000 | BUY | 7 / 10 | 0.15 KM |
Nearby Properties
| Address | Price | Distance |
|---|---|---|
| 20 Belleville Drive | £ 370,000 | 0.01 KM |
| 8 Belleville Drive | £ 367,000 | 0.01 KM |
| 16 Belleville Drive | £ 312,500 | 0.01 KM |
| 14 Belleville Drive | £ 206,000 | 0.02 KM |
| 17 Belleville Drive | £ 283,000 | 0.02 KM |