PO
White House, Main Road, Cropthorne, Pershore, Worcestershire, WR10 3NE
By Powells
£ 825,000
Powells says ..
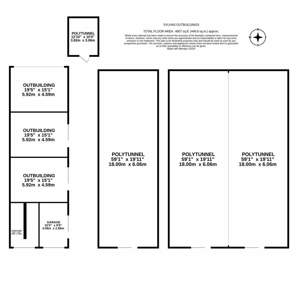
Sylvias offers an exciting residential and horticultural smallholding opportunity offering a detached three bedroom residence, double garage and outbuildings including a range of polytunnels with commercial appeal and 3.69 acres of level pastureland in a desirable accessible location.
- Bedrooms
- 3
- Bathrooms
- 2
The heatmap indicates the level of crime in the area. The color of the heatmap indicates the crime severity and recency.
Metrics Year-on-Year
- Average area value
- 417,500.00 £Decreased by 27.94 %
- Average area rental value
- 1,286.00 £/moDecreased by 13.28 %
- Est rental Yield
- 3.70 %Increased by 20.52 %
- Crime Rate
- 0.00 %
from 579,344.00 £
from 1,483.00 £/mo
from 3.07 %
from 0.00 %
Agent Activity
Powells created the listing.
Nearby Schools
| Name | Type | Ofsted | Distance |
|---|---|---|---|
| Cropthorne-With-Charlton Cofe First School | Voluntary Controlled School | Good | 0.86 KM |
| Fladbury Cofe First School | Voluntary Aided School | Good | 2.02 KM |
| Elmley Castle Cofe First School | Voluntary Controlled School | Good | 3.49 KM |
| St Andrew'S Ce School | Voluntary Controlled School | Good | 5.46 KM |
| Bredon Hill Academy | Academy Converter | 5.68 KM |
Images
Nearby Streets
| Name | Average Price | Average Sqft | Distance |
|---|---|---|---|
| Brook Lane | £ 1,343,750 | 0 | 0.00 KM |
| Brook View | £ 1,200,000 | 0 | 0.00 KM |
| Manor Farm Court | £ 625,000 | 0 | 0.00 KM |
| Mill Bank | £ 875,000 | 0 | 0.00 KM |
| The Chantry | £ 0 | 0 | 0.00 KM |
Nearby Transport
| Name | NLC | TLC | Distance |
|---|---|---|---|
| Evesham | 4740 | EVE | 6.83 KM |
| Pershore | 4887 | PSH | 7.84 KM |
Nearby Listings
| Address | Price | Type | Score | Distance |
|---|---|---|---|---|
| White House, Main Road, Cropthorne, Pershore, Worcestershire, WR10 3NE | £ 825,000 | BUY | Unknown | 0.00 KM |
| Walkmill, Main Road, Cropthorne, WR10 3NE | £ 895,000 | BUY | Unknown | 0.00 KM |
| Brook Lane, Cropthorne, WR10 | £ 290,000 | BUY | 6 / 10 | 0.07 KM |
| Cropthorne, Pershore, WR10 | £ 1,650,000 | BUY | Unknown | 0.10 KM |
| Brook Lane, Cropthorne | £ 440,000 | BUY | 7 / 10 | 0.18 KM |
Nearby Properties
| Address | Price | Distance |
|---|---|---|
| Andonia | £ 250,000 | 0.01 KM |
| Coppers Lot | £ 440,000 | 0.01 KM |
| Freelands House | £ 475,000 | 0.01 KM |
| Quarry House | £ 433,000 | 0.01 KM |
| Brookfield Nursery | £ 360,000 | 0.01 KM |