Blyth Road, Hayes, Greater London, UB3
By Stones Property
£ 499,950
Reviews
3 out of 5 stars
Stones Property says ..
Discover this stunning three-bedroom upper-floor flat, offering a perfect combination of space, style, and convenience. Ideally located close to excellent transport links, schools, and a variety of local amenities, this property is well-suited for families, professionals, and investors alike. The...
Property Oracle says ..
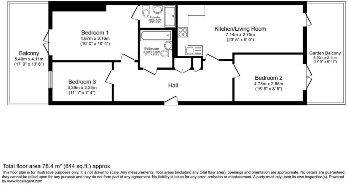
This property is a 3-bedroom, 2-bathroom apartment located in Hayes, Greater London. The apartment is modern and well-maintained, as seen in the provided images. It benefits from a communal garden area, which is a positive feature. The location is convenient, with Hayes & Harlington station within close proximity, offering good transport links. Several schools with good Ofsted ratings are also nearby. The list price of £499,950 is slightly higher than the average price for the area (£465,919), but considering the modern condition of the apartment and its proximity to transport links and schools, it may be considered reasonable for some buyers. However, the lack of private outdoor space might be a drawback for some.
Therefore, we give this property 6 / 10. *Disclaimer: This is our option and does constitute a recommendation or financial advice. Do your own research. *
- Price
- 7
- Condition
- 9
- Location
- 8
- Land
- 3
- Bedrooms
- 3
- Bathrooms
- 2
- Sqft (est)
- 843.89
The heatmap indicates the level of crime in the area. The color of the heatmap indicates the crime severity and recency.
Metrics Year-on-Year
- Average area value
- 419,333.00 £Decreased by 5.08 %
- Est sale value
- 558,655.18 £Increased by 22.82 %
- Average area rental value
- 2,157.00 £/moIncreased by 14.98 %
- Est letting value
- 2,531.67 £/moIncreased by 50.00 %
- Est rental Yield
- 6.17 %Increased by 20.98 %
- Crime Rate
- 16.00 %Unchanged by 0.00 %
Agent Activity
Stones Property marked this listing as sold.
Stones Property created the listing.
Nearby Schools
| Name | Type | Ofsted | Distance |
|---|---|---|---|
| Nestles Avenue Children'S Centre | Children's Centre | 0.23 KM | |
| Barra Hall Children'S Centre | Children's Centre | 0.33 KM | |
| Botwell House Catholic Primary School | Voluntary Aided School | Good | 0.50 KM |
| Global Academy | University Technical College | Good | 0.54 KM |
| Cranford Park Academy | Academy Converter | Good | 0.95 KM |
Images
Nearby Streets
| Name | Average Price | Average Sqft | Distance |
|---|---|---|---|
| Clarendon Road | £ 0 | 0 | 0.00 KM |
| Western View | £ 0 | 0 | 0.00 KM |
| Powerhouse Lane | £ 401,999 | 0 | 0.00 KM |
| Blyth Road | £ 325,000 | 0 | 0.00 KM |
| Nestle's Avenue | £ 443,857 | 0 | 0.00 KM |
Nearby Transport
| Name | NLC | TLC | Distance |
|---|---|---|---|
| Hayes And Harlington | 3186 | HAY | 0.20 KM |
| Southall | 3187 | STL | 4.85 KM |
| Heathrow Terminals 2 And 3 (Rail Station Only) | 7090 | HXX | 5.03 KM |
| West Drayton | 3174 | WDT | 5.56 KM |
| Heathrow Terminal 4 | 7091 | HAF | 5.65 KM |
Nearby Listings
| Address | Price | Type | Score | Distance |
|---|---|---|---|---|
| Bluenote Apartments, Blyth Road, Hayes | £ 410,000 | BUY | 6 / 10 | 0.00 KM |
| Blyth Road, Hayes, Greater London, UB3 | £ 499,950 | BUY | 6 / 10 | 0.00 KM |
| Bluenote Apartments, Blyth Road, Hayes, UB3 1FF | £ 495,000 | BUY | 5 / 10 | 0.01 KM |
| Blyth Road, Hayes | £ 450,000 | BUY | 6 / 10 | 0.01 KM |
| Bluenote Apartments, Blyth Road, Hayes | £ 530,000 | BUY | 5 / 10 | 0.01 KM |
Nearby Properties
| Address | Price | Distance |
|---|---|---|
| 35 Blyth Road | £ 110,000 | 0.05 KM |
| 2 Blyth Road | £ 125,000 | 0.05 KM |
| 23 Blyth Road | £ 190,000 | 0.05 KM |
| 27 Blyth Road | £ 180,000 | 0.05 KM |
| 45 Blyth Road | £ 185,000 | 0.06 KM |