First Choice Move says ..
Step into this beautifully presented and substantially extended three-bedroom mid-terrace home, where every corner exudes warmth and modern charm.
Property Oracle says ..
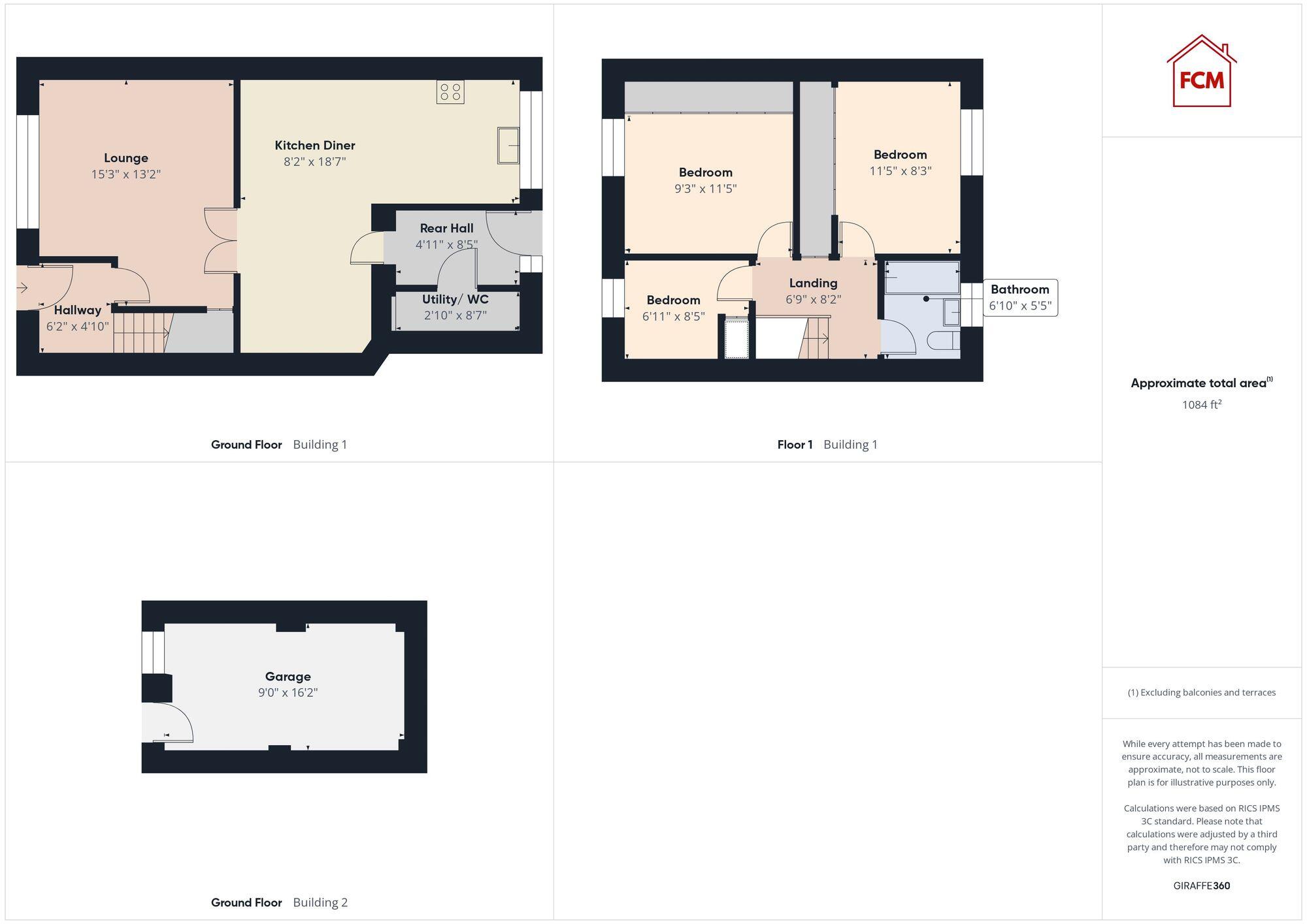
This three-bedroom terraced house in Egremont, Cumbria is listed at £155,000. The property benefits from a modern extension to the rear, creating a spacious kitchen/diner and utility area. The main living space is well-presented with neutral decor and a good size. All bedrooms are doubles with fitted wardrobes. There is also a small, easily manageable garden to the rear. The location is convenient, with nearby schools and transport links. However, the average house price in the area is significantly higher, at £463,182, suggesting this property may be undervalued. Further investigation into the reason for the lower price is recommended.
Therefore, we give this property 6 / 10. *Disclaimer: This is our option and does constitute a recommendation or financial advice. Do your own research. *
- Price
- 6
- Condition
- 8
- Location
- 7
- Land
- 3
- Bedrooms
- 3
- Bathrooms
- 2
- Sqft (est)
- 1,084.00
The heatmap indicates the level of crime in the area. The color of the heatmap indicates the crime severity and recency.
Metrics Year-on-Year
- Average area value
- 436,667.00 £Increased by 9.99 %
- Est sale value
- 582,108.00 £Increased by 46.72 %
- Average area rental value
- 1,625.00 £/moIncreased by 11.23 %
- Est letting value
- 1,084.00 £/moUnchanged by 0.00 %
- Est rental Yield
- 4.47 %Increased by 1.13 %
- Crime Rate
- 19.00 %Unchanged by 0.00 %
Agent Activity
First Choice Move created the listing.
Nearby Schools
| Name | Type | Ofsted | Distance |
|---|---|---|---|
| West Lakes Academy | Academy Sponsor Led | Outstanding | 0.69 KM |
| St Bridget'S Catholic Primary School | Voluntary Aided School | Good | 1.14 KM |
| Bookwell Primary School | Community School | Outstanding | 1.25 KM |
| Orgill Primary School | Community School | Good | 1.52 KM |
| Egremont Surestart Children'S Centre | Children's Centre | 1.59 KM |
Images
Nearby Streets
| Name | Average Price | Average Sqft | Distance |
|---|---|---|---|
| Briscoe Mount | £ 0 | 0 | 0.00 KM |
| Beck Green | £ 0 | 0 | 0.00 KM |
| Castle Walk | £ 0 | 0 | 0.00 KM |
| Whitegate | £ 0 | 0 | 0.00 KM |
| James Park Homes | £ 0 | 0 | 0.00 KM |
Nearby Transport
| Name | NLC | TLC | Distance |
|---|---|---|---|
| Nethertown | 2047 | NRT | 5.68 KM |
| Braystones | 2045 | BYS | 5.88 KM |
| St Bees | 2002 | SBS | 7.07 KM |
| Corkickle | 2049 | CKL | 8.35 KM |
| Sellafield | 2004 | SEL | 8.39 KM |
Nearby Listings
| Address | Price | Type | Score | Distance |
|---|---|---|---|---|
| Dent View, Egremont, CA22 | £ 155,000 | BUY | 6 / 10 | 0.00 KM |
| Dent View, Egremont, CA22 | £ 130,000 | BUY | 7 / 10 | 0.09 KM |
| Dent View, Egremont, CA22 | £ 160,000 | BUY | 7 / 10 | 0.11 KM |
| East Road, Egremont, Cumbria, CA22 | £ 190,000 | BUY | 6 / 10 | 0.17 KM |
| Brisco Mount, Egremont, CA22 | £ 85,000 | BUY | 6 / 10 | 0.21 KM |
Nearby Properties
| Address | Price | Distance |
|---|---|---|
| 43 Brisco Mount | £ 45,000 | 0.21 KM |
| 51 Brisco Mount | £ 78,000 | 0.21 KM |
| 17 Brisco Mount | £ 83,000 | 0.21 KM |
| 59 Brisco Mount | £ 48,000 | 0.21 KM |
| 69 Brisco Mount | £ 61,000 | 0.21 KM |