Creeting St. Mary, Ipswich, Suffolk
By Humberts
£ 350,000
Reviews
3 out of 5 stars
Humberts says ..
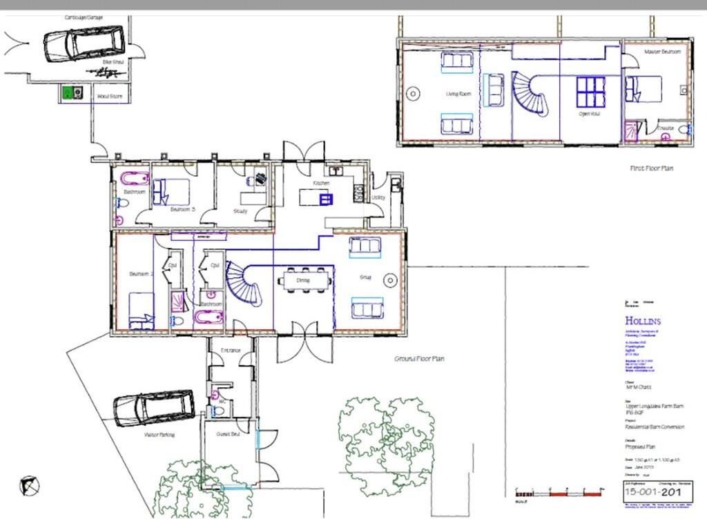
A fine traditional Suffolk Barn with planning permission for development.
Property Oracle says ..
This property is a barn conversion located in Creeting St. Mary, a village in Suffolk. The property is listed at £350,000 and includes a large barn. The average property price in the area is £345,445, with an average price per square foot of £236. However, the square footage of this property is not provided, making a precise price comparison difficult. The property appears to be in a rural location with nearby schools and train stations, although the exact distances are not specified. The condition of the property and the barn are not fully clear from the provided images, but there is evidence of some age and potential need for maintenance. The land size is not provided, but the property does appear to have a significant amount of land.
Therefore, we give this property 7 / 10. *Disclaimer: This is our option and does constitute a recommendation or financial advice. Do your own research. *
- Price
- 7
- Condition
- 7
- Location
- 6
- Land
- 8
- Bedrooms
- 4
- Bathrooms
- 2
The heatmap indicates the level of crime in the area. The color of the heatmap indicates the crime severity and recency.
Metrics Year-on-Year
- Average area value
- 233,333.00 £Decreased by 24.27 %
- Average area rental value
- 895.00 £/moDecreased by 2.61 %
- Est rental Yield
- 4.60 %Increased by 28.49 %
- Crime Rate
- 0.00 %
Agent Activity
Humberts created the listing.
Nearby Schools
| Name | Type | Ofsted | Distance |
|---|---|---|---|
| Creeting St Mary Church Of England Voluntary Aided Primary School | Voluntary Aided School | Good | 1.52 KM |
| Robins Children'S Centre | Children's Centre | 3.60 KM | |
| Freeman Community Primary School | Academy Converter | 3.67 KM | |
| Bosmere Community Primary School | Academy Converter | 3.70 KM | |
| Stowupland High School | Academy Converter | Requires improvement | 4.04 KM |
Images
Nearby Streets
| Name | Average Price | Average Sqft | Distance |
|---|---|---|---|
| Chapel Lane | £ 0 | 0 | 0.00 KM |
Nearby Transport
| Name | NLC | TLC | Distance |
|---|---|---|---|
| Needham Market | 7354 | NMT | 3.29 KM |
| Stowmarket | 7355 | SMK | 6.53 KM |
Nearby Listings
| Address | Price | Type | Score | Distance |
|---|---|---|---|---|
| Creeting St. Mary, Ipswich, Suffolk | £ 350,000 | BUY | 7 / 10 | 0.00 KM |
| Creeting St. Mary, Ipswich, Suffolk | £ 800,000 | BUY | Unknown | 0.04 KM |
| Creeting St. Mary, Ipswich, Suffolk | £ 1,495,000 | BUY | 7 / 10 | 0.04 KM |
| Creeting St. Mary, Ipswich, Suffolk | £ 345,000 | BUY | 7 / 10 | 0.05 KM |
| Creeting St Mary, Suffolk | £ 1,250,000 | BUY | 7 / 10 | 0.10 KM |
Nearby Properties
| Address | Price | Distance |
|---|---|---|
| Mud Hall | £ 535,000 | 0.87 KM |
| St Ambrose Cottage | £ 575,000 | 1.16 KM |
| Fen View | £ 375,000 | 1.16 KM |
| 37 All Saints Road | £ 360,000 | 1.57 KM |
| 1a All Saints Road | £ 224,000 | 1.57 KM |