Church Street, Sidmouth, EX10 8LY
By Redferns Estate and Letting agents
£ 245,000
Reviews
2 out of 5 stars
Redferns Estate and Letting agents says ..
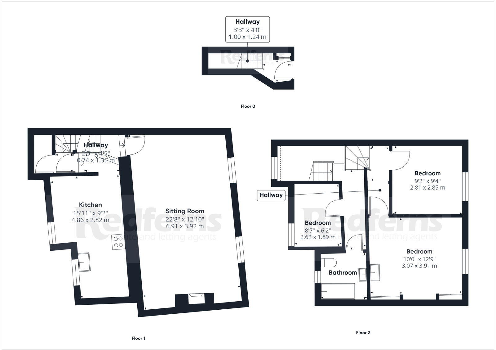
A deceptively spacious, light and airy Maisonette with characterful accommodation conveniently situated in the heart of town
Property Oracle says ..
This is a three-bedroom maisonette located on Church Street in Sidmouth Town. The property appears to be in a traditional style and is in reasonable condition, although some modernisation could be beneficial. Given its location in the town centre, it is likely to be close to local amenities. As a maisonette, it is unlikely to have a garden. The price seems reasonable compared to average property prices in the area.
Therefore, we give this property 5 / 10. *Disclaimer: This is our option and does constitute a recommendation or financial advice. Do your own research. *
- Price
- 7
- Condition
- 6
- Location
- 7
- Land
- 1
- Bedrooms
- 3
- Bathrooms
- 1
The heatmap indicates the level of crime in the area. The color of the heatmap indicates the crime severity and recency.
Metrics Year-on-Year
- Average area value
- 369,988.00 £Decreased by 30.48 %
- Average area rental value
- 1,400.00 £/moIncreased by 12.27 %
- Est rental Yield
- 4.54 %Increased by 61.57 %
- Crime Rate
- 44.00 %Unchanged by 0.00 %
Agent Activity
Redferns Estate and Letting agents created the listing.
Nearby Schools
| Name | Type | Ofsted | Distance |
|---|---|---|---|
| St John'S School | Other Independent School | 1.48 KM | |
| Sidmouth Church Of England (Va) Primary School | Academy Converter | Good | 1.78 KM |
| Sidmouth College | Community School | Good | 2.17 KM |
| Sidmouth Children'S Centre | Children's Centre | 2.33 KM | |
| Sidbury Church Of England Primary School | Academy Converter | Good | 4.96 KM |
Images
Nearby Streets
| Name | Average Price | Average Sqft | Distance |
|---|---|---|---|
| Chapel Road | £ 196,667 | 0 | 0.00 KM |
| Amyatt's Terrace | £ 0 | 0 | 0.00 KM |
| New Street | £ 0 | 0 | 0.00 KM |
| Kings Lane | £ 280,000 | 0 | 0.00 KM |
| Riverside Road | £ 305,000 | 0 | 0.00 KM |
Nearby Listings
| Address | Price | Type | Score | Distance |
|---|---|---|---|---|
| Church Street, Sidmouth, EX10 8LY | £ 245,000 | BUY | Unknown | 0.00 KM |
| Church Street, Sidmouth, EX10 8LY | £ 245,000 | BUY | 5 / 10 | 0.00 KM |
| Bedford Court, Chapel Street, Sidmouth, Devon | £ 275,000 | BUY | Unknown | 0.04 KM |
| Bedford Court, Chapel Street, Sidmouth, Devon | £ 275,000 | BUY | Unknown | 0.04 KM |
| Church Street, Sidmouth | £ 195,000 | BUY | 6 / 10 | 0.06 KM |
Nearby Properties
| Address | Price | Distance |
|---|---|---|
| Osborne House | £ 237,500 | 0.04 KM |
| 2 Amyatts Terrace | £ 390,000 | 0.07 KM |
| 6 Amyatts Terrace | £ 125,000 | 0.07 KM |
| 32 Western Court | £ 165,000 | 0.10 KM |
| 6 Western Court | £ 125,000 | 0.10 KM |