parkinsonfarr says ..
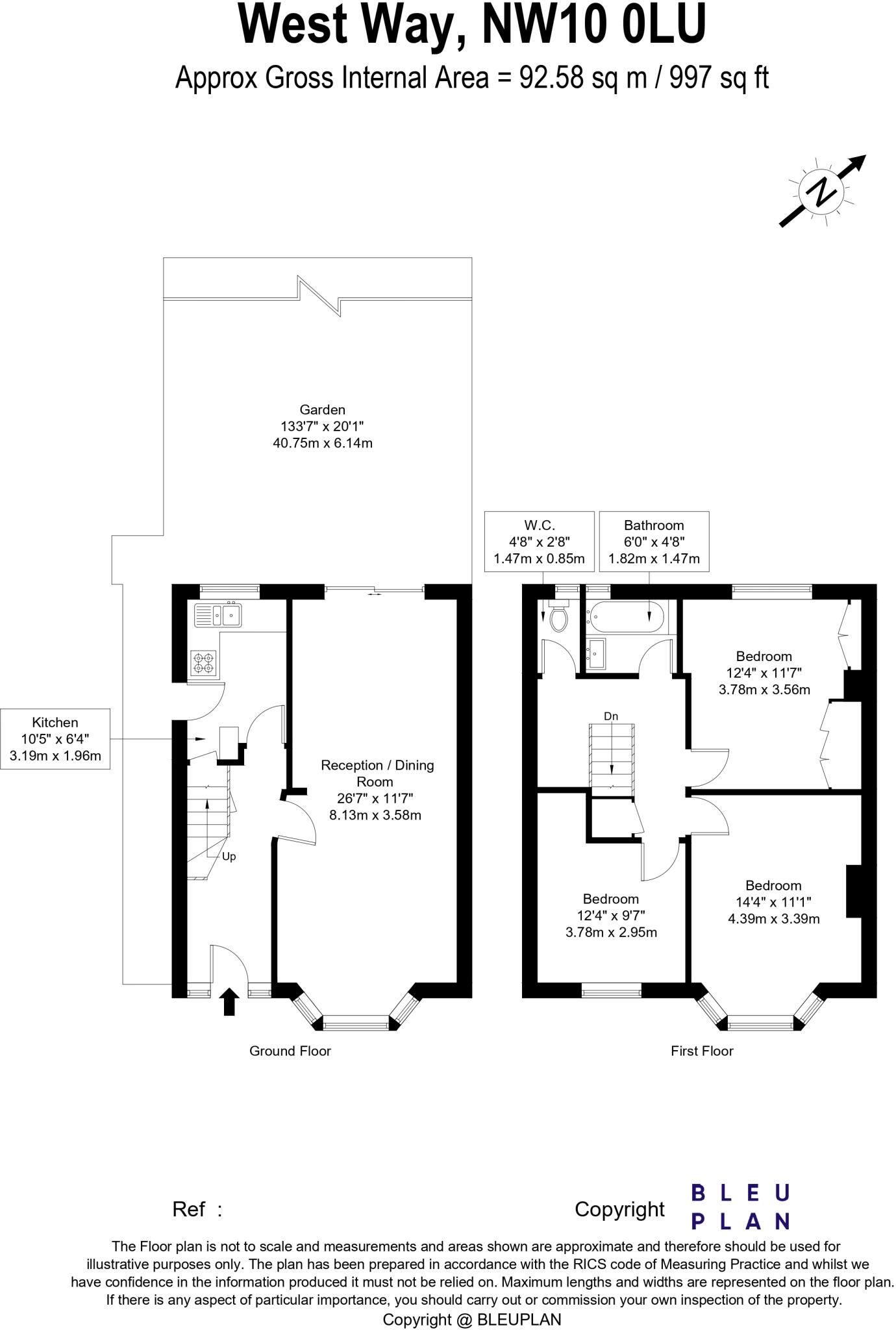
Welcome to this charming three-bedroom terraced home located on the popular West Way in Neasden. Offering comfortable living space across two floors, this property is ideal for families or first-time buyers seeking a convenient location close to local amenities and transport links.
Property Oracle says ..
Therefore, we give this property 5 / 10. *Disclaimer: This is our option and does constitute a recommendation or financial advice. Do your own research. *
- Price
- 5
- Condition
- 4
- Location
- 7
- Land
- 6
- Bedrooms
- 3
- Bathrooms
- 1
- Sqft (est)
- 996.52
- Lot (est)
- 2,688.50
The heatmap indicates the level of crime in the area. The color of the heatmap indicates the crime severity and recency.
Metrics Year-on-Year
- Average area value
- 366,658.00 £Decreased by 31.14 %
- Est sale value
- 510,218.24 £Decreased by 8.90 %
- Average area rental value
- 3,017.00 £/moIncreased by 83.18 %
- Est letting value
- 3,986.08 £/moIncreased by 300.00 %
- Est rental Yield
- 9.87 %Increased by 166.04 %
- Crime Rate
- 5.00 %Unchanged by 0.00 %
from 532,445.00 £
from 560,044.24 £
from 1,647.00 £/mo
from 996.52 £/mo
from 3.71 %
from 5.00 %
Agent Activity
parkinsonfarr created the listing.
Nearby Schools
| Name | Type | Ofsted | Distance |
|---|---|---|---|
| Wykeham Children'S Centre | Children's Centre | 0.40 KM | |
| Wykeham Primary School | Community School | Outstanding | 0.40 KM |
| Unity Girls High School | Other Independent School | Good | 0.40 KM |
| St Margaret Clitherow Rc Primary School | Academy Converter | 0.60 KM | |
| Phoenix Arch School | Community Special School | Good | 0.99 KM |
Images
Nearby Streets
| Name | Average Price | Average Sqft | Distance |
|---|---|---|---|
| Chesham Street | £ 190,000 | 0 | 0.00 KM |
| Arran Court | £ 0 | 0 | 0.00 KM |
| Winslow Close | £ 800,000 | 0 | 0.00 KM |
| Janson Close | £ 0 | 0 | 0.00 KM |
| Neasden Lane North | £ 0 | 0 | 0.00 KM |
Nearby Transport
| Name | NLC | TLC | Distance |
|---|---|---|---|
| Harlesden | 1521 | HDN | 2.73 KM |
| Stonebridge Park | 1454 | SBP | 2.73 KM |
| Hendon | 1522 | HEN | 3.00 KM |
| Wembley Stadium | 1509 | WCX | 3.16 KM |
| Willesden Junction | 1457 | WIJ | 3.48 KM |
Nearby Listings
| Address | Price | Type | Score | Distance |
|---|---|---|---|---|
| West Way, Neasden | £ 500,000 | BUY | 5 / 10 | 0.00 KM |
| 17 West Way, Neasden, London, NW10 0LU | £ 320,000 | BUY | 6 / 10 | 0.04 KM |
| Village Way, London, NW10 | £ 359,950 | BUY | 6 / 10 | 0.15 KM |
| The Rise, London, NW10 | £ 725,000 | BUY | 7 / 10 | 0.17 KM |
| Village Way, London, NW10 | £ 549,000 | BUY | 6 / 10 | 0.17 KM |
Nearby Properties
| Address | Price | Distance |
|---|---|---|
| 12 West Way | £ 650,000 | 0.04 KM |
| 38 West Way | £ 285,000 | 0.04 KM |
| 18 Aylesbury Street | £ 249,500 | 0.10 KM |
| 16 Aylesbury Street | £ 232,000 | 0.10 KM |
| 64 Aylesbury Street | £ 232,000 | 0.10 KM |