Romans says ..
HOME OF THE MONTH - Available with upgraded Silestone worktops and full Stamp Duty Paid worth £16,250* The Blackthorn gives you options to suit your lifestyle, whether it's relaxing in the spacious sitting room or entertaining and eating with family and friends in the full width ...
Property Oracle says ..
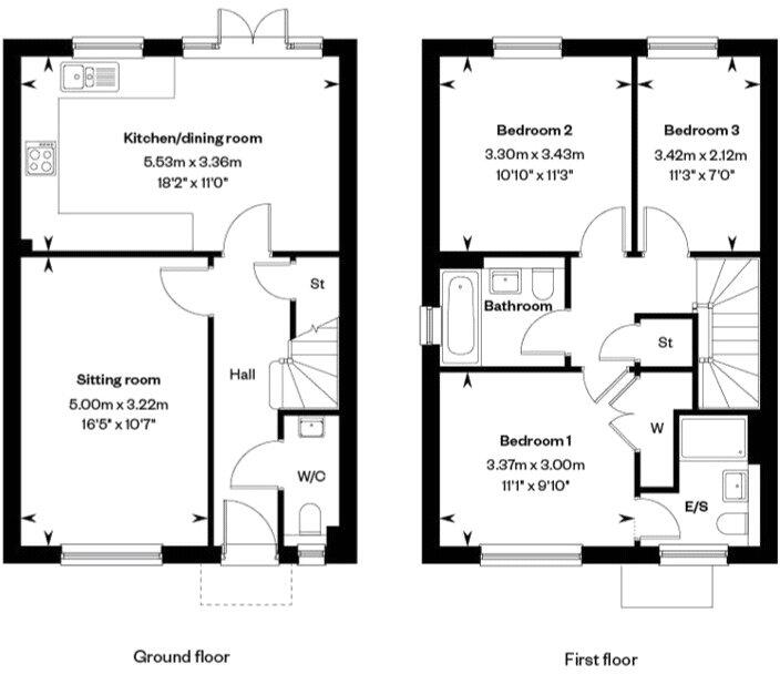
This is a modern semi-detached property in Crowthorne, Berkshire. It features three bedrooms and two bathrooms. The property appears to be in excellent condition, suggesting it’s a new build or has been recently renovated. The location is convenient, with nearby schools and transportation links. The property includes a garden, although the exact plot size is not specified. The listing price is £525,000.
Therefore, we give this property 7 / 10. *Disclaimer: This is our option and does constitute a recommendation or financial advice. Do your own research. *
- Price
- 7
- Condition
- 9
- Location
- 7
- Land
- 5
- Bedrooms
- 3
- Bathrooms
- 2
- Sqft (est)
- 221.95
The heatmap indicates the level of crime in the area. The color of the heatmap indicates the crime severity and recency.
Metrics Year-on-Year
- Average area value
- 217,143.00 £Decreased by 10.70 %
- Est sale value
- 54,599.70 £Decreased by 12.14 %
- Average area rental value
- 1,267.00 £/moIncreased by 25.57 %
- Est letting value
- 221.95 £/moUnchanged by 0.00 %
- Est rental Yield
- 7.00 %Increased by 40.56 %
- Crime Rate
- 0.00 %
Agent Activity
Romans created the listing.
Nearby Schools
| Name | Type | Ofsted | Distance |
|---|---|---|---|
| College Hall | Pupil Referral Unit | Good | 1.29 KM |
| Wooden Hill Primary And Nursery School | Community School | Good | 1.40 KM |
| Hatch Ride Primary School | Academy Converter | 1.45 KM | |
| Easthampstead Park Community School | Community School | Good | 1.65 KM |
| Chestnuts Children'S Centre | Children's Centre Linked Site | 1.69 KM |
Images
Nearby Streets
| Name | Average Price | Average Sqft | Distance |
|---|---|---|---|
| Wheldon Lane | £ 0 | 0 | 0.00 KM |
| Hunt Way | £ 0 | 0 | 0.00 KM |
| Hailwood Avenue | £ 0 | 0 | 0.00 KM |
| Ireland Road | £ 400,000 | 0 | 0.00 KM |
| Donald Campbell Way | £ 0 | 0 | 0.00 KM |
Nearby Transport
| Name | NLC | TLC | Distance |
|---|---|---|---|
| Crowthorne | 5628 | CRN | 4.14 KM |
| Sandhurst (Berks) | 5646 | SND | 4.61 KM |
| Bracknell | 5693 | BCE | 4.99 KM |
| Blackwater | 5625 | BAW | 5.94 KM |
| Wokingham | 5696 | WKM | 6.92 KM |
Nearby Listings
| Address | Price | Type | Score | Distance |
|---|---|---|---|---|
| Hailwood Avenue, Crowthorne, Berkshire | £ 685,000 | BUY | 7 / 10 | 0.00 KM |
| Buckler Ride, Crowthorne, Berkshire | £ 565,000 | BUY | 6 / 10 | 0.00 KM |
| Vale Way, Crowthorne, Wokingham | £ 525,000 | BUY | 7 / 10 | 0.00 KM |
| Buckler Ride, Crowthorne, Berkshire | £ 575,000 | BUY | 6 / 10 | 0.00 KM |
| Buckler's Park, Crowthorne, Berkshire | £ 790,000 | BUY | 7 / 10 | 0.00 KM |
Nearby Properties
| Address | Price | Distance |
|---|---|---|
| 9 Farm Close | £ 348,000 | 0.96 KM |
| 4 Farm Close | £ 410,000 | 0.96 KM |
| 10 Farm Close | £ 265,000 | 0.96 KM |
| 6 Farm Close | £ 500,000 | 0.96 KM |
| 10 Maple Drive | £ 158,500 | 0.96 KM |