City Lofts, Crwys Road Cathays, Cardiff
HE

City Lofts, Crwys Road Cathays, Cardiff

By Hern & Crabtree

£ 179,950

Reviews

3 out of 5 stars

Hern & Crabtree says ..

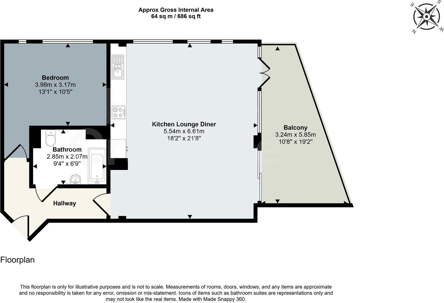
Occupying a desirable position on the rear upper floor of City Lofts, this striking apartment captures the essence of contemporary urban living in one of Cardiff’s most vibrant and well-connected neighbourhoods. Elevated above the city, the aspect enhances both privacy and outlook, with far-reach...

Property Oracle says ..

This is a one-bedroom flat located on Crwys Road in Cathays, Cardiff. The property is in good condition, with a modern kitchen and bathroom. It benefits from a balcony. The location is good, with easy access to local amenities, shops, and transportation links. The property is a flat and has no garden. The price seems reasonable for the area and the condition of the property. The flat benefits from a balcony.

Therefore, we give this property 6 / 10. *Disclaimer: This is our option and does constitute a recommendation or financial advice. Do your own research. *

Price
7
Condition
8
Location
7
Land
3
Bedrooms
1
Bathrooms
1

The heatmap indicates the level of crime in the area. The color of the heatmap indicates the crime severity and recency.

Metrics Year-on-Year

Average area value
352,000.00 £
Increased by 10.48 %
from 318,620.00 £
Average area rental value
1,274.00 £/mo
Increased by 14.16 %
from 1,116.00 £/mo
Est rental Yield
4.34 %
Increased by 3.33 %
from 4.20 %
Crime Rate
9.00 %
Unchanged by 0.00 %
from 9.00 %

Agent Activity

  • Hern & Crabtree created the listing.

Nearby Schools

NameTypeOfstedDistance
Albany Primary SchoolWelsh Establishment0.62 KM
Ysgol Y Berllan DegWelsh Establishment0.62 KM
Roath Park Primary SchoolWelsh Establishment0.62 KM
Kings Monkton SchoolWelsh Establishment0.94 KM
Cardiff Muslim Primary SchoolWelsh Establishment1.10 KM

Images

City Lofts (34).jpg City Lofts (7).jpg City Lofts (11).jpg City Lofts (35).jpg City Lofts (14).jpg City Lofts (12).jpg City Lofts (23).jpg City Lofts (1).jpg City Lofts (16).jpg City Lofts (20).jpg City Lofts (17).jpg City Lofts (29).jpg City Lofts (30).jpg City Lofts (28).jpg City Lofts (9).jpg City Lofts (2).jpg City Lofts (5).jpg City Lofts (3).jpg City Lofts (15).jpg City Lofts (4).jpg City Lofts (10).jpg City Lofts (13).jpg City Lofts (18).jpg City Lofts (24).jpg City Lofts (25).jpg City Lofts (6).jpg City Lofts (31).jpg City Lofts (27).jpg City Lofts (21).jpg City Lofts (8).jpg City Lofts (32).jpg City Lofts (33).jpg City Lofts (19).jpg City Lofts (22).jpg City Lofts (26).jpg

Nearby Streets

NameAverage PriceAverage SqftDistance
Rhymney Terrace £ 245,00000.00 KM
Norman Street £ 000.00 KM
St Martins Row £ 000.00 KM
Fitzroy Street £ 346,25000.00 KM
Thesiger Court £ 217,50000.00 KM

Nearby Transport

NameNLCTLCDistance
Cathays3820CYS0.74 KM
Cardiff Queen Street3900CDQ1.32 KM
Cardiff Central3899CDF2.02 KM
Heath Low Level3908HLL2.65 KM
Heath High Level3845HHL2.71 KM

Nearby Listings

AddressPriceTypeScoreDistance
City Lofts, Crwys Road Cathays, Cardiff £ 179,950BUY6 / 100.00 KM
Crwys Road, Cathays, CF24 £ 160,000BUY6 / 100.02 KM
City Lofts, Crwys Road, Cardiff £ 155,000BUY7 / 100.02 KM
Crwys Place, Cathays, Cardiff £ 245,000BUYUnknown0.04 KM
Rhymney Street, Cardiff £ 130,000BUY6 / 100.14 KM

Nearby Properties

AddressPriceDistance
2 Crwys Road £ 35,0000.05 KM
8 Violet Row £ 220,0000.05 KM
2 Violet Row £ 84,9500.05 KM
4 Crwys Road £ 295,0000.07 KM
6 Crwys Road £ 293,5000.07 KM