New Providence Wharf, 1 Fairmont Avenue, E14
By Chestertons Estate Agents
£ 600,000
Reviews
3 out of 5 stars
Chestertons Estate Agents says ..
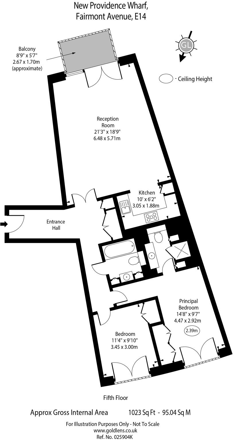
A 1023sq ft 5th floor 2 bedroom 2 bathroom apartment in the sought-after New Providence Wharf development. The apartment benefits from a very spacious South-facing reception room with balcony overlooking the river & O2 Centre. Valet parking included.
Property Oracle says ..
The property is located in the New Providence Wharf development in Blackwall & Cubitt Town, Tower Hamlets. This area benefits from good transport links, with West Ham station being approximately 2.75km away, offering access to the London Underground. There are also several Southeastern train stations within a 3-4km radius. The property itself is a two-bedroom, two-bathroom apartment with a spacious living area and a balcony offering views of the river. Based on the images, the property appears to be in good condition, with modern fixtures and fittings. The lack of plot size information prevents a comment on the land aspect. The list price of £600,000 is in line with other similar properties in the area, as evidenced by the nearby listings, although the absence of square footage data for comparable properties makes a precise price-per-square-foot comparison difficult. However, considering the location, condition, and apparent size of the apartment, the price seems reasonable.
Therefore, we give this property 6 / 10. *Disclaimer: This is our option and does constitute a recommendation or financial advice. Do your own research. *
- Price
- 7
- Condition
- 9
- Location
- 8
- Land
- 1
- Bedrooms
- 2
- Bathrooms
- 2
- Sqft (est)
- 1,023.00
The heatmap indicates the level of crime in the area. The color of the heatmap indicates the crime severity and recency.
Metrics Year-on-Year
- Average area value
- 772,015.00 £Increased by 8.00 %
- Est sale value
- 351,912.00 £Decreased by 60.82 %
- Average area rental value
- 1,899.00 £/moDecreased by 56.45 %
- Est letting value
- 0.00 £/moDecreased by 100.00 %
- Est rental Yield
- 2.95 %Decreased by 59.70 %
- Crime Rate
- 9.00 %Unchanged by 0.00 %
Agent Activity
Chestertons Estate Agents created the listing.
Nearby Schools
| Name | Type | Ofsted | Distance |
|---|---|---|---|
| Woolmore Primary School | Community School | Good | 0.63 KM |
| Aberfeldy Children'S Centre | Children's Centre Linked Site | 0.80 KM | |
| Culloden Primary - A Paradigm Academy | Academy Converter | Outstanding | 0.83 KM |
| Cspc International School, Hui Yang | Service Children's Education | 1.14 KM | |
| Haizira School | Service Children's Education | 1.14 KM |
Images
Nearby Streets
| Name | Average Price | Average Sqft | Distance |
|---|---|---|---|
| Yabsley Street | £ 0 | 0 | 0.00 KM |
| Hornley Walk | £ 0 | 0 | 0.00 KM |
| Clove Crescent | £ 0 | 0 | 0.00 KM |
| East India Dock Road Tunnel | £ 599,990 | 0 | 0.00 KM |
| Robin Hood Lane | £ 0 | 0 | 0.00 KM |
Nearby Transport
| Name | NLC | TLC | Distance |
|---|---|---|---|
| West Ham | 7474 | WEH | 2.75 KM |
| Maze Hill | 5149 | MZH | 2.77 KM |
| Greenwich | 5146 | GNW | 3.25 KM |
| Westcombe Park | 5151 | WCB | 3.58 KM |
| Deptford | 5145 | DEP | 3.83 KM |
Nearby Listings
| Address | Price | Type | Score | Distance |
|---|---|---|---|---|
| New Providence Wharf, 1 Fairmont Avenue, London, London The Metropolis | £ 560,000 | BUY | 5 / 10 | 0.00 KM |
| Fairmont Avenue, London, E14 9PF | £ 385,000 | BUY | 6 / 10 | 0.00 KM |
| New Providence Wharf, 1 Fairmont Avenue, Canary Wharf, London, E14 | £ 600,000 | BUY | Unknown | 0.00 KM |
| New Providence Wharf, 1 Fairmont Avenue, E14 | £ 600,000 | BUY | 6 / 10 | 0.00 KM |
| New Providence Wharf, Canary Wharf, London, E14 | £ 425,000 | BUY | 6 / 10 | 0.00 KM |
Nearby Properties
| Address | Price | Distance |
|---|---|---|
| 60 Naval Row | £ 180,000 | 0.32 KM |
| 36 Naval Row | £ 247,500 | 0.32 KM |
| 32 Naval Row | £ 263,000 | 0.32 KM |
| 44 Naval Row | £ 50,000 | 0.32 KM |
| 40 Naval Row | £ 212,500 | 0.32 KM |