Jackie Stanley says ..
This brand new select development of contemporary style, energy efficiency and exacting standards is idyllically situated in a tranquil rural hamlet just inland from foodie capital Padstow and the magnificent North Cornwall coast.
Property Oracle says ..
Therefore, we give this property 8 / 10. *Disclaimer: This is our option and does constitute a recommendation or financial advice. Do your own research. *
- Price
- 9
- Condition
- 9
- Location
- 7
- Land
- 7
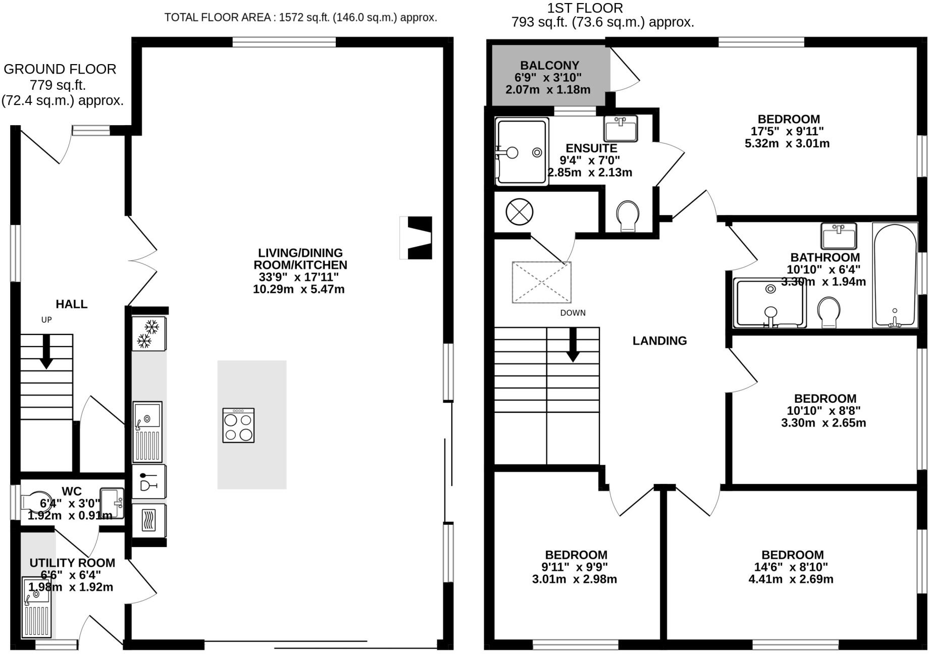
- Bedrooms
- 4
- Bathrooms
- 2
- Sqft (est)
- 1,214.40
The heatmap indicates the level of crime in the area. The color of the heatmap indicates the crime severity and recency.
Metrics Year-on-Year
- Average area value
- 1,382,727.00 £Increased by 100.01 %
- Est sale value
- 988,521.60 £Increased by 36.58 %
- Average area rental value
- 1,638.00 £/moIncreased by 35.60 %
- Est letting value
- 0.00 £/moDecreased by 100.00 %
- Est rental Yield
- 1.42 %Decreased by 32.38 %
- Crime Rate
- 0.00 %
from 691,318.00 £
from 723,782.40 £
from 1,208.00 £/mo
from 1,214.40 £/mo
from 2.10 %
from 0.00 %
Agent Activity
Jackie Stanley created the listing.
Nearby Schools
| Name | Type | Ofsted | Distance |
|---|---|---|---|
| St Issey Church Of England Primary School | Academy Converter | 1.32 KM | |
| Padstow School | Academy Converter | Requires improvement | 4.99 KM |
| Trevisker Primary School | Academy Converter | Good | 6.57 KM |
| St Minver School | Academy Converter | Good | 6.91 KM |
| St Columb Major Children'S Centre | Children's Centre Linked Site | 7.58 KM |
Images
Nearby Streets
| Name | Average Price | Average Sqft | Distance |
|---|---|---|---|
| Tredinnick Farm Barn | £ 0 | 0 | 0.00 KM |
| Sentry Close | £ 795,000 | 0 | 0.00 KM |
| Council Houses | £ 509,000 | 0 | 0.00 KM |
| Trewince | £ 0 | 0 | 0.00 KM |
| Trevibban Barton Barns | £ 0 | 0 | 0.00 KM |
Nearby Listings
| Address | Price | Type | Score | Distance |
|---|---|---|---|---|
| Gunver, Tredinnick, PL27 | £ 795,000 | BUY | 8 / 10 | 0.00 KM |
| Stepper, Tredinnick, PL27 | £ 825,000 | BUY | 7 / 10 | 0.00 KM |
| Longcarrow House, Tredinnick, PL27 | £ 875,000 | BUY | Unknown | 0.18 KM |
| Tredinnick Farm Barn, Wadebridge, PL27 | £ 460,000 | BUY | 8 / 10 | 0.35 KM |
| Trenance, St Issey | £ 350,000 | BUY | Unknown | 0.48 KM |
Nearby Properties
| Address | Price | Distance |
|---|---|---|
| 1 Trenance Cottages | £ 215,000 | 0.48 KM |
| Victoria House | £ 350,000 | 1.30 KM |
| Rock Cottage | £ 282,000 | 1.30 KM |
| Eglos Cottage | £ 129,950 | 1.30 KM |
| Sunny Corner | £ 400,000 | 1.30 KM |