MO
Oakfield Street, Roath, Cardiff
By Moginie James
£ 160,000
Reviews
2 out of 5 stars
Moginie James says ..
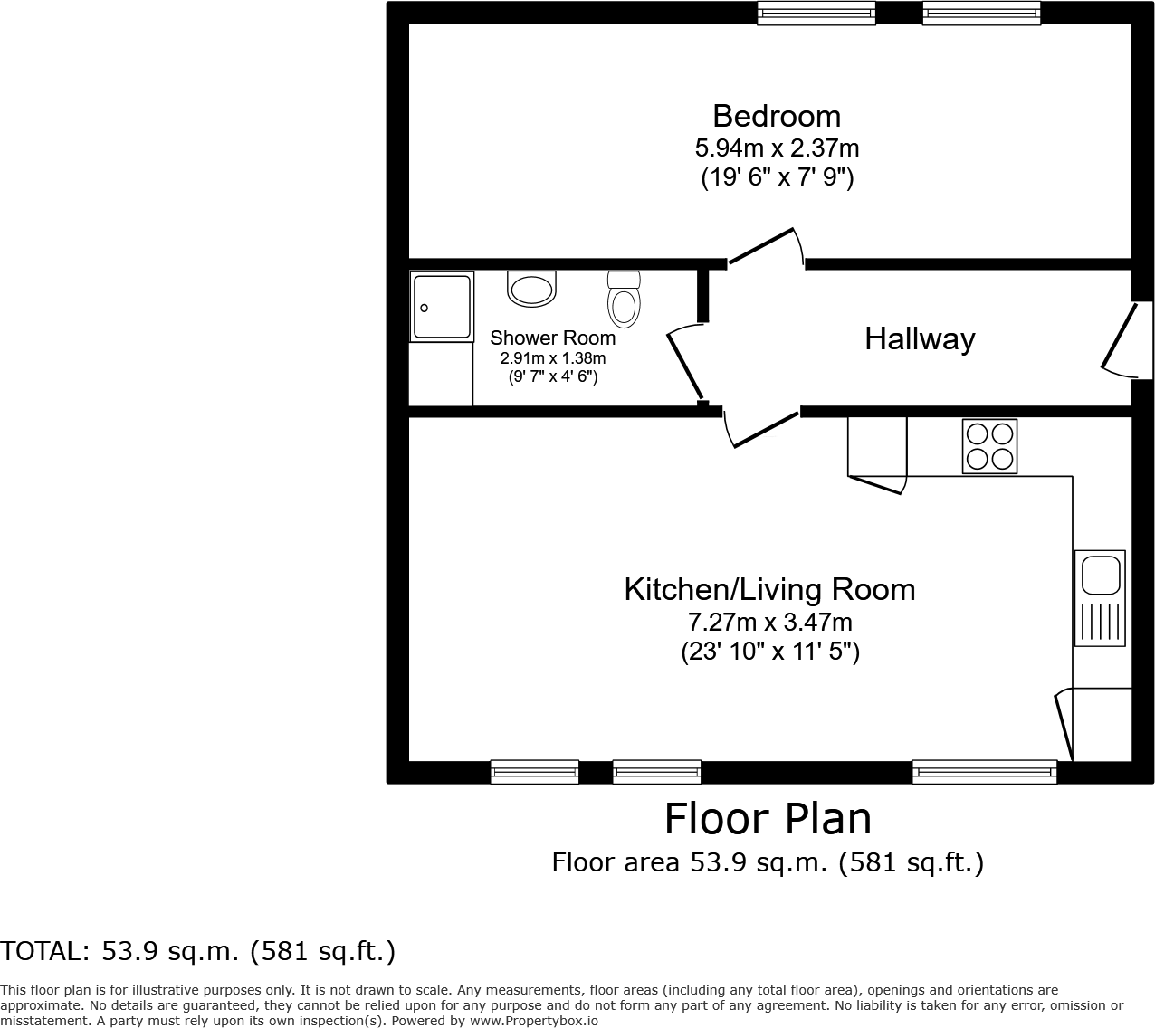
For Sale: A well-presented, one-bedroom flat situated in a highly sought-after location. This property is ideal for first-time buyers and investors, offering excellent access to public transport links, local amenities, nearby schools, and parks. The property also benefits from allocated gated of...
Property Oracle says ..
Therefore, we give this property 5 / 10. *Disclaimer: This is our option and does constitute a recommendation or financial advice. Do your own research. *
- Price
- 7
- Condition
- 6
- Location
- 7
- Land
- 1
- Bedrooms
- 1
- Bathrooms
- 1
- Sqft (est)
- 580.17
The heatmap indicates the level of crime in the area. The color of the heatmap indicates the crime severity and recency.
Metrics Year-on-Year
- Average area value
- 352,000.00 £Increased by 10.48 %
- Est sale value
- 169,989.81 £Decreased by 2.66 %
- Average area rental value
- 1,274.00 £/moIncreased by 14.16 %
- Est letting value
- 580.17 £/moUnchanged by 0.00 %
- Est rental Yield
- 4.34 %Increased by 3.33 %
- Crime Rate
- 9.00 %Unchanged by 0.00 %
from 318,620.00 £
from 174,631.17 £
from 1,116.00 £/mo
from 580.17 £/mo
from 4.20 %
from 9.00 %
Agent Activity
Moginie James created the listing.
Nearby Schools
| Name | Type | Ofsted | Distance |
|---|---|---|---|
| Stacey Primary School | Welsh Establishment | 0.39 KM | |
| St Peter'S R.C. Primary School | Welsh Establishment | 0.50 KM | |
| Adamsdown Primary School | Welsh Establishment | 0.65 KM | |
| Tredegarville C.I.W. Primary School | Welsh Establishment | 0.95 KM | |
| Cardiff Academy | Welsh Establishment | 1.08 KM |
Images
Nearby Streets
| Name | Average Price | Average Sqft | Distance |
|---|---|---|---|
| Oakfield Street | £ 160,000 | 0 | 0.00 KM |
| Richards Place | £ 149,950 | 0 | 0.00 KM |
| Priest Road | £ 0 | 0 | 0.00 KM |
| Princes Avenue | £ 450,000 | 0 | 0.00 KM |
| Partridge Lane | £ 0 | 0 | 0.00 KM |
Nearby Transport
| Name | NLC | TLC | Distance |
|---|---|---|---|
| Cardiff Queen Street | 3900 | CDQ | 1.61 KM |
| Cathays | 3820 | CYS | 2.36 KM |
| Cardiff Bay | 3815 | CDB | 2.60 KM |
| Cardiff Central | 3899 | CDF | 2.81 KM |
| Heath Low Level | 3908 | HLL | 4.05 KM |
Nearby Listings
| Address | Price | Type | Score | Distance |
|---|---|---|---|---|
| Oakfield Street, Roath, Cardiff | £ 160,000 | BUY | 5 / 10 | 0.00 KM |
| Stacey Road, Cardiff | £ 150,000 | BUY | 6 / 10 | 0.05 KM |
| Stacey Road, Cardiff | £ 280,000 | BUY | 6 / 10 | 0.05 KM |
| Stacey Road, CARDIFF, South Glamorgan, CF24 | £ 290,000 | BUY | 7 / 10 | 0.05 KM |
| Stacey Road, Cardiff | £ 200,000 | BUY | 5 / 10 | 0.05 KM |
Nearby Properties
| Address | Price | Distance |
|---|---|---|
| 4 Stacey Road | £ 310,000 | 0.05 KM |
| 14 Stacey Road | £ 176,000 | 0.05 KM |
| 27 Stacey Road | £ 220,000 | 0.05 KM |
| 9 Stacey Road | £ 143,000 | 0.05 KM |
| 1 Stacey Road | £ 43,250 | 0.05 KM |