Almsgate, Compton, Guildford, GU3 1JG
By Chantries and Pewleys Estate Agents
£ 175,000
Reviews
2 out of 5 stars
Chantries and Pewleys Estate Agents says ..
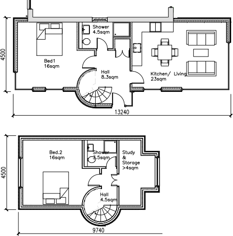
Planning has been approved for a great opportunity to build a semi-detached two bedroom chalet bungalow in the heart of Compton village.
Property Oracle says ..
This property located in Compton, Guildford, is a two-bedroom, two-bathroom house with a list price of £175,000 and a size of 832.05 sqft. The location benefits from being in the sought-after village of Compton in Surrey, which offers a balance between a tranquil lifestyle and convenient access to Guildford and other nearby towns such as Godalming. The proximity to several mainline railway stations makes commuting relatively easier. Several primary and secondary schools are within reasonable distance; however, it is prudent to check the most recent Ofsted reports for each school to assess their quality. The significant proposed development works shown in the included architectural plans suggest that the property is currently in need of modernisation or renovation. The plans illustrate substantial alterations, indicating a considerable amount of work is needed to bring it to an acceptable living standard. The lack of detail regarding the existing condition prevents further comment. The property itself appears to have a very small garden, or negligible outdoor space, as the plot size is listed as 0.00 sqft. This is a significant drawback, especially compared to the larger gardens often found in other properties in Compton. The listing price of £175,000 requires further analysis to determine how reasonable it is. While Compton is a desirable area, this price may be on the lower end depending on the property’s condition after renovation and the final size following the proposed building works. A direct price per square foot comparison isn’t possible due to the lack of sqft data for comparable nearby properties. However, sales data for properties on the same street, Almsgate, suggests a potentially reasonable price point, although the size remains uncertain. Therefore, prospective buyers should obtain a comprehensive structural survey and possibly a professional valuation to ensure the asking price aligns with the anticipated cost of renovations and the final property value. In short, while the location and price have potential, the significant renovation requirements and minimal land size significantly affect the overall property value and require careful consideration. The lack of complete information is a concern as a detailed comparative market analysis cannot be done at this stage.
Therefore, we give this property 4 / 10. *Disclaimer: This is our option and does constitute a recommendation or financial advice. Do your own research. *
- Price
- 7
- Condition
- 4
- Location
- 6
- Land
- 1
- Bedrooms
- 2
- Bathrooms
- 2
- Sqft (est)
- 832.05
The heatmap indicates the level of crime in the area. The color of the heatmap indicates the crime severity and recency.
Metrics Year-on-Year
- Average area value
- 868,889.00 £Increased by 62.40 %
- Est sale value
- 817,073.10 £Increased by 71.68 %
- Average area rental value
- 4,995.00 £/moIncreased by 157.21 %
- Est letting value
- 4,160.25 £/moIncreased by 150.00 %
- Est rental Yield
- 6.90 %Increased by 58.26 %
- Crime Rate
- 70.00 %Unchanged by 0.00 %
Agent Activity
Chantries and Pewleys Estate Agents created the listing.
Nearby Schools
| Name | Type | Ofsted | Distance |
|---|---|---|---|
| Prior'S Field School | Other Independent School | 1.76 KM | |
| Loseley Fields Primary School | Academy Converter | Requires improvement | 1.95 KM |
| Charterhouse | Other Independent School | 1.97 KM | |
| Loseley Fields Sure Start Children'S Centre | Children's Centre | 2.09 KM | |
| Farncombe Church Of England Infant School | Voluntary Controlled School | Good | 2.91 KM |
Images
Nearby Streets
| Name | Average Price | Average Sqft | Distance |
|---|---|---|---|
| New Pond Road | £ 0 | 0 | 0.00 KM |
| Mark Way | £ 0 | 0 | 0.00 KM |
| Guildford and Godalming Bypass | £ 0 | 0 | 0.00 KM |
Nearby Transport
| Name | NLC | TLC | Distance |
|---|---|---|---|
| Farncombe | 5643 | FNC | 3.04 KM |
| Godalming | 5629 | GOD | 3.13 KM |
| Wanborough | 5639 | WAN | 5.70 KM |
| Guildford | 5631 | GLD | 5.70 KM |
| Milford (Surrey) | 5644 | MLF | 5.73 KM |
Nearby Listings
| Address | Price | Type | Score | Distance |
|---|---|---|---|---|
| Almsgate, Compton, Guildford, GU3 1JG | £ 175,000 | BUY | 4 / 10 | 0.00 KM |
| Spiceall, Compton, Guildford, Surrey, GU3 | £ 500,000 | BUY | 7 / 10 | 0.08 KM |
| Almsgate, Guildford, Surrey, GU3 | £ 217,500 | BUY | 7 / 10 | 0.10 KM |
| Spiceall, Compton, Guildford, Surrey, GU3 | £ 415,000 | BUY | 6 / 10 | 0.15 KM |
| Fowlers Croft, Compton, Guildford, Surrey, GU3 | £ 495,000 | BUY | 7 / 10 | 0.40 KM |
Nearby Properties
| Address | Price | Distance |
|---|---|---|
| 10 Almsgate | £ 247,000 | 0.01 KM |
| 28 Almsgate | £ 440,000 | 0.01 KM |
| 5 Almsgate | £ 245,000 | 0.01 KM |
| 7 Almsgate | £ 260,000 | 0.01 KM |
| 6 Almsgate | £ 323,079 | 0.01 KM |