Somerleigh Road, Dorchester
By Hive & Partners
£ 350,000
Reviews
3 out of 5 stars
Hive & Partners says ..
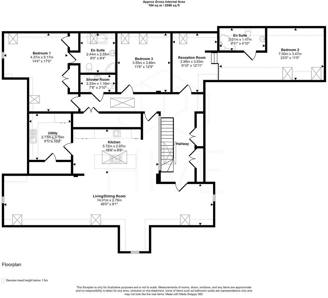
** Spacious penthouse apartment set across 2,086 sq. ft. ** Two allocated parking spaces ** Three bedrooms ** Two en-suites ** Kitchen, dining, living space ** Utility room ** Shower room ** Close to the town centre ** Bus stop nearby **
Property Oracle says ..
This spacious three-bedroom, three-bathroom apartment in Dorchester, Dorset is presented in excellent condition. The images showcase a recently renovated or meticulously maintained property with modern fixtures and fittings. The open-plan living area seamlessly blends the kitchen, dining, and living spaces, creating a modern and airy atmosphere. The kitchen is equipped with modern appliances and ample counter space, while the bedrooms benefit from natural light and offer ample storage. The overall aesthetic is modern and clean, though the style could be considered uninspired or bland. The property benefits from being located close to the town centre of Dorchester, as well as train stations, making it a practical location for those who rely on public transport or those working in the Dorchester area. However, it is crucial to note that this is an apartment and does not include a private garden. While the listing price falls within the range of other comparable properties in the immediate area, it is important to carefully compare this property’s specific features and the lack of outside space against others to ensure a price that is justified, given the local market trends and competing options.
Therefore, we give this property 6 / 10. *Disclaimer: This is our option and does constitute a recommendation or financial advice. Do your own research. *
- Price
- 7
- Condition
- 9
- Location
- 8
- Land
- 1
- Bedrooms
- 3
- Bathrooms
- 3
- Sqft (est)
- 2,086.00
The heatmap indicates the level of crime in the area. The color of the heatmap indicates the crime severity and recency.
Metrics Year-on-Year
- Average area value
- 345,000.00 £Increased by 3.53 %
- Est sale value
- 1,103,494.00 £Increased by 83.68 %
- Average area rental value
- 1,073.00 £/moDecreased by 14.71 %
- Est letting value
- 2,086.00 £/moUnchanged by 0.00 %
- Est rental Yield
- 3.73 %Decreased by 17.66 %
- Crime Rate
- 54.00 %Unchanged by 0.00 %
Agent Activity
Hive & Partners created the listing.
Nearby Schools
| Name | Type | Ofsted | Distance |
|---|---|---|---|
| Sunninghill Preparatory School | Other Independent School | 0.79 KM | |
| Dorchester Middle School | Academy Converter | Requires improvement | 1.18 KM |
| St Mary'S Catholic First School, Dorchester | Academy Converter | Good | 1.28 KM |
| St Osmund'S Church Of England Middle School | Academy Converter | 1.32 KM | |
| Manor Park Church Of England First School | Voluntary Controlled School | Good | 1.49 KM |
Images
Nearby Streets
| Name | Average Price | Average Sqft | Distance |
|---|---|---|---|
| Bowling Alley Walk | £ 300,000 | 0 | 0.00 KM |
| South Walks | £ 210,000 | 0 | 0.00 KM |
| Pope Street | £ 361,250 | 0 | 0.00 KM |
| Acland Road | £ 0 | 0 | 0.00 KM |
| School Lane | £ 0 | 0 | 0.00 KM |
Nearby Transport
| Name | NLC | TLC | Distance |
|---|---|---|---|
| Dorchester West | 5962 | DCW | 0.46 KM |
| Dorchester South | 5961 | DCH | 0.57 KM |
| Upwey | 5967 | UPW | 7.87 KM |
Nearby Listings
| Address | Price | Type | Score | Distance |
|---|---|---|---|---|
| Somerleigh Road, Dorchester | £ 350,000 | BUY | 6 / 10 | 0.00 KM |
| Old Rectory, Somerleigh Road, Dorchester | £ 195,000 | BUY | 7 / 10 | 0.01 KM |
| Somerleigh Road, Dorchester, Dorset, DT1 | £ 200,000 | BUY | 5 / 10 | 0.03 KM |
| Somerleigh Road, Dorchester | £ 280,000 | BUY | 6 / 10 | 0.03 KM |
| Somerleigh Road, Dorchester, Dorset, DT1 | £ 350,000 | BUY | 6 / 10 | 0.04 KM |
Nearby Properties
| Address | Price | Distance |
|---|---|---|
| 32 Somerleigh Road | £ 187,500 | 0.02 KM |
| 40 Somerleigh Road | £ 212,000 | 0.02 KM |
| 24 Somerleigh Road | £ 132,500 | 0.02 KM |
| 30 Somerleigh Road | £ 216,500 | 0.02 KM |
| 8 Somerleigh Road | £ 300,000 | 0.02 KM |