Argyle Street, Wrexham
By Bowen Son and Watson with Kent Jones
£ 300,000
Reviews
2 out of 5 stars
Bowen Son and Watson with Kent Jones says ..
A mixed use city centre investment opportunity comprising a ground-floor lock up shop having an established sitting tenant together with four self-contained residential studio apartments above. The property has been a consistent income producer with excellent occupancy over many years and enjoys...
Property Oracle says ..
This property in Wrexham town centre presents a mixed-use investment opportunity, comprising commercial space on the ground floor and residential studio apartments above. The listing highlights its consistent income generation and excellent occupancy rates over many years. The photos show a modern, recently renovated interior with simple, functional finishes. The lack of garden space is typical for a city centre property. The location offers easy access to amenities, schools, and train stations, and is adjacent to Queens Square in the town centre. However, the property listing does not provide the total area for the property, nor the number of bedrooms and bathrooms; making it difficult to ascertain the accurate size and determine the quality of the accommodation. It is noteworthy to mention that the surrounding area may not be as attractive as other parts of Wrexham, as shown in the aerial image. The price is potentially high considering the data, despite the high price of other nearby commercial properties. Further investigation is essential before making any conclusions on the value for money. Due to lack of property information, the analysis has many gaps in the information that would allow for a more complete review of the property.
Therefore, we give this property 5 / 10. *Disclaimer: This is our option and does constitute a recommendation or financial advice. Do your own research. *
- Price
- 6
- Condition
- 8
- Location
- 7
- Land
- 1
- Bedrooms
- 0
- Bathrooms
- 0
- Sqft (est)
- 678.13
The heatmap indicates the level of crime in the area. The color of the heatmap indicates the crime severity and recency.
Metrics Year-on-Year
- Average area value
- 502,500.00 £Increased by 40.73 %
- Est sale value
- 305,158.50 £Increased by 89.08 %
- Average area rental value
- 961.00 £/moDecreased by 1.13 %
- Est letting value
- 0.00 £/mo
- Est rental Yield
- 2.29 %Decreased by 29.97 %
- Crime Rate
- 28.00 %Unchanged by 0.00 %
Agent Activity
Bowen Son and Watson with Kent Jones created the listing.
Nearby Schools
| Name | Type | Ofsted | Distance |
|---|---|---|---|
| St Mary'S R.C. Primary School | Welsh Establishment | 0.40 KM | |
| St Giles Vc Church In Wales Primary School | Welsh Establishment | 0.54 KM | |
| Woodlands Children'S Development Centre | Welsh Establishment | 0.59 KM | |
| Alexandra C.P. School | Welsh Establishment | 0.88 KM | |
| Rhosddu Primary School | Welsh Establishment | 1.01 KM |
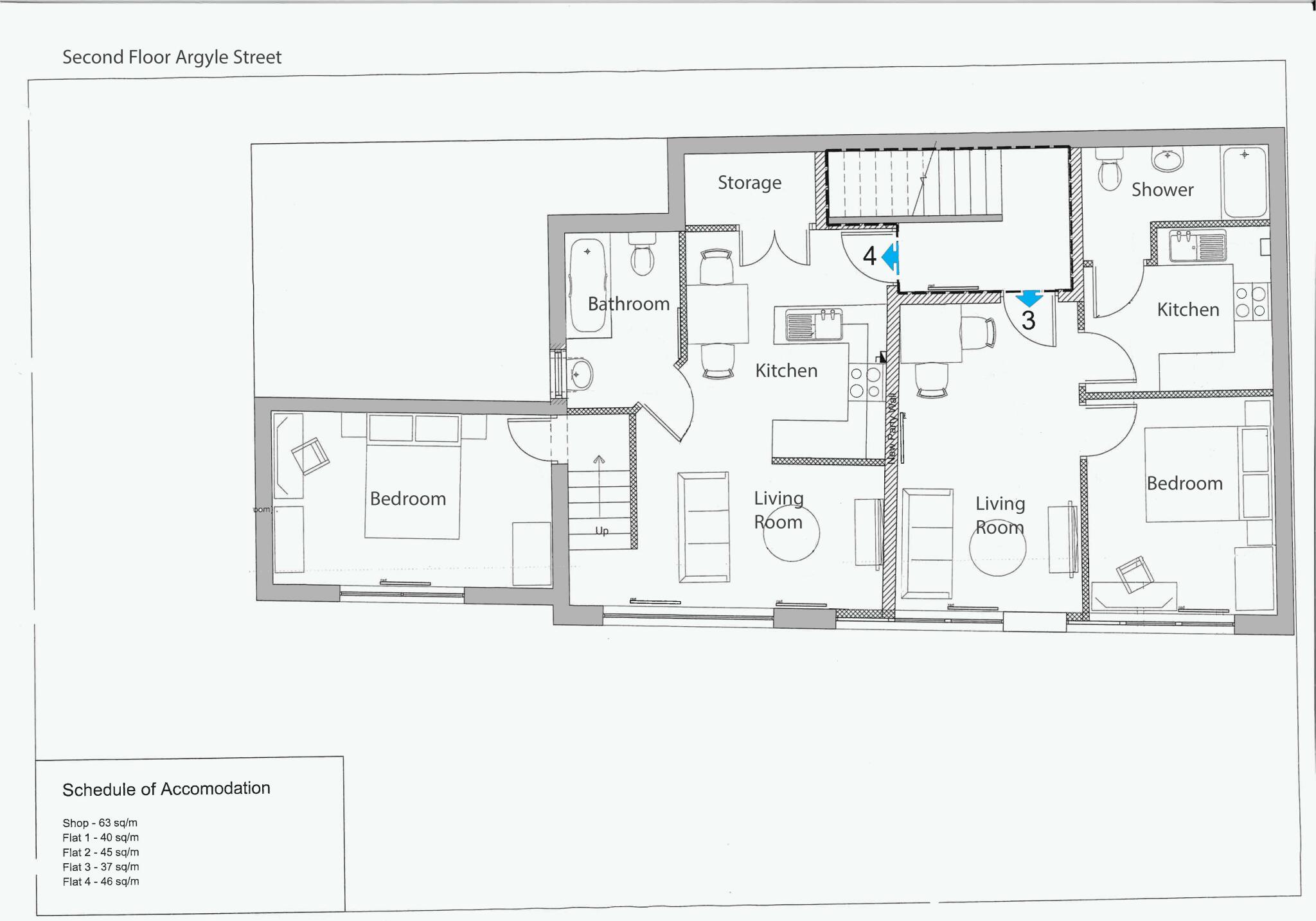
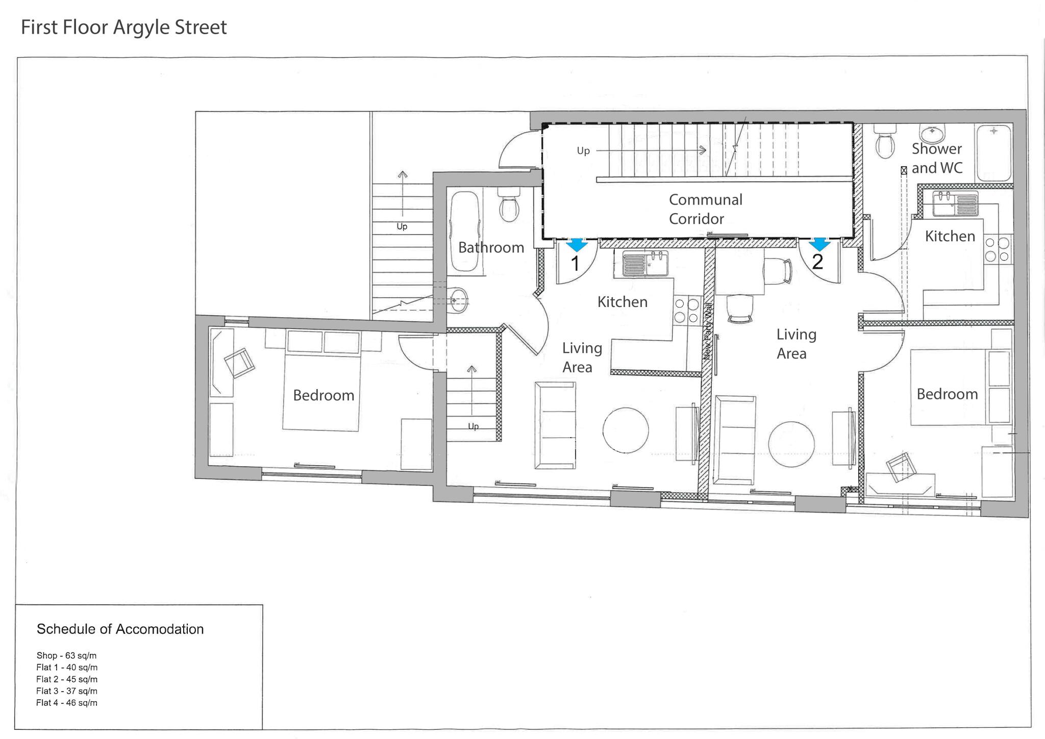
Images
Nearby Streets
| Name | Average Price | Average Sqft | Distance |
|---|---|---|---|
| Queens Square | £ 0 | 0 | 0.00 KM |
| Lord Street | £ 0 | 0 | 0.00 KM |
| Chester Street | £ 0 | 0 | 0.00 KM |
| Pentrefelin | £ 105,000 | 0 | 0.00 KM |
| Bridewell Court | £ 0 | 0 | 0.00 KM |
Nearby Transport
| Name | NLC | TLC | Distance |
|---|---|---|---|
| Wrexham Central | 4486 | WXC | 0.51 KM |
| Wrexham General | 4487 | WRX | 0.95 KM |
| Gwersyllt | 4300 | GWE | 3.85 KM |
| Cefn-Y-Bedd | 2425 | CYB | 7.04 KM |
| Caergwrle | 2536 | CGW | 8.00 KM |
Nearby Listings
| Address | Price | Type | Score | Distance |
|---|---|---|---|---|
| Argyle Street, Wrexham | £ 300,000 | BUY | 5 / 10 | 0.00 KM |
| King Street, Wrexham | £ 170,000 | BUY | 4 / 10 | 0.26 KM |
| Brook Street, Wrexham, LL13 | £ 120,000 | BUY | 5 / 10 | 0.26 KM |
| Chester Street, Wrexham | £ 200,000 | BUY | 4 / 10 | 0.28 KM |
| High Street, Wrexham | £ 375,000 | BUY | 5 / 10 | 0.31 KM |
Nearby Properties
| Address | Price | Distance |
|---|---|---|
| 6 Regent Street | £ 58,750 | 0.14 KM |
| 67 King Street | £ 85,000 | 0.24 KM |
| 43 King Street | £ 190,000 | 0.24 KM |
| 6 Brook Street | £ 58,000 | 0.25 KM |
| 28 Chester Street | £ 47,250 | 0.27 KM |