Nicholls Tyreman says ..
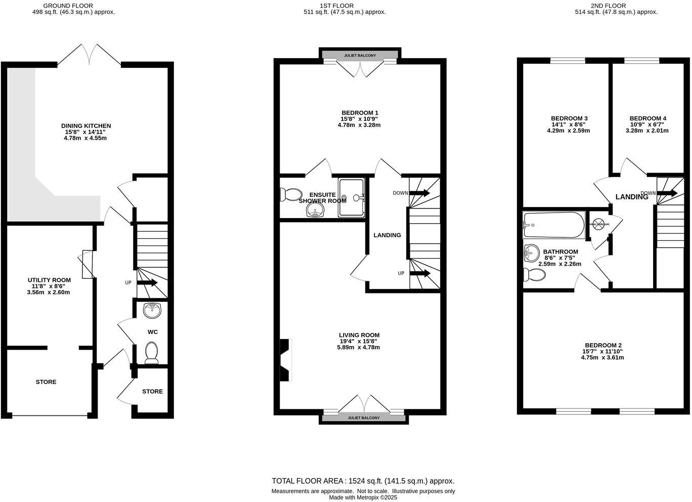
A fantastic opportunity to purchase this spacious four-bedroom town house situated in a sought-after residential area on the south side of Harrogate, located within walking distance of popular schools such as Rossett Acre Primary School and Harrogate Grammar School. The property also benefits fro...
Property Oracle says ..
The property is located in a desirable area of Harrogate, close to schools and transport links. The property itself is in excellent condition, recently renovated to a high standard. It benefits from a garden with a decked area. While the list price is lower than the area average, it appears to be reasonable considering the condition, location, and included land. More detailed information on local amenities and comparable properties would allow for a more precise assessment.
Therefore, we give this property 8 / 10. *Disclaimer: This is our option and does constitute a recommendation or financial advice. Do your own research. *
- Price
- 9
- Condition
- 9
- Location
- 8
- Land
- 7
- Bedrooms
- 4
- Bathrooms
- 2
- Sqft (est)
- 1,232.22
- Lot (est)
- 1,524.00
The heatmap indicates the level of crime in the area. The color of the heatmap indicates the crime severity and recency.
Metrics Year-on-Year
- Average area value
- 560,000.00 £Decreased by 13.71 %
- Est sale value
- 1,123,784.64 £Increased by 171.43 %
- Average area rental value
- 1,040.00 £/moDecreased by 26.29 %
- Est letting value
- 1,232.22 £/mo
- Est rental Yield
- 2.23 %Decreased by 14.56 %
- Crime Rate
- 7.00 %Unchanged by 0.00 %
Agent Activity
Nicholls Tyreman created the listing.
Nearby Schools
| Name | Type | Ofsted | Distance |
|---|---|---|---|
| Harrogate Grammar School | Academy Converter | 0.95 KM | |
| Rossett Acre Primary School | Academy Converter | Good | 0.95 KM |
| Rossett School | Academy Converter | Requires improvement | 1.13 KM |
| Ashville College | Other Independent School | 1.16 KM | |
| Oatlands Infant School | Academy Converter | 1.31 KM |
Images
Nearby Streets
| Name | Average Price | Average Sqft | Distance |
|---|---|---|---|
| Parson's Intake | £ 575,000 | 0 | 0.00 KM |
| By-Ways | £ 825,000 | 0 | 0.00 KM |
| St George's Road | £ 735,000 | 0 | 0.00 KM |
| Kenilworth Avenue | £ 0 | 0 | 0.00 KM |
| Leadhall Gardens | £ 0 | 0 | 0.00 KM |
Nearby Transport
| Name | NLC | TLC | Distance |
|---|---|---|---|
| Hornbeam Park | 8212 | HBP | 1.77 KM |
| Harrogate | 8213 | HGT | 2.02 KM |
| Pannal | 8479 | PNL | 2.16 KM |
| Starbeck | 8221 | SBE | 5.24 KM |
| Weeton | 8509 | WET | 7.25 KM |
Nearby Listings
| Address | Price | Type | Score | Distance |
|---|---|---|---|---|
| Hutton Gate, Harrogate | £ 450,000 | BUY | 8 / 10 | 0.00 KM |
| Redfearn Mews, North Yorkshire, HG2 | £ 77,500 | BUY | 5 / 10 | 0.06 KM |
| Hutton Gate, Harrogate | £ 389,950 | BUY | Unknown | 0.09 KM |
| Redfearn Mews, Harrogate, North Yorkshire, HG2 | £ 170,000 | BUY | 6 / 10 | 0.11 KM |
| Redfearn Mews, Harrogate | £ 170,000 | BUY | 6 / 10 | 0.11 KM |
Nearby Properties
| Address | Price | Distance |
|---|---|---|
| 1 Bowes Park | £ 575,000 | 0.05 KM |
| 15 Bowes Park | £ 490,000 | 0.05 KM |
| 13 Bowes Park | £ 490,000 | 0.05 KM |
| 4 Bowes Park | £ 650,000 | 0.05 KM |
| 11 Bowes Park | £ 741,000 | 0.05 KM |