Cooke & Co says ..
Two Bedroom Terrace - Ideal First Home or Investment! Situated in the heart of a popular residential area, this two-bedroom terraced home on Milton Avenue offers fantastic potential for those looking to put their own stamp on a property. While in need of some modernisation, it presents a great op...
Property Oracle says ..
This two-bedroom terraced house in Margate is listed at £200,000. The property is located on Milton Avenue, in the Margate Central area. While the location benefits from proximity to several schools (Margate, Holy Trinity And St John’s Church of England Primary School, Drapers Mills Primary Academy, and others) and Southeastern train stations (Margate, Ramsgate, and others), the provided data lacks details on the quality of local amenities and the overall desirability of the area. The house itself appears to be in fair condition, but could benefit from some modernisation. The kitchen and bathroom seem dated, and the garden requires maintenance. The property has a small plot size. Compared to the average price per square foot in the area (£397), the list price may appear reasonable, but further detailed analysis of comparable properties and market trends is needed to confirm this. More information on the property’s condition and the local market would improve the accuracy of the assessment.
Therefore, we give this property 5 / 10. *Disclaimer: This is our option and does constitute a recommendation or financial advice. Do your own research. *
- Price
- 6
- Condition
- 6
- Location
- 7
- Land
- 3
- Bedrooms
- 2
- Bathrooms
- 1
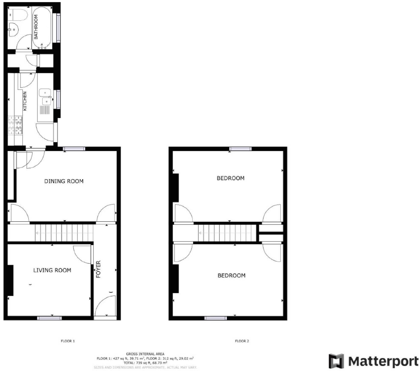
- Sqft (est)
- 739.80
The heatmap indicates the level of crime in the area. The color of the heatmap indicates the crime severity and recency.
Metrics Year-on-Year
- Average area value
- 302,454.00 £Increased by 12.94 %
- Est sale value
- 472,732.20 £Increased by 208.70 %
- Average area rental value
- 976.00 £/moDecreased by 10.62 %
- Est letting value
- 1,479.60 £/mo
- Est rental Yield
- 3.87 %Decreased by 20.86 %
- Crime Rate
- 7.00 %Unchanged by 0.00 %
Agent Activity
Cooke & Co created the listing.
Nearby Schools
| Name | Type | Ofsted | Distance |
|---|---|---|---|
| Margate, Holy Trinity And St John'S Church Of England Primary School | Voluntary Controlled School | Good | 0.59 KM |
| Drapers Mills Primary Academy | Academy Sponsor Led | Good | 0.62 KM |
| Six Bells Children'S Centre | Children's Centre | 0.74 KM | |
| Parkview Academy | Other Independent Special School | Good | 0.74 KM |
| Lighthouse School | Other Independent Special School | Good | 0.88 KM |
Images
Nearby Streets
| Name | Average Price | Average Sqft | Distance |
|---|---|---|---|
| Addiscombe Gardens | £ 0 | 0 | 0.00 KM |
| Homestead Close | £ 0 | 0 | 0.00 KM |
| Shakespeare Road | £ 0 | 0 | 0.00 KM |
| Park Crescent Road | £ 500,000 | 0 | 0.00 KM |
| Church Street | £ 0 | 0 | 0.00 KM |
Nearby Transport
| Name | NLC | TLC | Distance |
|---|---|---|---|
| Margate | 5018 | MAR | 1.95 KM |
| Ramsgate | 5023 | RAM | 5.04 KM |
| Broadstairs | 5006 | BSR | 5.47 KM |
| Westgate-On-Sea | 5195 | WGA | 5.65 KM |
| Dumpton Park | 5034 | DMP | 5.77 KM |
Nearby Listings
| Address | Price | Type | Score | Distance |
|---|---|---|---|---|
| Milton Avenue, Margate | £ 200,000 | BUY | 5 / 10 | 0.00 KM |
| Milton Avenue, Margate, Kent | £ 240,000 | BUY | 7 / 10 | 0.03 KM |
| Milton Avenue, Margate, Kent | £ 159,000 | BUY | 7 / 10 | 0.03 KM |
| Milton Avenue, Margate, Kent, CT9 | £ 210,000 | BUY | 5 / 10 | 0.04 KM |
| Osborne Terrace, Margate | £ 250,000 | BUY | 7 / 10 | 0.04 KM |
Nearby Properties
| Address | Price | Distance |
|---|---|---|
| 106 Milton Avenue | £ 24,950 | 0.03 KM |
| 66 Milton Avenue | £ 98,000 | 0.03 KM |
| 105 Milton Avenue | £ 215,000 | 0.03 KM |
| 131 Milton Avenue | £ 164,000 | 0.03 KM |
| 98 Milton Avenue | £ 92,000 | 0.03 KM |