Bridestones, 21 Eskdaleside, Sleights, Whitby, North Yorkshire, YO22 5EP
Richardson & Smith logo

Bridestones, 21 Eskdaleside, Sleights, Whitby, North Yorkshire, YO22 5EP

By Richardson & Smith

£ 745,000

Reviews

3 out of 5 stars

Richardson & Smith says ..

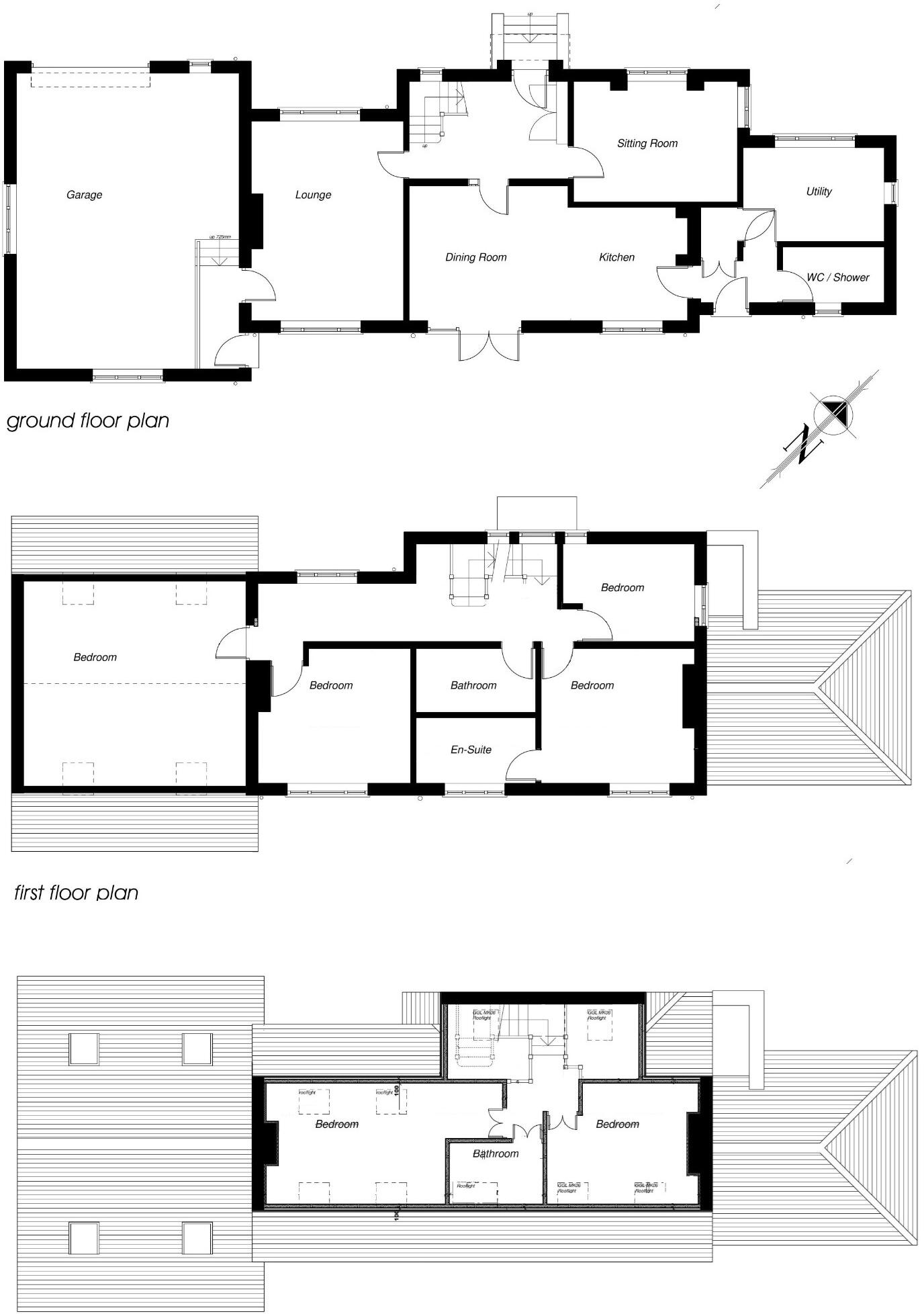
A beautifully presented, 5/6 bedroom, detached house, set in a spacious elevated plot on the edge of this popular village handily placed for access to thetown, moors and coast - potentially an ideal family home.

Property Oracle says ..

Bridestones is a detached property located in the village of Sleights, North Yorkshire. The property offers six bedrooms, four bathrooms, and a generous garden. The interior appears to be well-maintained and features modern fixtures and fittings. The property is conveniently located near local amenities, including a primary school and a train station. While the list price is higher than the average property price in the area, the size, condition, and location of the property may justify the premium.

Therefore, we give this property 7 / 10. *Disclaimer: This is our option and does constitute a recommendation or financial advice. Do your own research. *

Price
6
Condition
8
Location
7
Land
9
Bedrooms
6
Bathrooms
4
Sqft (est)
1,820.00

The heatmap indicates the level of crime in the area. The color of the heatmap indicates the crime severity and recency.

Metrics Year-on-Year

Average area value
49,500.00 £
Decreased by 76.92 %
from 214,433.00 £
Est sale value
91,000.00 £
Decreased by 76.85 %
from 393,120.00 £
Average area rental value
1,006.00 £/mo
Increased by 19.34 %
from 843.00 £/mo
Est letting value
1,820.00 £/mo
from 0.00 £/mo
Est rental Yield
24.39 %
Increased by 416.74 %
from 4.72 %
Crime Rate
16.00 %
Unchanged by 0.00 %
from 16.00 %

Agent Activity

  • Richardson & Smith created the listing.

Nearby Schools

NameTypeOfstedDistance
Sleights Church Of England Voluntary Controlled Primary SchoolVoluntary Controlled SchoolGood0.67 KM
Ruswarp Church Of England Voluntary Controlled Primary SchoolVoluntary Controlled SchoolGood5.07 KM
Whitby & The Moors Children'S CentreChildren's Centre5.85 KM
Stakesby Primary AcademyAcademy Converter5.85 KM
Caedmon College WhitbyCommunity SchoolGood6.17 KM

Images

Front with driveway Front Rear garden Kitchen Kitchen Kitchen diner Lounge Lounge Lounge Hallway Staircase sitting room sitting room landing Master Bedroom Master Bedroom Master Bedroom master bathroom Master bathroom Guest bedroom Guest Bedroom ensuite ensuite alt Bed 3 Bed 4 House Bathroom Bedroom 5 Bedroom 6 top landing utility Cloak room Cloak room Garage Front garage Patio Patio patio summerhouse Rear garden view

Nearby Streets

NameAverage PriceAverage SqftDistance
The Avenue £ 425,00000.00 KM
Sleights Bridge £ 000.00 KM
Mill Lane £ 000.00 KM
Seggimire Lane £ 000.00 KM

Nearby Transport

NameNLCTLCDistance
Sleights8179SLH1.56 KM
Ruswarp8174RUS5.15 KM
Grosmont8155GMT6.34 KM
Whitby8184WTB7.15 KM

Nearby Listings

AddressPriceTypeScoreDistance
Bridestones, 21 Eskdaleside, Sleights, Whitby, North Yorkshire, YO22 5EP £ 745,000BUY7 / 100.00 KM
14 Eskdaleside, Sleights £ 350,000BUY6 / 100.00 KM
8 Hermitage Way, Eskdaleside, Sleights £ 295,000BUYUnknown0.24 KM
1 Old School Gardens, Sleights £ 215,000BUY6 / 100.28 KM
Coach Road, Whitby, YO22 £ 265,000BUY7 / 100.38 KM

Nearby Properties

AddressPriceDistance
25 Eskdaleside £ 352,5000.01 KM
34 Eskdaleside £ 290,0000.01 KM
32 Eskdaleside £ 170,0000.01 KM
15 Eskdaleside £ 175,0000.01 KM
26 Eskdaleside £ 197,5000.01 KM