Clarendon Road, Cheshunt, Waltham Cross
By Big Black Hen.com
£ 475,000
Reviews
3 out of 5 stars
Big Black Hen.com says ..
A 1930's semi-detached house with a large garden, two garages and great potential in a pleasant corner plot close to schools and transport links. GUIDE PRICE RANGE: £475,000-£500,000.
Property Oracle says ..
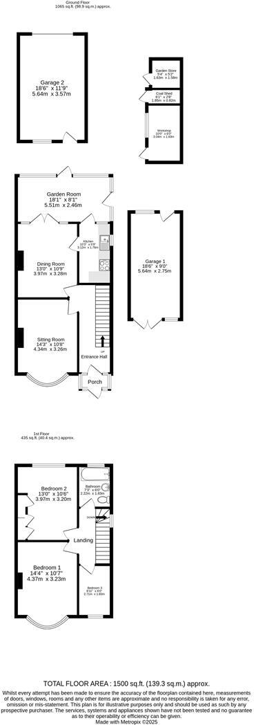
The property is a 3-bedroom semi-detached house located on Clarendon Road in Cheshunt, Hertfordshire. The area benefits from relatively close proximity to several schools, including Burleigh Primary School (rated ‘Good’ by Ofsted) and Arlesdene Nursery School and Pre-School (rated ‘Outstanding’). Cheshunt and Waltham Cross train stations offer convenient access to London and other areas. Based on the provided images, the property appears to be in generally good condition, although some aspects suggest it could benefit from modernisation. The interior features dated wallpaper and flooring in several rooms, and the kitchen and bathroom appear somewhat tired. The exterior, however, presents well, with a maintained garden and a garage. The presence of a conservatory adds to the living space. The garden is of a reasonable size, providing ample outdoor space. Considering the average house price in the area is £389,127 and the average price per square foot is £404, the listed price of £475,000 requires further consideration given the lack of square footage data. More information on the property’s size would be needed to accurately assess its value relative to other properties in the area. However, comparing it to similar properties on Clarendon Road, such as number 65 which sold for £342,500, suggests that the asking price may be on the higher end of the market. Further analysis would be needed to determine if this is justified by the property’s unique features and condition.
Therefore, we give this property 7 / 10. *Disclaimer: This is our option and does constitute a recommendation or financial advice. Do your own research. *
- Price
- 6
- Condition
- 7
- Location
- 8
- Land
- 7
- Bedrooms
- 3
- Bathrooms
- 0
The heatmap indicates the level of crime in the area. The color of the heatmap indicates the crime severity and recency.
Metrics Year-on-Year
- Average area value
- 327,499.00 £Decreased by 11.37 %
- Average area rental value
- 1,631.00 £/moDecreased by 7.70 %
- Est rental Yield
- 5.98 %Increased by 4.18 %
- Crime Rate
- 4.00 %Unchanged by 0.00 %
Agent Activity
Big Black Hen.com created the listing.
Nearby Schools
| Name | Type | Ofsted | Distance |
|---|---|---|---|
| Burleigh Primary School | Community School | Good | 0.15 KM |
| Millbrook School | Community School | Requires improvement | 0.35 KM |
| Arlesdene Nursery School And Pre-School | Local Authority Nursery School | Outstanding | 0.37 KM |
| B6 Arlesdene Family Centre | Children's Centre | 0.40 KM | |
| Goffs - Churchgate Academy | Academy Converter | 1.09 KM |
Images
Nearby Streets
| Name | Average Price | Average Sqft | Distance |
|---|---|---|---|
| Victoria Close | £ 221,662 | 0 | 0.00 KM |
| Blindman's Lane | £ 0 | 0 | 0.00 KM |
| Alexander Court | £ 0 | 0 | 0.00 KM |
| Church Lane | £ 0 | 0 | 0.00 KM |
| College Road | £ 0 | 0 | 0.00 KM |
Nearby Transport
| Name | NLC | TLC | Distance |
|---|---|---|---|
| Cheshunt | 6814 | CHN | 1.42 KM |
| Theobalds Grove | 6949 | TEO | 1.47 KM |
| Waltham Cross | 6823 | WLC | 2.53 KM |
| Turkey Street | 6952 | TUR | 3.85 KM |
| Enfield Lock | 6815 | ENL | 3.95 KM |
Nearby Listings
| Address | Price | Type | Score | Distance |
|---|---|---|---|---|
| Clarendon Road, Cheshunt, Waltham Cross | £ 475,000 | BUY | 7 / 10 | 0.00 KM |
| Glebe court, Cheshunt | £ 260,000 | BUY | 5 / 10 | 0.00 KM |
| Clarendon Road, Cheshunt, Hertfordshire, EN8 9DL | £ 475,000 | BUY | 7 / 10 | 0.06 KM |
| Clarendon Road, Waltham Cross, EN8 | £ 530,000 | BUY | 7 / 10 | 0.07 KM |
| Turners Hill, Cheshunt, Waltham Cross | £ 230,000 | BUY | 5 / 10 | 0.07 KM |
Nearby Properties
| Address | Price | Distance |
|---|---|---|
| 47 Clarendon Road | £ 210,000 | 0.07 KM |
| 56 Clarendon Road | £ 272,000 | 0.07 KM |
| 55 Clarendon Road | £ 355,000 | 0.07 KM |
| 52 Clarendon Road | £ 239,000 | 0.07 KM |
| 61 Clarendon Road | £ 340,000 | 0.07 KM |