Purplebricks says ..
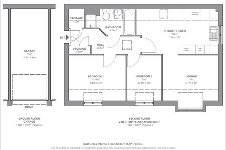
Stylish and Spacious Two-Bedroom Flat with Garage – Ideal First Home Tucked away in a quiet and private setting, this beautifully presented two-bedroom flat offers modern living just a few minutes’ walk from Pelaw Metro Station—perfect for commuting into Newcastle, Sunderland, and surrounding are...
Property Oracle says ..
Therefore, we give this property 6 / 10. *Disclaimer: This is our option and does constitute a recommendation or financial advice. Do your own research. *
- Price
- 9
- Condition
- 8
- Location
- 7
- Land
- 3
- Bedrooms
- 2
- Bathrooms
- 1
- Sqft (est)
- 645.83
The heatmap indicates the level of crime in the area. The color of the heatmap indicates the crime severity and recency.
Metrics Year-on-Year
- Average area value
- 265,000.00 £Increased by 2.60 %
- Est sale value
- 171,144.95 £Increased by 9.05 %
- Average area rental value
- 1,270.00 £/moDecreased by 15.05 %
- Est letting value
- 645.83 £/moUnchanged by 0.00 %
- Est rental Yield
- 5.75 %Decreased by 17.27 %
- Crime Rate
- 17.00 %Unchanged by 0.00 %
from 258,279.00 £
from 156,936.69 £
from 1,495.00 £/mo
from 645.83 £/mo
from 6.95 %
from 17.00 %
Agent Activity
Purplebricks created the listing.
Nearby Schools
| Name | Type | Ofsted | Distance |
|---|---|---|---|
| Wardley Primary School | Community School | Good | 0.38 KM |
| St Alban'S Catholic Primary School, Pelaw | Academy Converter | 0.57 KM | |
| Bill Quay Primary School | Community School | Good | 0.66 KM |
| Lingey House Primary School | Community School | Outstanding | 1.03 KM |
| Heworth Grange School | Academy Sponsor Led | 1.39 KM |
Images
Nearby Streets
| Name | Average Price | Average Sqft | Distance |
|---|---|---|---|
| Woods Green | £ 144,975 | 0 | 0.00 KM |
| Birch Avenue | £ 250,000 | 0 | 0.00 KM |
| Grasmere Avenue | £ 0 | 0 | 0.00 KM |
| The Mews | £ 0 | 0 | 0.00 KM |
| Davidson Road | £ 0 | 0 | 0.00 KM |
Nearby Transport
| Name | NLC | TLC | Distance |
|---|---|---|---|
| Heworth | 7766 | HEW | 1.68 KM |
| Manors | 7603 | MAS | 7.40 KM |
| Newcastle | 7728 | NCL | 8.62 KM |
Nearby Listings
| Address | Price | Type | Score | Distance |
|---|---|---|---|---|
| Lyons Court, Gateshead, NE10 | £ 114,995 | BUY | 6 / 10 | 0.00 KM |
| Galloway Road, Gateshead, Tyne and Wear, NE10 | £ 150,000 | BUY | 7 / 10 | 0.05 KM |
| Galloway Road, Pelaw, Gateshead, NE10 | £ 145,000 | BUY | 7 / 10 | 0.05 KM |
| Croxdale Terrace, Pelaw, Gateshead, Tyne and Wear, NE10 | £ 250,000 | BUY | 7 / 10 | 0.14 KM |
| Lauder Way, Pelaw | £ 99,950 | BUY | 6 / 10 | 0.14 KM |
Nearby Properties
| Address | Price | Distance |
|---|---|---|
| 10 Lyons Court | £ 120,000 | 0.01 KM |
| 7 Lyons Court | £ 144,000 | 0.01 KM |
| 12 Lyons Court | £ 129,999 | 0.01 KM |
| 14 Lyons Court | £ 130,000 | 0.01 KM |
| 3 Lyons Court | £ 110,750 | 0.01 KM |