Montrose Close, Market Harborough
By McCallum Marsh
£ 360,000
Reviews
3 out of 5 stars
McCallum Marsh says ..
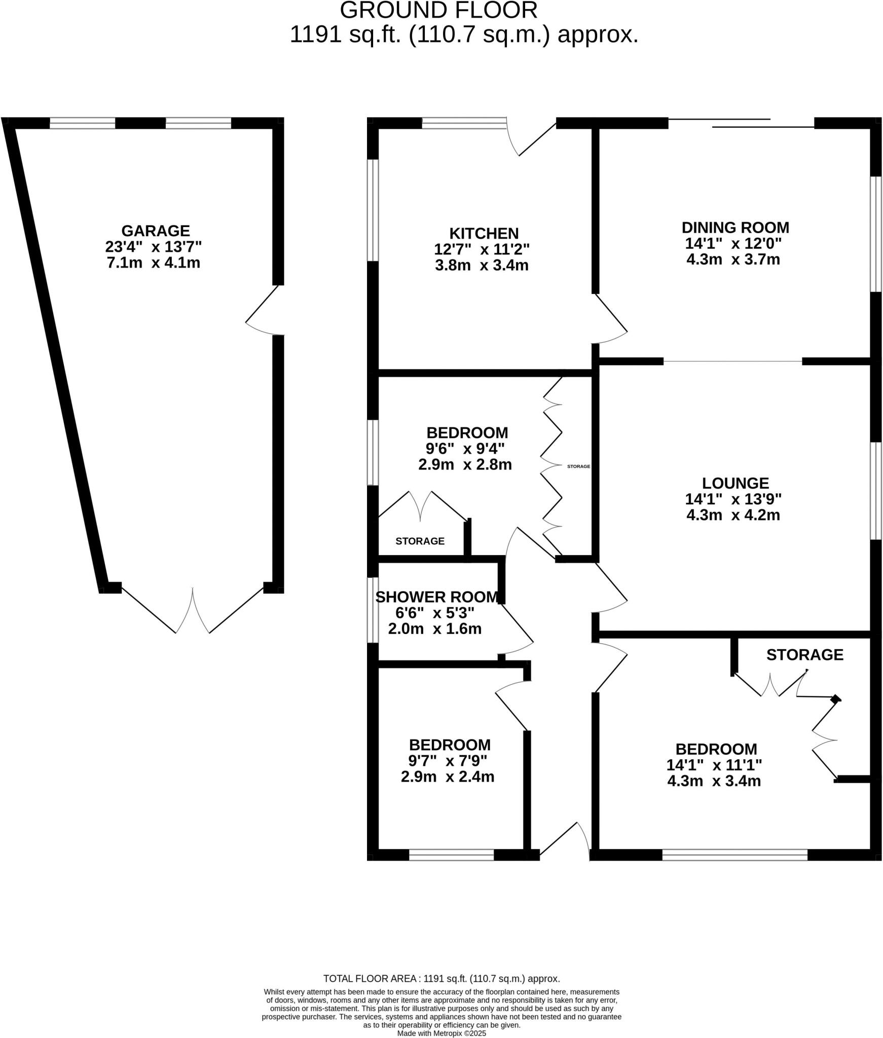
Situated in Montrose Close of Market Harborough, a popular cul-de-sac location, this three bedroomed detached bungalow offers versatile and generously proportioned accommodation throughout. Offering a deceptively spacious layout for comfortable living and a standout garden of good size complete w...
Property Oracle says ..
This is a 3-bedroom detached bungalow located in Montrose Close, Market Harborough. The property is in a desirable location, close to schools and transport links. The property is in reasonable condition, but would benefit from some modernisation. The property has a good sized garden with a shed and greenhouse. The price is reasonable for a property of this type in this location.
Therefore, we give this property 7 / 10. *Disclaimer: This is our option and does constitute a recommendation or financial advice. Do your own research. *
- Price
- 7
- Condition
- 6
- Location
- 7
- Land
- 8
- Bedrooms
- 3
- Bathrooms
- 1
The heatmap indicates the level of crime in the area. The color of the heatmap indicates the crime severity and recency.
Metrics Year-on-Year
- Average area value
- 388,571.00 £Increased by 16.00 %
- Average area rental value
- 840.00 £/moDecreased by 18.84 %
- Est rental Yield
- 2.59 %Decreased by 30.19 %
- Crime Rate
- 0.00 %
Agent Activity
McCallum Marsh created the listing.
Nearby Schools
| Name | Type | Ofsted | Distance |
|---|---|---|---|
| Farndon Fields Primary School | Academy Converter | Good | 0.64 KM |
| Welland Park Academy | Academy Converter | Good | 0.92 KM |
| St Joseph'S Catholic Voluntary Academy | Academy Converter | Good | 1.03 KM |
| Market Harborough Sure Start Children'S Centre | Children's Centre | 1.05 KM | |
| Market Harborough Church Of England Academy | Academy Converter | Good | 1.27 KM |
Images
Nearby Streets
| Name | Average Price | Average Sqft | Distance |
|---|---|---|---|
| Montrose Close | £ 320,000 | 0 | 0.00 KM |
| Fleetwood Close | £ 0 | 0 | 0.00 KM |
| Forester Close | £ 0 | 0 | 0.00 KM |
| Florence Grove | £ 320,000 | 0 | 0.00 KM |
| Liberator drive | £ 575,000 | 0 | 0.00 KM |
Nearby Transport
| Name | NLC | TLC | Distance |
|---|---|---|---|
| Market Harborough | 1909 | MHR | 2.58 KM |
Nearby Listings
| Address | Price | Type | Score | Distance |
|---|---|---|---|---|
| Montrose Close, Market Harborough | £ 360,000 | BUY | 7 / 10 | 0.00 KM |
| Montrose Close, Market Harborough | £ 320,000 | BUY | 6 / 10 | 0.06 KM |
| Cromwell Crescent, Market Harborough | £ 355,000 | BUY | 6 / 10 | 0.08 KM |
| Essex Gardens, Market Harborough | £ 250,000 | BUY | 6 / 10 | 0.09 KM |
| Essex Gardens, Market Harborough | £ 360,000 | BUY | Unknown | 0.11 KM |
Nearby Properties
| Address | Price | Distance |
|---|---|---|
| 7 Montrose Close | £ 152,500 | 0.01 KM |
| 3 Montrose Close | £ 188,000 | 0.01 KM |
| 6 Montrose Close | £ 125,500 | 0.01 KM |
| 2 Montrose Close | £ 145,000 | 0.01 KM |
| 98 Cromwell Crescent | £ 210,000 | 0.09 KM |