Hadham Road, Bishop's Stortford, Hertfordshire, CM23
By Park Lane Property Agents
£ 159,995
Reviews
3 out of 5 stars
Park Lane Property Agents says ..
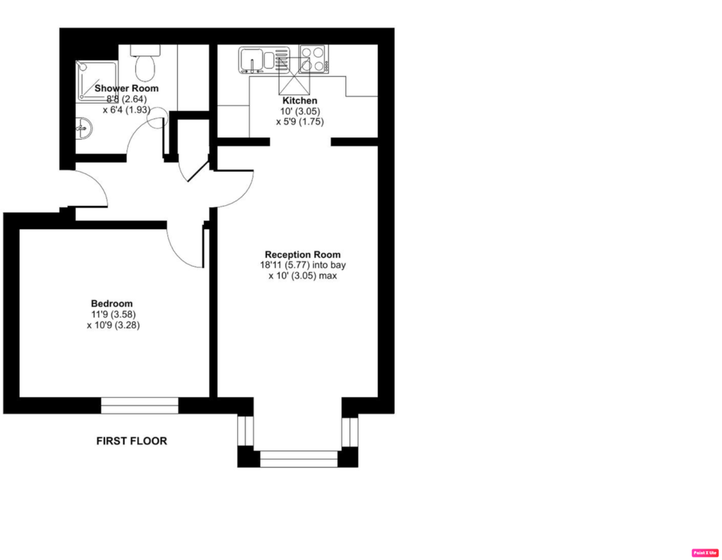
A rare opportunity to purchase one of the largest & spacious one bedroom retirement flat in immaculate order in this private residential cul de sac, within walking distance of shops, restaurants, banks and bus routes. The property is one of only eight flats in two blocks of four...
Property Oracle says ..
Therefore, we give this property 6 / 10. *Disclaimer: This is our option and does constitute a recommendation or financial advice. Do your own research. *
- Price
- 9
- Condition
- 8
- Location
- 7
- Land
- 3
- Bedrooms
- 1
- Bathrooms
- 0
- Sqft (est)
- 430.85
The heatmap indicates the level of crime in the area. The color of the heatmap indicates the crime severity and recency.
Metrics Year-on-Year
- Average area value
- 500,533.00 £Decreased by 0.06 %
- Est sale value
- 319,259.85 £Increased by 61.09 %
- Average area rental value
- 1,684.00 £/moDecreased by 0.88 %
- Est letting value
- 861.70 £/moIncreased by 100.00 %
- Est rental Yield
- 4.04 %Decreased by 0.74 %
- Crime Rate
- 21.00 %Unchanged by 0.00 %
from 500,831.00 £
from 198,191.00 £
from 1,699.00 £/mo
from 430.85 £/mo
from 4.07 %
from 21.00 %
Agent Activity
Park Lane Property Agents created the listing.
Nearby Schools
| Name | Type | Ofsted | Distance |
|---|---|---|---|
| White Trees Independent School | Other Independent Special School | Requires improvement | 0.47 KM |
| Windhill21 | Academy Converter | Outstanding | 0.49 KM |
| Eh5 Little Squirrels Family Centre | Children's Centre | 0.49 KM | |
| Eh4 Windhill Family Centre | Children's Centre | 0.49 KM | |
| St Mary'S Catholic School | Academy Converter | 0.52 KM |
Images
Nearby Streets
| Name | Average Price | Average Sqft | Distance |
|---|---|---|---|
| North Terrace | £ 400,000 | 0 | 0.00 KM |
| King Street | £ 324,998 | 0 | 0.00 KM |
| Newbury Close | £ 0 | 0 | 0.00 KM |
| Church Street | £ 0 | 0 | 0.00 KM |
| Carrigans | £ 427,500 | 0 | 0.00 KM |
Nearby Transport
| Name | NLC | TLC | Distance |
|---|---|---|---|
| Bishops Stortford | 6800 | BIS | 1.08 KM |
| Stansted Mountfitchet | 6833 | SST | 5.63 KM |
| Sawbridgeworth | 6806 | SAW | 6.55 KM |
| Elsenham (Essex) | 6832 | ESM | 9.42 KM |
| Harlow Mill | 6804 | HWM | 9.62 KM |
Nearby Listings
| Address | Price | Type | Score | Distance |
|---|---|---|---|---|
| Hadham Road, Bishop's Stortford, Hertfordshire, CM23 | £ 159,995 | BUY | 6 / 10 | 0.00 KM |
| Hadham Road, Bishop's Stortford, Hertfordshire, CM23 | £ 150,000 | BUY | 5 / 10 | 0.00 KM |
| Hadham Road, Bishop's Stortford, Hertfordshire, CM23 | £ 260,000 | BUY | 6 / 10 | 0.06 KM |
| Hadham Road, Bishop's Stortford, Hertfordshire, CM23 | £ 260,000 | BUY | Unknown | 0.06 KM |
| Hadham Road, Bishop's Stortford, Hertfordshire, CM23 | £ 225,000 | BUY | 7 / 10 | 0.06 KM |
Nearby Properties
| Address | Price | Distance |
|---|---|---|
| 12 Hadham Road | £ 250,000 | 0.05 KM |
| 2 Northgate End | £ 275,000 | 0.10 KM |
| 11 North Terrace | £ 305,000 | 0.10 KM |
| 5 North Terrace | £ 365,000 | 0.10 KM |
| 2 Alpha Place | £ 192,500 | 0.13 KM |