Smales Street, Bishophill, York
By Churchills Estate Agents
£ 375,000
Reviews
2 out of 5 stars
Churchills Estate Agents says ..
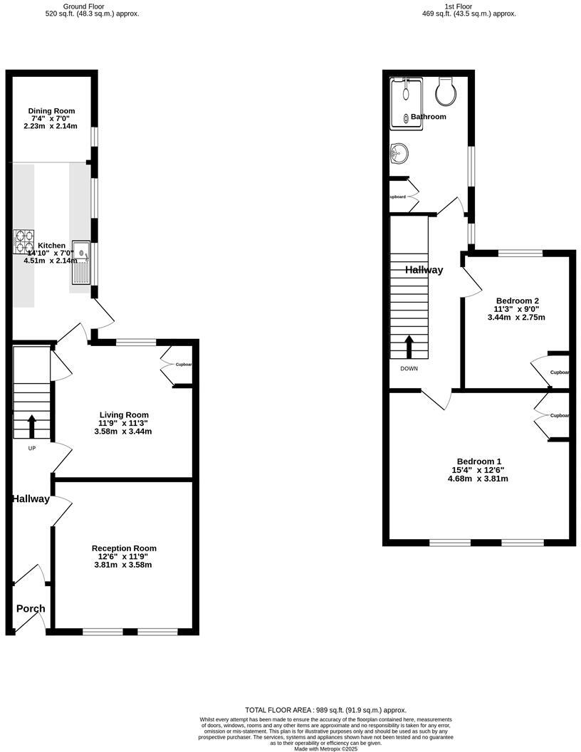
A LARGE 2 BEDROOM PERIOD MID TERRACE HOUSE IN ONE OF YORK'S MOST FAVOURED LOCATIONS SET WITHIN THE CITY WALLS ONLY A FEW MINUTES WALK FORM CITY CENTRE AMENITIES AND THE RAILWAY STATION. Providing spacious living accommodation with the benefit of gas central heating the property comprises entranc...
Property Oracle says ..
This is a two-bedroom terraced house in the Bishophill area of York. The property is in a good location, close to the city centre and local amenities. The property is in reasonable condition, but could benefit from some modernisation. The property has no garden. The property is listed at £375,000, which is below the average price for the area. The average price per square foot in the area is £418, while this property is listed at approximately £477 per square foot. However, the property is smaller than average for the area.
Therefore, we give this property 5 / 10. *Disclaimer: This is our option and does constitute a recommendation or financial advice. Do your own research. *
- Price
- 7
- Condition
- 6
- Location
- 7
- Land
- 3
- Bedrooms
- 2
- Bathrooms
- 1
- Sqft (est)
- 786.33
The heatmap indicates the level of crime in the area. The color of the heatmap indicates the crime severity and recency.
Metrics Year-on-Year
- Average area value
- 542,496.00 £Increased by 34.28 %
- Est sale value
- 328,685.94 £Increased by 33.55 %
- Average area rental value
- 1,435.00 £/moIncreased by 6.30 %
- Est letting value
- 786.33 £/moUnchanged by 0.00 %
- Est rental Yield
- 3.17 %Decreased by 20.95 %
- Crime Rate
- 3.00 %Unchanged by 0.00 %
Agent Activity
Churchills Estate Agents created the listing.
Nearby Schools
| Name | Type | Ofsted | Distance |
|---|---|---|---|
| Scarcroft Primary School | Academy Converter | 0.52 KM | |
| Millthorpe School | Academy Converter | Good | 0.88 KM |
| Bootham School | Other Independent School | 0.98 KM | |
| York St John University | Higher Education Institutions | 1.27 KM | |
| Fishergate Primary School | Community School | Good | 1.28 KM |
Images
Nearby Streets
| Name | Average Price | Average Sqft | Distance |
|---|---|---|---|
| Bishops Court | £ 0 | 0 | 0.00 KM |
| Victoria Cloisters | £ 251,667 | 0 | 0.00 KM |
| Trinity Court | £ 282,500 | 0 | 0.00 KM |
| Riverside Lodge | £ 0 | 0 | 0.00 KM |
| Ouse Bridge | £ 0 | 0 | 0.00 KM |
Nearby Transport
| Name | NLC | TLC | Distance |
|---|---|---|---|
| York | 8263 | YRK | 0.79 KM |
| Poppleton | 8254 | POP | 7.23 KM |
Nearby Listings
| Address | Price | Type | Score | Distance |
|---|---|---|---|---|
| Smales Street, Bishophill, York | £ 375,000 | BUY | 5 / 10 | 0.00 KM |
| Buckingham Court, Bishophill Senior, York, YO1 | £ 350,000 | BUY | 6 / 10 | 0.02 KM |
| Smales Street, York | £ 275,000 | BUY | 5 / 10 | 0.03 KM |
| Buckingham Court, Bishophill | £ 250,000 | BUY | 6 / 10 | 0.03 KM |
| Buckingham Court, York | £ 375,000 | BUY | 7 / 10 | 0.03 KM |
Nearby Properties
| Address | Price | Distance |
|---|---|---|
| 4 Buckingham Court | £ 222,000 | 0.02 KM |
| 22 Buckingham Court | £ 205,000 | 0.02 KM |
| 20 Buckingham Court | £ 215,000 | 0.02 KM |
| 10 Buckingham Court | £ 235,000 | 0.02 KM |
| 19 Buckingham Court | £ 220,000 | 0.02 KM |