Manners Close, Chinley, High Peak
By Gascoigne Halman
£ 299,000
Reviews
2 out of 5 stars
Gascoigne Halman says ..
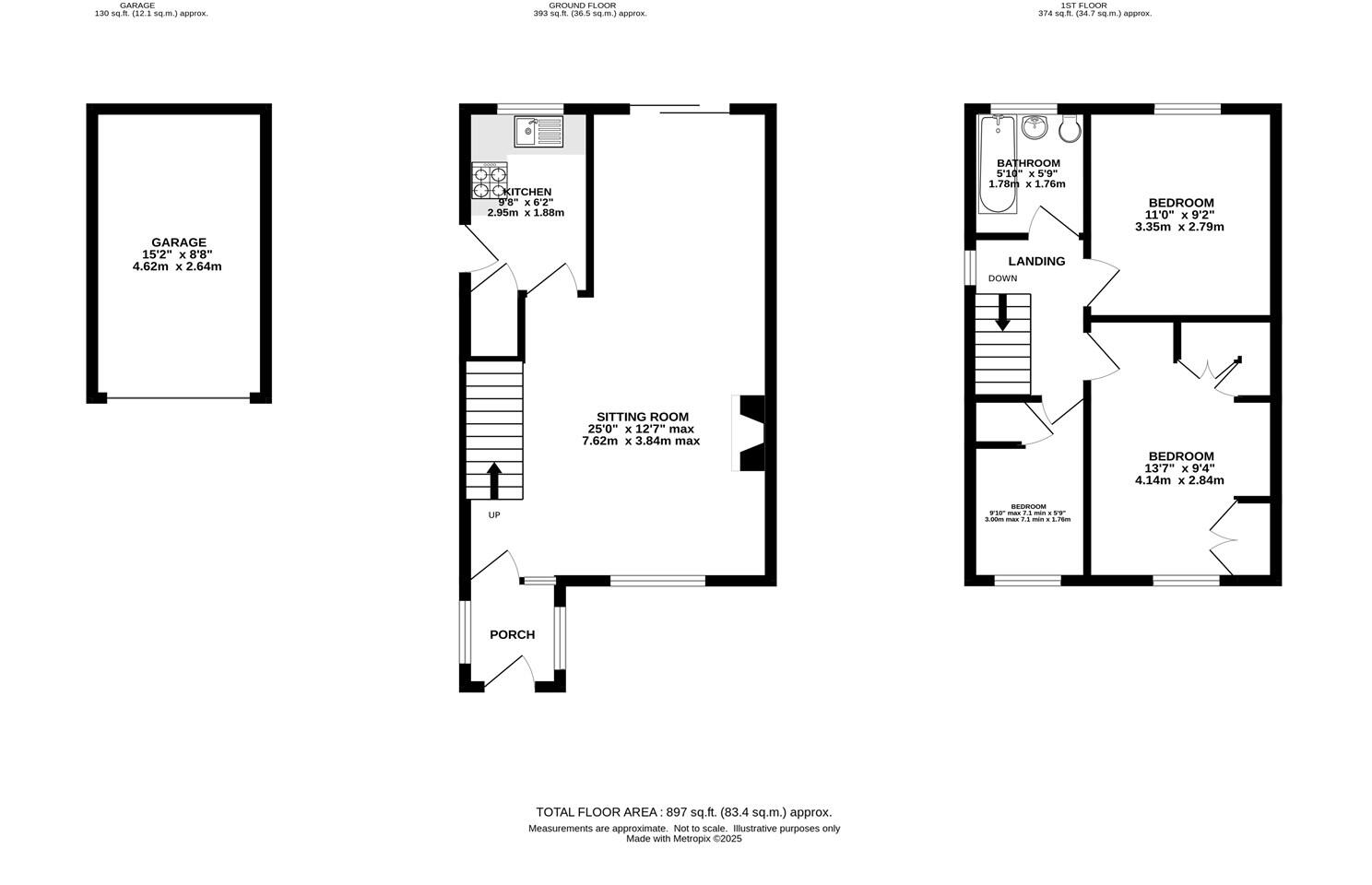
A MODERN STYLE semi detached home which is located in a QUIET CUL DE SAC within the popular village of CHINLEY. The property has bright spacious living, fitted kitchen and THREE BEDROOMS. Externally the property has a DRIVEWAY, GARAGE and GARDENS to both the front and rear. The location is close ...
Property Oracle says ..
This property is located in Chinley, Derbyshire, and is listed for £299,000. The average property price in the area is £295,393, with an average price per square foot of £301. This property has 897 square feet, and is slightly below the average size for the area. The property appears to be in reasonable condition, although some updating may be needed to the kitchen and bathroom. The property includes a small paved patio area, but does not have a large garden. The location is convenient to Chinley train station and several schools. Considering the property’s condition, size, and location, the list price seems reasonable, although not exceptionally good value compared to similar properties in the area.
Therefore, we give this property 5 / 10. *Disclaimer: This is our option and does constitute a recommendation or financial advice. Do your own research. *
- Price
- 6
- Condition
- 6
- Location
- 7
- Land
- 3
- Bedrooms
- 3
- Bathrooms
- 1
- Sqft (est)
- 897.00
The heatmap indicates the level of crime in the area. The color of the heatmap indicates the crime severity and recency.
Metrics Year-on-Year
- Average area value
- 257,500.00 £Decreased by 19.56 %
- Est sale value
- 259,233.00 £Increased by 4.71 %
- Average area rental value
- 929.00 £/moDecreased by 8.38 %
- Est letting value
- 897.00 £/mo
- Est rental Yield
- 4.33 %Increased by 13.95 %
- Crime Rate
- 158.00 %Unchanged by 0.00 %
Agent Activity
Gascoigne Halman created the listing.
Nearby Schools
| Name | Type | Ofsted | Distance |
|---|---|---|---|
| Peak School | Academy Special Converter | 0.90 KM | |
| Chinley Primary School | Foundation School | Good | 1.61 KM |
| Buxworth Primary School | Community School | Good | 2.82 KM |
| Chapel-En-Le-Frith High School | Community School | Good | 3.10 KM |
| Chapel-En-Le-Frith Cofe Vc Primary School | Voluntary Controlled School | Good | 4.01 KM |
Images
Nearby Streets
| Name | Average Price | Average Sqft | Distance |
|---|---|---|---|
| Devonshire Drive | £ 240,000 | 0 | 0.00 KM |
| Derwent Drive | £ 0 | 0 | 0.00 KM |
| St Mary's Close | £ 0 | 0 | 0.00 KM |
| Hawthorn Close | £ 395,000 | 0 | 0.00 KM |
| Glenside | £ 0 | 0 | 0.00 KM |
Nearby Transport
| Name | NLC | TLC | Distance |
|---|---|---|---|
| Chinley | 2823 | CLY | 0.34 KM |
| Chapel-En-Le-Frith | 2762 | CEF | 3.89 KM |
| Whaley Bridge | 2772 | WBR | 4.93 KM |
| Furness Vale | 2952 | FNV | 5.39 KM |
| Dove Holes | 2766 | DVH | 7.16 KM |
Nearby Listings
| Address | Price | Type | Score | Distance |
|---|---|---|---|---|
| Manners Close, Chinley, High Peak | £ 299,000 | BUY | 5 / 10 | 0.00 KM |
| Portland Grove, Chinley, High Peak | £ 250,000 | BUY | 6 / 10 | 0.09 KM |
| Portland Grove, Chinley, High Peak | £ 250,000 | BUY | 5 / 10 | 0.09 KM |
| Portland Grove, High Peak, Derbyshire, SK23 6AD **PARKING** | £ 250,000 | BUY | 6 / 10 | 0.10 KM |
| Lower Lane, Chinley, SK23 | £ 330,000 | BUY | 6 / 10 | 0.10 KM |
Nearby Properties
| Address | Price | Distance |
|---|---|---|
| 17 Derwent Square | £ 172,500 | 0.07 KM |
| 10 Derwent Square | £ 205,000 | 0.07 KM |
| 18 Derwent Square | £ 175,000 | 0.07 KM |
| 12 Derwent Square | £ 132,000 | 0.07 KM |
| 1 Devonshire Drive | £ 123,000 | 0.10 KM |