Barnes Kingsnorth says ..
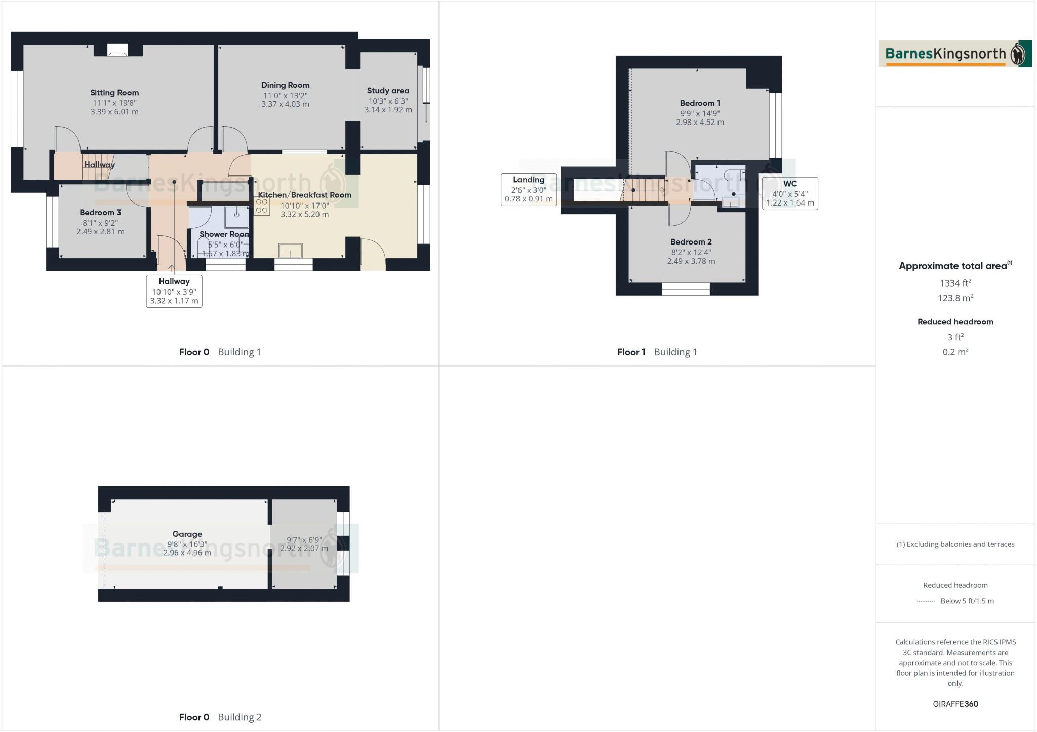
THOUGHTFULLY EXTENDED, this three bedroom, semi-detached chalet bungalow presents an excellent opportunity to acquire a well presented property offering spacious & flexible accommodation along with the chance to re-style to create your ideal home. Large level garden, driveway parking & garage...
Property Oracle says ..
This is a three-bedroom semi-detached property located on Hopgarden Road, Tonbridge. The property is situated in a convenient location, with nearby schools and transportation links. However, the internal condition suggests that the property would benefit from renovation and modernisation. It features a good-sized garden. The asking price of £490,000 appears reasonable considering the location and the need for renovation.
Therefore, we give this property 6 / 10. *Disclaimer: This is our option and does constitute a recommendation or financial advice. Do your own research. *
- Price
- 6
- Condition
- 5
- Location
- 7
- Land
- 7
- Bedrooms
- 3
- Bathrooms
- 1
The heatmap indicates the level of crime in the area. The color of the heatmap indicates the crime severity and recency.
Metrics Year-on-Year
- Average area value
- 259,821.00 £Increased by 8.05 %
- Average area rental value
- 1,011.00 £/moIncreased by 5.53 %
- Est rental Yield
- 4.67 %Decreased by 2.30 %
- Crime Rate
- 1.00 %Unchanged by 0.00 %
Agent Activity
Barnes Kingsnorth created the listing.
Nearby Schools
| Name | Type | Ofsted | Distance |
|---|---|---|---|
| Cage Green Primary School | Academy Sponsor Led | 0.39 KM | |
| Skills For Independence And Employability Ltd | Special Post 16 Institution | 0.52 KM | |
| Woodlands Primary School | Community School | Good | 0.69 KM |
| Hugh Christie School | Foundation School | Good | 0.69 KM |
| Ymca West Kent | Special Post 16 Institution | 1.36 KM |
Images
Nearby Streets
| Name | Average Price | Average Sqft | Distance |
|---|---|---|---|
| Constable Road | £ 0 | 0 | 0.00 KM |
| Wilson Road | £ 0 | 0 | 0.00 KM |
| Rochester Road | £ 0 | 0 | 0.00 KM |
| Briar Walk | £ 0 | 0 | 0.00 KM |
| Merlin Close | £ 0 | 0 | 0.00 KM |
Nearby Transport
| Name | NLC | TLC | Distance |
|---|---|---|---|
| Tonbridge | 5229 | TON | 3.11 KM |
| Hildenborough | 5236 | HLB | 6.66 KM |
| High Brooms | 5235 | HIB | 7.26 KM |
| Leigh (Kent) | 5294 | LIH | 8.83 KM |
| Borough Green And Wrotham | 5130 | BRG | 9.07 KM |
Nearby Listings
| Address | Price | Type | Score | Distance |
|---|---|---|---|---|
| Hopgarden Road, Tonbridge | £ 490,000 | BUY | 6 / 10 | 0.00 KM |
| Hopgarden Road, Tonbridge | £ 500,000 | BUY | 7 / 10 | 0.00 KM |
| Hopgarden Road, Tonbridge, Kent, TN10 | £ 450,000 | BUY | Unknown | 0.01 KM |
| Hopgarden Road, Tonbridge, Kent, TN10 | £ 500,000 | BUY | 6 / 10 | 0.24 KM |
| Hopgarden Road, Tonbridge, TN10 4QZ | £ 635,000 | BUY | 6 / 10 | 0.25 KM |
Nearby Properties
| Address | Price | Distance |
|---|---|---|
| 128 Hopgarden Road | £ 395,000 | 0.01 KM |
| 77 Hopgarden Road | £ 450,000 | 0.01 KM |
| 132 Hopgarden Road | £ 250,000 | 0.01 KM |
| 140 Hopgarden Road | £ 375,000 | 0.01 KM |
| 136 Hopgarden Road | £ 247,000 | 0.03 KM |