Barnsfield Lane, Buckfastleigh
By Howard Douglas
£ 500,000
Reviews
3 out of 5 stars
Howard Douglas says ..
A detached family sized bungalow in a non-estate position with large gardens and lovely open outlook at the rear
Property Oracle says ..
This property is a 4-bedroom bungalow located in Buckfastleigh, Devon. The property benefits from a large garden with mature trees and shrubs, offering a good degree of privacy. While the property shows signs of age, the interior is well-maintained and presented well. The kitchen and bathroom appear to be recently updated. The property is within reasonable proximity to local schools and amenities. The asking price of £500,000 is higher than the average price for the area, but it is justified given the size of the property, the large garden, and the overall condition.
Therefore, we give this property 7 / 10. *Disclaimer: This is our option and does constitute a recommendation or financial advice. Do your own research. *
- Price
- 6
- Condition
- 8
- Location
- 7
- Land
- 9
- Bedrooms
- 4
- Bathrooms
- 0
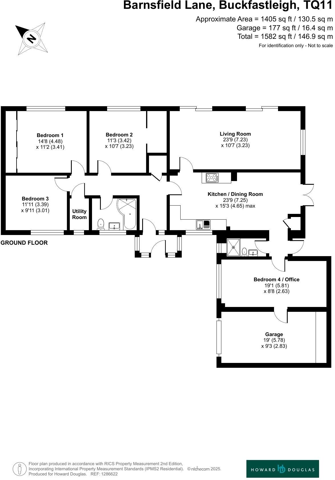
- Sqft (est)
- 1,367.00
- Lot (est)
- 1,582.00
The heatmap indicates the level of crime in the area. The color of the heatmap indicates the crime severity and recency.
Metrics Year-on-Year
- Average area value
- 347,013.00 £Decreased by 8.81 %
- Est sale value
- 385,494.00 £Increased by 12.35 %
- Average area rental value
- 940.00 £/moIncreased by 0.53 %
- Est letting value
- 0.00 £/mo
- Est rental Yield
- 3.25 %Increased by 10.17 %
- Crime Rate
- 2.00 %Unchanged by 0.00 %
Agent Activity
Howard Douglas created the listing.
Nearby Schools
| Name | Type | Ofsted | Distance |
|---|---|---|---|
| Buckfastleigh Primary School | Academy Converter | Requires improvement | 0.64 KM |
| Abc Ashburton And Buckfastleigh Children'S Centre | Children's Centre | 0.84 KM | |
| St Mary'S Catholic Primary School, Buckfast | Academy Converter | Good | 1.37 KM |
| Ashburton Primary School | Academy Converter | Good | 5.10 KM |
| Sands School | Other Independent School | 5.12 KM |
Images
Nearby Streets
| Name | Average Price | Average Sqft | Distance |
|---|---|---|---|
| Oaklands Close | £ 0 | 0 | 0.00 KM |
| Pioneer Terrace | £ 350,000 | 0 | 0.00 KM |
| New Road | £ 0 | 0 | 0.00 KM |
| Stormsdown Cottages | £ 0 | 0 | 0.00 KM |
| Stroud Road | £ 0 | 0 | 0.00 KM |
Nearby Listings
| Address | Price | Type | Score | Distance |
|---|---|---|---|---|
| Barnsfield Lane, Buckfastleigh | £ 500,000 | BUY | 7 / 10 | 0.00 KM |
| Oaklands Park, Buckfastleigh | £ 300,000 | BUY | 6 / 10 | 0.09 KM |
| Oaklands Park, Buckfastleigh | £ 219,950 | BUY | 6 / 10 | 0.18 KM |
| Oaklands Close, Buckfastleigh | £ 435,000 | BUY | 7 / 10 | 0.20 KM |
| Buckfastleigh, Devon | £ 355,000 | BUY | Unknown | 0.22 KM |
Nearby Properties
| Address | Price | Distance |
|---|---|---|
| 3 Barnsfield Lane | £ 204,500 | 0.03 KM |
| 2 Barnsfield Lane | £ 420,000 | 0.03 KM |
| 79 Oaklands Park | £ 119,995 | 0.10 KM |
| 98 Oaklands Park | £ 148,000 | 0.10 KM |
| 87 Oaklands Park | £ 39,000 | 0.10 KM |