Allday & Miller says ..
Offered to the market with no onwards chain, this three bedroom semi detached home offers the perfect family living space with huge potential to extend even further.
Property Oracle says ..
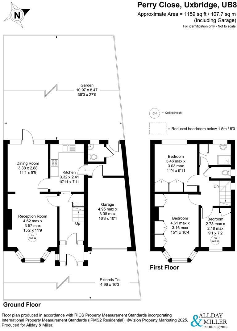
This semi-detached property in Perry Close, Yiewsley, is located within a reasonable distance of several schools, including Hillingdon Manor School and Wood End Park Academy, both rated as “Good” by Ofsted. Transportation links are also relatively convenient, with West Drayton and Hayes & Harlington TfL Rail stations within approximately 3km. The property itself appears to be in good condition, with a well-maintained garden. The kitchen and bathrooms appear to be dated but functional. The list price of £585,000 seems slightly high considering the average price of similar properties in the area (£400,243) and the relatively small size (257 sqft) compared to the area average (783 sqft). However, the property benefits from a larger-than-average plot size (1159 sqft) and its proximity to good schools and transport links. The property is a traditional style and would likely benefit from some modernisation.
Therefore, we give this property 7 / 10. *Disclaimer: This is our option and does constitute a recommendation or financial advice. Do your own research. *
- Price
- 6
- Condition
- 7
- Location
- 7
- Land
- 8
- Bedrooms
- 3
- Bathrooms
- 1
- Sqft (est)
- 257.00
- Lot (est)
- 1,159.00
The heatmap indicates the level of crime in the area. The color of the heatmap indicates the crime severity and recency.
Metrics Year-on-Year
- Average area value
- 295,000.00 £Decreased by 26.29 %
- Est sale value
- 140,579.00 £Increased by 4.19 %
- Average area rental value
- 1,643.00 £/moDecreased by 1.20 %
- Est letting value
- 771.00 £/moIncreased by 50.00 %
- Est rental Yield
- 6.68 %Increased by 33.87 %
- Crime Rate
- 3.00 %Unchanged by 0.00 %
Agent Activity
Allday & Miller created the listing.
Nearby Schools
| Name | Type | Ofsted | Distance |
|---|---|---|---|
| Hillingdon Manor School | Other Independent Special School | Good | 0.73 KM |
| Mcmillan Early Childhood Centre | Children's Centre | 0.78 KM | |
| Wood End Park Academy | Academy Converter | Good | 0.80 KM |
| Mcmillan Early Childhood Centre | Local Authority Nursery School | Outstanding | 0.97 KM |
| Hewens Primary School | Free Schools | Good | 1.26 KM |
Images
Nearby Streets
| Name | Average Price | Average Sqft | Distance |
|---|---|---|---|
| Cherry Grove | £ 0 | 0 | 0.00 KM |
| Collingwood Road | £ 555,625 | 0 | 0.00 KM |
| Old Orchard Close | £ 0 | 0 | 0.00 KM |
| Victoria Close | £ 535,000 | 0 | 0.00 KM |
| Moorcroft Lane | £ 0 | 0 | 0.00 KM |
Nearby Transport
| Name | NLC | TLC | Distance |
|---|---|---|---|
| West Drayton | 3174 | WDT | 3.10 KM |
| Hayes And Harlington | 3186 | HAY | 3.27 KM |
| Heathrow Terminals 2 And 3 (Rail Station Only) | 7090 | HXX | 5.36 KM |
| West Ruislip | 3059 | WRU | 5.74 KM |
| South Ruislip | 3057 | SRU | 6.66 KM |
Nearby Listings
| Address | Price | Type | Score | Distance |
|---|---|---|---|---|
| Perry Close, Hillingdon | £ 585,000 | BUY | 7 / 10 | 0.00 KM |
| Perry Close, Uxbridge, Middlesex | £ 679,950 | BUY | Unknown | 0.05 KM |
| Perry Close, Uxbridge | £ 275,000 | BUY | 5 / 10 | 0.05 KM |
| Perry Close, Hillingdon, UB8 | £ 325,000 | BUY | 6 / 10 | 0.06 KM |
| Perry Close, Uxbridge, UB8 | £ 300,000 | BUY | 6 / 10 | 0.06 KM |
Nearby Properties
| Address | Price | Distance |
|---|---|---|
| 42 Goulds Green | £ 163,500 | 0.10 KM |
| Mill Bourne | £ 439,000 | 0.10 KM |
| 18 Goulds Green | £ 458,000 | 0.10 KM |
| 20 Goulds Green | £ 240,000 | 0.10 KM |
| 22 Goulds Green | £ 425,000 | 0.10 KM |