Bluebell Road, Mulbarton, Norwich
ST

Bluebell Road, Mulbarton, Norwich

By Starkings & Watson

£ 300,000

Reviews

3 out of 5 stars

Starkings & Watson says ..

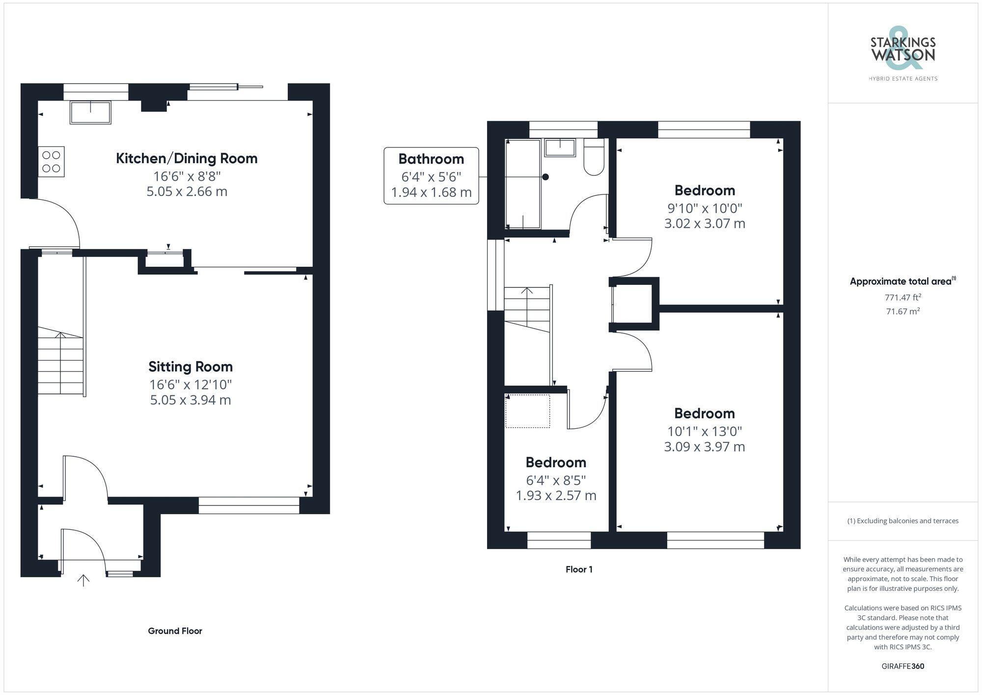
This MODERNISED family home occupies a DESIRABLE LOCATION close to the village SCHOOL and SHOPS. With OFF ROAD PARKING to front and side, the GARAGE is detached and oversized including a MECHANICS PIT. The PORCH ENTRANCE leads to the 16’ SITTING ROOM with the stairs rising up, whilst the 16’ KI...

Property Oracle says ..

This property is located in Mulbarton, a village in South Norfolk. The area benefits from a primary school (Mulbarton Primary School) within 0.52km, which is rated as ‘Good’ by Ofsted. While there is no nearby transportation information provided, the proximity to Norwich suggests reasonable access to amenities and transport links. The property itself appears to be in good condition based on the provided photos. The interior is well-maintained and presented. The property includes a garden, adding to its appeal. Pricing information for similar properties in the area is limited, however, nearby streets show a range of prices, indicating some variability in the market. Without more precise comparable properties, it is difficult to definitively assess the list price of £300,000.

Therefore, we give this property 7 / 10. *Disclaimer: This is our option and does constitute a recommendation or financial advice. Do your own research. *

Price
6
Condition
8
Location
7
Land
7
Bedrooms
3
Bathrooms
1
Sqft (est)
771.47

The heatmap indicates the level of crime in the area. The color of the heatmap indicates the crime severity and recency.

Metrics Year-on-Year

Average area value
605,000.00 £
Increased by 26.89 %
from 476,781.00 £
Est sale value
262,299.80 £
Increased by 14.48 %
from 229,126.59 £
Average area rental value
1,123.00 £/mo
Increased by 1.17 %
from 1,110.00 £/mo
Est letting value
0.00 £/mo
from 0.00 £/mo
Est rental Yield
2.23 %
Decreased by 20.07 %
from 2.79 %
Crime Rate
85.00 %
Unchanged by 0.00 %
from 85.00 %

Agent Activity

  • Starkings & Watson created the listing.

Nearby Schools

NameTypeOfstedDistance
Mulbarton Primary SchoolCommunity SchoolGood0.52 KM
Newton Flotman Church Of England Primary AcademyAcademy Sponsor Led2.98 KM
Preston Church Of England Voluntary Controlled Primary SchoolVoluntary Controlled SchoolGood4.58 KM
Hapton Church Of England Voluntary Aided Primary SchoolVoluntary Aided SchoolGood5.31 KM
Cringleford Ce Va Primary SchoolVoluntary Aided SchoolOutstanding5.72 KM

Images

Nearby Streets

NameAverage PriceAverage SqftDistance
Elm Close £ 000.00 KM
South Acre £ 525,00000.00 KM
Robin Close £ 000.00 KM

Nearby Listings

AddressPriceTypeScoreDistance
Gowing Road, Mulbarton, Norwich £ 265,000BUY6 / 100.08 KM
Bluebell Road, Mulbarton £ 325,000BUYUnknown0.09 KM
Wild Radish Close, Mulbarton £ 330,000BUY7 / 100.11 KM
Wild Radish Close, Mulbarton £ 270,000BUY8 / 100.12 KM
Woodyard Close, Mulbarton £ 325,000BUY7 / 100.15 KM

Nearby Properties

AddressPriceDistance
9 Gowing Road £ 172,5000.07 KM
28 Gowing Road £ 159,0000.07 KM
2 Gowing Road £ 215,0000.07 KM
4 Gowing Road £ 216,0000.07 KM
10 Gowing Road £ 294,2500.07 KM