Limetree Avenue, Eastbourne
By Archer & Partners
£ 285,000
Reviews
3 out of 5 stars
Archer & Partners says ..
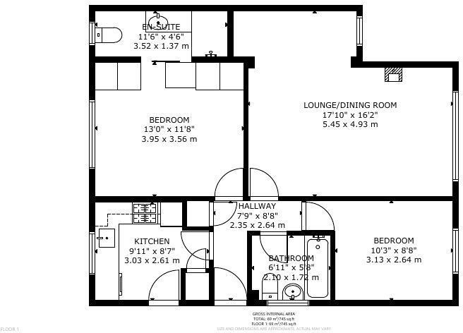
SEE OUR 3D VIRTUAL TOUR - Detached bungalow - Small Close - Extended - Updating Required - Lounge/Diner - Kitchen - 2 Bedrooms - En Suite to Master - Bathroom/wc - Gas c/h & Dbl glz - 50' x 28' Rear Garden - Garage This extended 2-bedroomed detached bungalow offers spacious accommodation...
Property Oracle says ..
This is a 2-bedroom detached bungalow in Ratton, Eastbourne. The property is in need of modernisation, especially the kitchen and bathrooms. The property has front and rear gardens, and a shed in the rear garden. Several schools are nearby, including The Lindfield School which is rated as ‘Outstanding’. Hampden Park (Sussex) is the closest train station at 1.88KM. The property is listed for £285,000, which seems reasonable given the condition of the property and the average price in the area.
Therefore, we give this property 6 / 10. *Disclaimer: This is our option and does constitute a recommendation or financial advice. Do your own research. *
- Price
- 7
- Condition
- 5
- Location
- 7
- Land
- 7
- Bedrooms
- 2
- Bathrooms
- 2
- Sqft (est)
- 772.10
The heatmap indicates the level of crime in the area. The color of the heatmap indicates the crime severity and recency.
Metrics Year-on-Year
- Average area value
- 590,421.00 £Increased by 34.04 %
- Est sale value
- 395,315.20 £Increased by 31.96 %
- Average area rental value
- 1,427.00 £/moDecreased by 43.31 %
- Est letting value
- 772.10 £/moDecreased by 50.00 %
- Est rental Yield
- 2.90 %Decreased by 57.73 %
- Crime Rate
- 4.00 %Unchanged by 0.00 %
Agent Activity
Archer & Partners created the listing.
Nearby Schools
| Name | Type | Ofsted | Distance |
|---|---|---|---|
| Oakwood Primary Academy | Academy Sponsor Led | Special Measures | 0.26 KM |
| The Lindfield School | Academy Special Converter | Outstanding | 0.52 KM |
| The Eastbourne Academy | Academy Sponsor Led | Good | 0.60 KM |
| Parkland Junior School | Academy Converter | Good | 0.97 KM |
| Parkland Infant School | Academy Converter | 0.97 KM |
Images
Nearby Streets
| Name | Average Price | Average Sqft | Distance |
|---|---|---|---|
| St. Pauls Close | £ 0 | 0 | 0.00 KM |
| Walsingham Close | £ 0 | 0 | 0.00 KM |
| Welbeck Close | £ 0 | 0 | 0.00 KM |
| Bluebird Way | £ 195,000 | 0 | 0.00 KM |
| Westminster Close | £ 337,500 | 0 | 0.00 KM |
Nearby Transport
| Name | NLC | TLC | Distance |
|---|---|---|---|
| Hampden Park (Sussex) | 5450 | HMD | 1.88 KM |
| Polegate | 5455 | PLG | 2.81 KM |
| Eastbourne | 5448 | EBN | 4.40 KM |
| Pevensey And Westham | 5461 | PEV | 6.71 KM |
| Pevensey Bay | 5462 | PEB | 8.71 KM |
Nearby Listings
| Address | Price | Type | Score | Distance |
|---|---|---|---|---|
| Limetree Avenue, Eastbourne | £ 285,000 | BUY | 6 / 10 | 0.00 KM |
| Laburnum Walk, Eastbourne | £ 269,950 | BUY | 6 / 10 | 0.09 KM |
| Laburnum Walk, Eastbourne | £ 289,950 | BUY | 6 / 10 | 0.10 KM |
| Rowan Avenue, Eastbourne | £ 300,000 | BUY | 7 / 10 | 0.10 KM |
| Rowan Avenue, Eastbourne | £ 350,000 | BUY | 7 / 10 | 0.11 KM |
Nearby Properties
| Address | Price | Distance |
|---|---|---|
| 8 Limetree Avenue | £ 253,000 | 0.05 KM |
| 16 Limetree Avenue | £ 200,000 | 0.05 KM |
| 18 Limetree Avenue | £ 235,000 | 0.05 KM |
| 9 Limetree Avenue | £ 205,000 | 0.05 KM |
| 12 Limetree Avenue | £ 260,000 | 0.05 KM |