York Street, Broadstairs, CT10
By Miles & Barr
£ 675,000
Reviews
2 out of 5 stars
Miles & Barr says ..
STUNNING DOUBLE FRONTED GEORGIAN COTTAGE IN THE HEART OF BROADSTAIRS!! Built in the 1800's Emilys Cottage is the chance to own a piece of history within central Broadstairs, the current owners have done a wonderful job of restoring the property and adding modern convenience whilst reta...
Property Oracle says ..
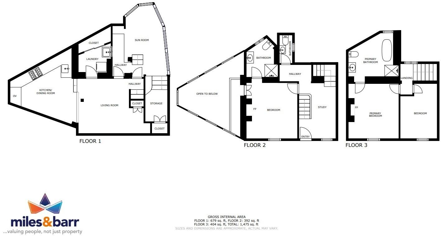
This is a semi-detached property located on York Street in Broadstairs. It features three bedrooms and two bathrooms within its 1,000 sqft. The property blends period charm with modern updates, presenting a unique living space. While it lacks extensive land, its central location offers convenient access to local amenities and transportation. The property is within proximity to several schools. The price is relatively high compared to the average for the street.
Therefore, we give this property 5 / 10. *Disclaimer: This is our option and does constitute a recommendation or financial advice. Do your own research. *
- Price
- 5
- Condition
- 7
- Location
- 7
- Land
- 4
- Bedrooms
- 3
- Bathrooms
- 2
- Sqft (est)
- 1,000.00
The heatmap indicates the level of crime in the area. The color of the heatmap indicates the crime severity and recency.
Metrics Year-on-Year
- Average area value
- 477,882.00 £Increased by 5.54 %
- Est sale value
- 459,000.00 £Increased by 37.01 %
- Average area rental value
- 1,256.00 £/moIncreased by 12.34 %
- Est letting value
- 1,000.00 £/mo
- Est rental Yield
- 3.15 %Increased by 6.42 %
- Crime Rate
- 78.00 %Unchanged by 0.00 %
Agent Activity
Miles & Barr created the listing.
Nearby Schools
| Name | Type | Ofsted | Distance |
|---|---|---|---|
| Bradstow School | Community Special School | Outstanding | 0.68 KM |
| Ekc Group | Further Education | 0.77 KM | |
| St Mildred'S Primary Infant School | Foundation School | Outstanding | 0.86 KM |
| Stone Bay School | Foundation Special School | Good | 1.05 KM |
| Haddon Dene School | Other Independent School | 1.16 KM |
Images
Nearby Streets
| Name | Average Price | Average Sqft | Distance |
|---|---|---|---|
| Serene Court | £ 500,000 | 0 | 0.00 KM |
| Chandos Road | £ 242,499 | 0 | 0.00 KM |
| Buckingham Road | £ 0 | 0 | 0.00 KM |
| Dundonald Road | £ 0 | 0 | 0.00 KM |
| Belvedere Road | £ 455,000 | 0 | 0.00 KM |
Nearby Transport
| Name | NLC | TLC | Distance |
|---|---|---|---|
| Broadstairs | 5006 | BSR | 0.89 KM |
| Dumpton Park | 5034 | DMP | 2.14 KM |
| Ramsgate | 5023 | RAM | 4.25 KM |
| Margate | 5018 | MAR | 8.23 KM |
Nearby Listings
| Address | Price | Type | Score | Distance |
|---|---|---|---|---|
| York Street, Broadstairs, CT10 | £ 675,000 | BUY | 5 / 10 | 0.00 KM |
| Chandos Road, Broadstairs, CT10 | £ 215,000 | BUY | 7 / 10 | 0.02 KM |
| Chandos Road, Broadstairs | £ 225,000 | BUY | 7 / 10 | 0.04 KM |
| York Street, Broadstairs, CT10 | £ 419,995 | BUY | 6 / 10 | 0.04 KM |
| York Street, Broadstairs, CT10 | £ 365,000 | BUY | 5 / 10 | 0.05 KM |
Nearby Properties
| Address | Price | Distance |
|---|---|---|
| 17 York Street | £ 367,000 | 0.01 KM |
| 9a York Street | £ 160,000 | 0.01 KM |
| 15 York Street | £ 510,000 | 0.01 KM |
| 11 York Street | £ 480,000 | 0.01 KM |
| 12 Chandos Road | £ 436,000 | 0.04 KM |