Hunters says ..
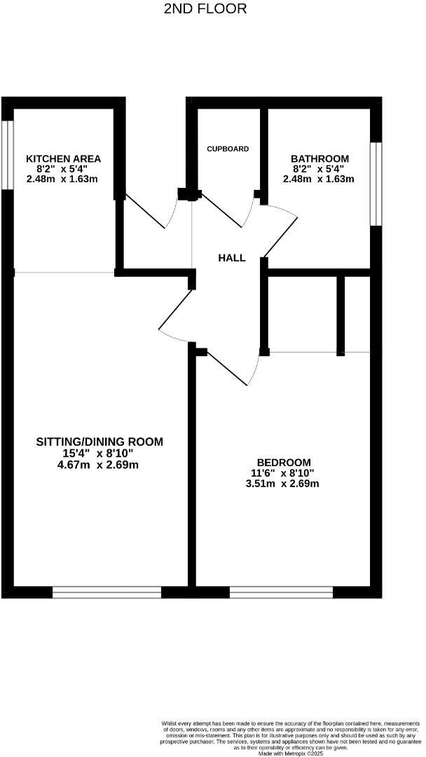
This delightful flat offers a perfect blend of comfort and convenience. With one well-proportioned bedroom, this property is ideal for individuals or couples seeking a tranquil living space. The flat features a welcoming reception room, providing a warm and inviting atmosphere for relaxation or e...
Property Oracle says ..
Therefore, we give this property 6 / 10. *Disclaimer: This is our option and does constitute a recommendation or financial advice. Do your own research. *
- Price
- 8
- Condition
- 8
- Location
- 8
- Land
- 1
- Bedrooms
- 1
- Bathrooms
- 1
- Sqft (est)
- 323.78
The heatmap indicates the level of crime in the area. The color of the heatmap indicates the crime severity and recency.
Metrics Year-on-Year
- Average area value
- 695,750.00 £Increased by 35.80 %
- Est sale value
- 188,763.74 £Increased by 15.22 %
- Average area rental value
- 1,400.00 £/moDecreased by 11.56 %
- Est letting value
- 323.78 £/moUnchanged by 0.00 %
- Est rental Yield
- 2.41 %Decreased by 35.04 %
- Crime Rate
- 32.00 %Unchanged by 0.00 %
from 512,325.00 £
from 163,832.68 £
from 1,583.00 £/mo
from 323.78 £/mo
from 3.71 %
from 32.00 %
Agent Activity
Hunters created the listing.
Nearby Schools
| Name | Type | Ofsted | Distance |
|---|---|---|---|
| Hythe Bay Children'S Centre | Children's Centre | 1.17 KM | |
| Hythe Bay Cofe Primary School | Voluntary Controlled School | Good | 1.26 KM |
| Saltwood Cofe Primary School | Voluntary Aided School | Outstanding | 1.39 KM |
| St Augustine'S Catholic Primary School | Voluntary Aided School | Good | 1.98 KM |
| Brockhill Park Performing Arts College | Academy Converter | Good | 2.75 KM |
Images
Nearby Streets
| Name | Average Price | Average Sqft | Distance |
|---|---|---|---|
| Spring House | £ 0 | 0 | 0.00 KM |
| Kings Head Lane | £ 0 | 0 | 0.00 KM |
| The Tile House | £ 0 | 0 | 0.00 KM |
| Mount Street | £ 325,000 | 0 | 0.00 KM |
| Church Hill | £ 600,000 | 0 | 0.00 KM |
Nearby Transport
| Name | NLC | TLC | Distance |
|---|---|---|---|
| Sandling | 5025 | SDG | 3.23 KM |
| Westenhanger | 5030 | WHA | 6.15 KM |
| Folkestone West | 5027 | FKW | 7.36 KM |
| Folkestone Central | 5035 | FKC | 9.02 KM |
Nearby Listings
| Address | Price | Type | Score | Distance |
|---|---|---|---|---|
| Douglas Avenue, Hythe | £ 185,000 | BUY | 6 / 10 | 0.00 KM |
| Douglas Avenue, Hythe, Kent | £ 119,500 | BUY | Unknown | 0.00 KM |
| Douglas Avenue, Hythe, Kent | £ 180,000 | BUY | Unknown | 0.00 KM |
| Douglas Avenue, Hythe, CT21 | £ 260,000 | BUY | 7 / 10 | 0.03 KM |
| Prospect Road, Hythe, Kent | £ 425,000 | BUY | 6 / 10 | 0.04 KM |
Nearby Properties
| Address | Price | Distance |
|---|---|---|
| 16 Douglas Avenue | £ 265,000 | 0.02 KM |
| 5 Douglas Avenue | £ 285,000 | 0.02 KM |
| 4 Douglas Avenue | £ 360,000 | 0.02 KM |
| Kianga | £ 70,000 | 0.02 KM |
| 3 Douglas Avenue | £ 272,500 | 0.02 KM |