Quantrills says ..
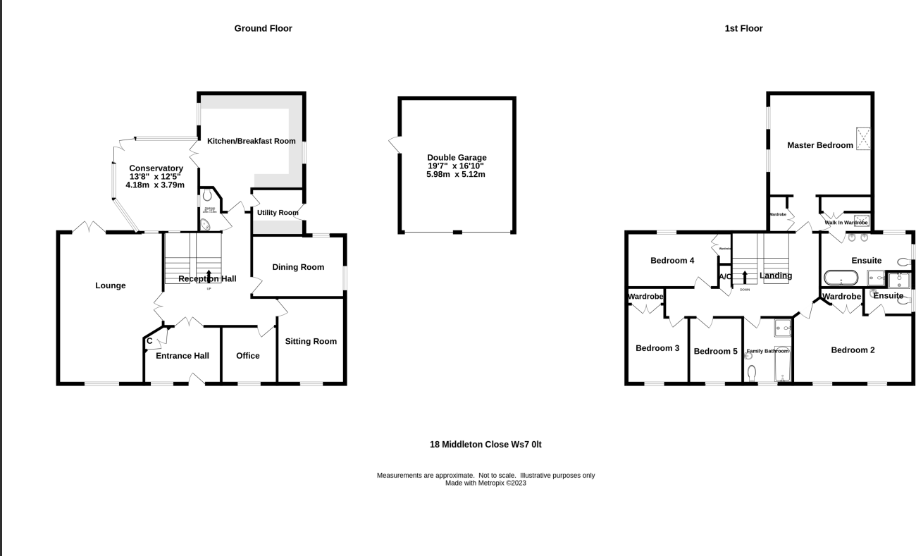
This spacious family residence occupies an attractive location in this sought after village convenient for all amenities including local shops schools and public transport. The well proportioned, double glazed and gas centrally heated family residence briefly comprises: Entrance Porch, Recepti...
Property Oracle says ..
This property is a five bedroom detached house located in Hammerwich, Lichfield. It benefits from a large garden, double garage and conservatory. The property is presented in good condition and benefits from modern fixtures and fittings throughout. The location is desirable and convenient, close to local amenities and schools. Transport links are also good with several train stations within easy reach. The asking price is high compared to the average price for the area, but this is justified by the size, condition, and desirability of the property. It is important to note that the area is popular and properties of this type are in high demand.
Therefore, we give this property 8 / 10. *Disclaimer: This is our option and does constitute a recommendation or financial advice. Do your own research. *
- Price
- 7
- Condition
- 9
- Location
- 9
- Land
- 8
- Bedrooms
- 5
- Bathrooms
- 3
- Sqft (est)
- 2,332.70
The heatmap indicates the level of crime in the area. The color of the heatmap indicates the crime severity and recency.
Metrics Year-on-Year
- Average area value
- 65,000.00 £Decreased by 67.00 %
- Est sale value
- 286,922.10 £Decreased by 39.11 %
- Average area rental value
- 725.00 £/moIncreased by 21.44 %
- Est letting value
- 2,332.70 £/mo
- Est rental Yield
- 13.38 %Increased by 267.58 %
- Crime Rate
- 23.00 %Unchanged by 0.00 %
Agent Activity
Quantrills created the listing.
Nearby Schools
| Name | Type | Ofsted | Distance |
|---|---|---|---|
| Fulfen Primary School | Community School | Good | 1.82 KM |
| Highfields Primary Academy | Academy Converter | 2.05 KM | |
| Springhill Primary Academy | Academy Sponsor Led | Good | 2.46 KM |
| Ridgeway Primary School | Foundation School | Good | 2.59 KM |
| Millfield Primary School | Community School | Good | 3.33 KM |
Images
Nearby Streets
| Name | Average Price | Average Sqft | Distance |
|---|---|---|---|
| Mill Lane | £ 760,000 | 0 | 0.00 KM |
| Forge Close | £ 360,000 | 0 | 0.00 KM |
| Trent Close | £ 0 | 0 | 0.00 KM |
| Church Road | £ 795,000 | 0 | 0.00 KM |
| St Peter's Road | £ 360,000 | 0 | 0.00 KM |
Nearby Transport
| Name | NLC | TLC | Distance |
|---|---|---|---|
| Shenstone | 1178 | SEN | 6.95 KM |
| Lichfield City | 1177 | LIC | 8.57 KM |
| Blake Street | 1176 | BKT | 9.17 KM |
Nearby Listings
| Address | Price | Type | Score | Distance |
|---|---|---|---|---|
| Middleton Close, Hammerwich | £ 695,000 | BUY | 8 / 10 | 0.00 KM |
| Middleton Close, Hammerwich, Burntwood, Staffordshire, WS7 | £ 650,000 | BUY | 7 / 10 | 0.01 KM |
| Mill Lane, Hammerwich | £ 795,000 | BUY | 7 / 10 | 0.09 KM |
| Meerash Lane, Hammerwich, WS7 0LF | £ 270,000 | BUY | 7 / 10 | 0.12 KM |
| Meerash Lane, Hammerwich, Burntwood, WS7 0LF | £ 270,000 | BUY | Unknown | 0.12 KM |
Nearby Properties
| Address | Price | Distance |
|---|---|---|
| 6 Middleton Close | £ 490,000 | 0.01 KM |
| 16 Middleton Close | £ 545,000 | 0.01 KM |
| 18 Middleton Close | £ 499,995 | 0.01 KM |
| Mill Cottage | £ 820,000 | 0.10 KM |
| Windward | £ 575,000 | 0.10 KM |