Newdawn Place, Cheltenham, GL51 0FR
By Luke Heyden Property, Powered by eXp UK
£ 325,000
Reviews
3 out of 5 stars
Luke Heyden Property, Powered by eXp UK says ..
A well presented three bedroom semi-detached house located, with two off road parking spaces and a garden.
Property Oracle says ..
This property is a 3-bedroom, 2-bathroom semi-detached house located in Cheltenham, Gloucestershire. The property benefits from being close to local schools and transport links. While the images show a well-maintained and modern interior, the plot size is quite small. The list price is significantly below the average price for the area, making it potentially good value for money, however more information on the size of the property would be needed to make a more informed judgement.
Therefore, we give this property 7 / 10. *Disclaimer: This is our option and does constitute a recommendation or financial advice. Do your own research. *
- Price
- 8
- Condition
- 9
- Location
- 8
- Land
- 3
- Bedrooms
- 3
- Bathrooms
- 2
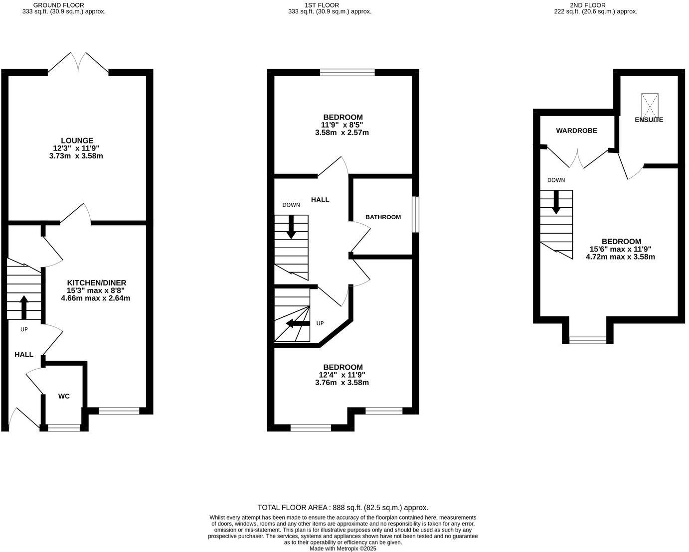
- Sqft (est)
- 888.00
The heatmap indicates the level of crime in the area. The color of the heatmap indicates the crime severity and recency.
Metrics Year-on-Year
- Average area value
- 513,942.00 £Decreased by 2.28 %
- Est sale value
- 507,048.00 £Decreased by 5.93 %
- Average area rental value
- 2,061.00 £/moIncreased by 1.93 %
- Est letting value
- 1,776.00 £/moUnchanged by 0.00 %
- Est rental Yield
- 4.81 %Increased by 4.34 %
- Crime Rate
- 4.00 %Unchanged by 0.00 %
Agent Activity
Luke Heyden Property, Powered by eXp UK created the listing.
Nearby Schools
| Name | Type | Ofsted | Distance |
|---|---|---|---|
| All Saints' Academy, Cheltenham | Academy Sponsor Led | Good | 0.44 KM |
| Hesters Way Children'S Centre | Children's Centre | 0.65 KM | |
| Hesters Way Primary School | Community School | Requires improvement | 0.66 KM |
| Rowanfield Children'S Centre | Children's Centre | 0.84 KM | |
| Rowanfield Infant School | Academy Converter | 0.89 KM |
Images
Nearby Streets
| Name | Average Price | Average Sqft | Distance |
|---|---|---|---|
| O'Brien Road | £ 250,000 | 0 | 0.00 KM |
| Russet Road | £ 270,000 | 0 | 0.00 KM |
| Tanners Lane | £ 240,000 | 0 | 0.00 KM |
| Furlong Close | £ 0 | 0 | 0.00 KM |
| Brooklyn Road | £ 426,889 | 0 | 0.00 KM |
Nearby Transport
| Name | NLC | TLC | Distance |
|---|---|---|---|
| Cheltenham Spa | 4731 | CNM | 1.90 KM |
| Ashchurch For Tewkesbury | 4700 | ASC | 9.54 KM |
Nearby Listings
| Address | Price | Type | Score | Distance |
|---|---|---|---|---|
| Newdawn Place,Cheltenham,GL51 0FR | £ 350,000 | BUY | 7 / 10 | 0.00 KM |
| Newdawn Place, Cheltenham, GL51 0FR | £ 325,000 | BUY | 7 / 10 | 0.00 KM |
| Newdawn Place, Cheltenham, GL51 | £ 360,000 | BUY | 7 / 10 | 0.02 KM |
| Newdawn Place, Cheltenham, Gloucestershire, GL51 | £ 375,000 | BUY | 7 / 10 | 0.02 KM |
| Newdawn Place, Cheltenham, Gloucestershire | £ 350,000 | BUY | Unknown | 0.02 KM |
Nearby Properties
| Address | Price | Distance |
|---|---|---|
| 7 Newdawn Place | £ 250,000 | 0.03 KM |
| 3 Newdawn Place | £ 230,000 | 0.03 KM |
| 2 Newdawn Place | £ 315,000 | 0.03 KM |
| 9 Newdawn Place | £ 290,000 | 0.03 KM |
| 10 Newdawn Place | £ 315,000 | 0.05 KM |