Lawrence Rand says ..
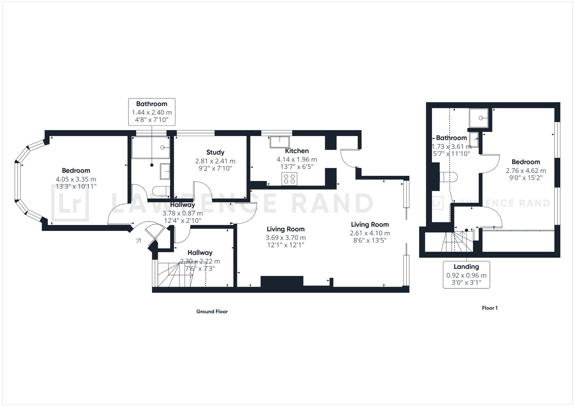
This beautifully presented three-bedroom, two bathroom extended semi detached bungalow, tastefully designed and decorated throughout to create stylish, outstanding living accommodation.
Property Oracle says ..
Therefore, we give this property 7 / 10. *Disclaimer: This is our option and does constitute a recommendation or financial advice. Do your own research. *
- Price
- 7
- Condition
- 9
- Location
- 8
- Land
- 7
- Bedrooms
- 3
- Bathrooms
- 2
The heatmap indicates the level of crime in the area. The color of the heatmap indicates the crime severity and recency.
Metrics Year-on-Year
- Average area value
- 530,000.00 £Increased by 14.03 %
- Average area rental value
- 1,816.00 £/moDecreased by 11.93 %
- Est rental Yield
- 4.11 %Decreased by 22.74 %
- Crime Rate
- 4.00 %Unchanged by 0.00 %
from 464,805.00 £
from 2,062.00 £/mo
from 5.32 %
from 4.00 %
Agent Activity
Lawrence Rand created the listing.
Nearby Schools
| Name | Type | Ofsted | Distance |
|---|---|---|---|
| St Swithun Wells Catholic Primary School | Voluntary Aided School | Outstanding | 0.74 KM |
| Newnham Junior School | Community School | Outstanding | 0.92 KM |
| Newnham Infant And Nursery School | Community School | Good | 0.92 KM |
| Field End Infant School | Community School | Outstanding | 1.03 KM |
| Field End Junior School | Academy Converter | 1.03 KM |
Images
Nearby Streets
| Name | Average Price | Average Sqft | Distance |
|---|---|---|---|
| Broadhurst Gardens | £ 0 | 0 | 0.00 KM |
| Whitby Service Road | £ 535,000 | 0 | 0.00 KM |
| Garth Close | £ 0 | 0 | 0.00 KM |
| Cat Alley | £ 0 | 0 | 0.00 KM |
| West Mead | £ 320,000 | 0 | 0.00 KM |
Nearby Transport
| Name | NLC | TLC | Distance |
|---|---|---|---|
| South Ruislip | 3057 | SRU | 1.22 KM |
| Northolt Park | 1478 | NLT | 4.38 KM |
| West Ruislip | 3059 | WRU | 4.43 KM |
| Hatch End | 1398 | HTE | 5.64 KM |
| Headstone Lane | 1434 | HDL | 5.93 KM |
Nearby Listings
| Address | Price | Type | Score | Distance |
|---|---|---|---|---|
| Pavilion Way, Ruislip, HA4 | £ 675,000 | BUY | 7 / 10 | 0.00 KM |
| Pavilion Way, Ruislip, HA4 | £ 675,000 | BUY | 7 / 10 | 0.00 KM |
| Pavilion Way, Ruislip | £ 599,999 | BUY | 6 / 10 | 0.11 KM |
| Pavilion Way, Ruislip | £ 550,000 | BUY | 6 / 10 | 0.11 KM |
| Pavilion Way, Ruislip, HA4 | £ 725,000 | BUY | 7 / 10 | 0.12 KM |
Nearby Properties
| Address | Price | Distance |
|---|---|---|
| 129 Whitby Road | £ 715,000 | 0.05 KM |
| 131 Whitby Road | £ 570,000 | 0.05 KM |
| 113 Pavilion Way | £ 333,500 | 0.11 KM |
| 131 Pavilion Way | £ 410,000 | 0.11 KM |
| 97 Pavilion Way | £ 598,000 | 0.11 KM |