Barn adjacent to Church Farm, Hall Lane, Kemberton, Shifnal
By Berriman Eaton
£ 250,000
Reviews
3 out of 5 stars
Berriman Eaton says ..
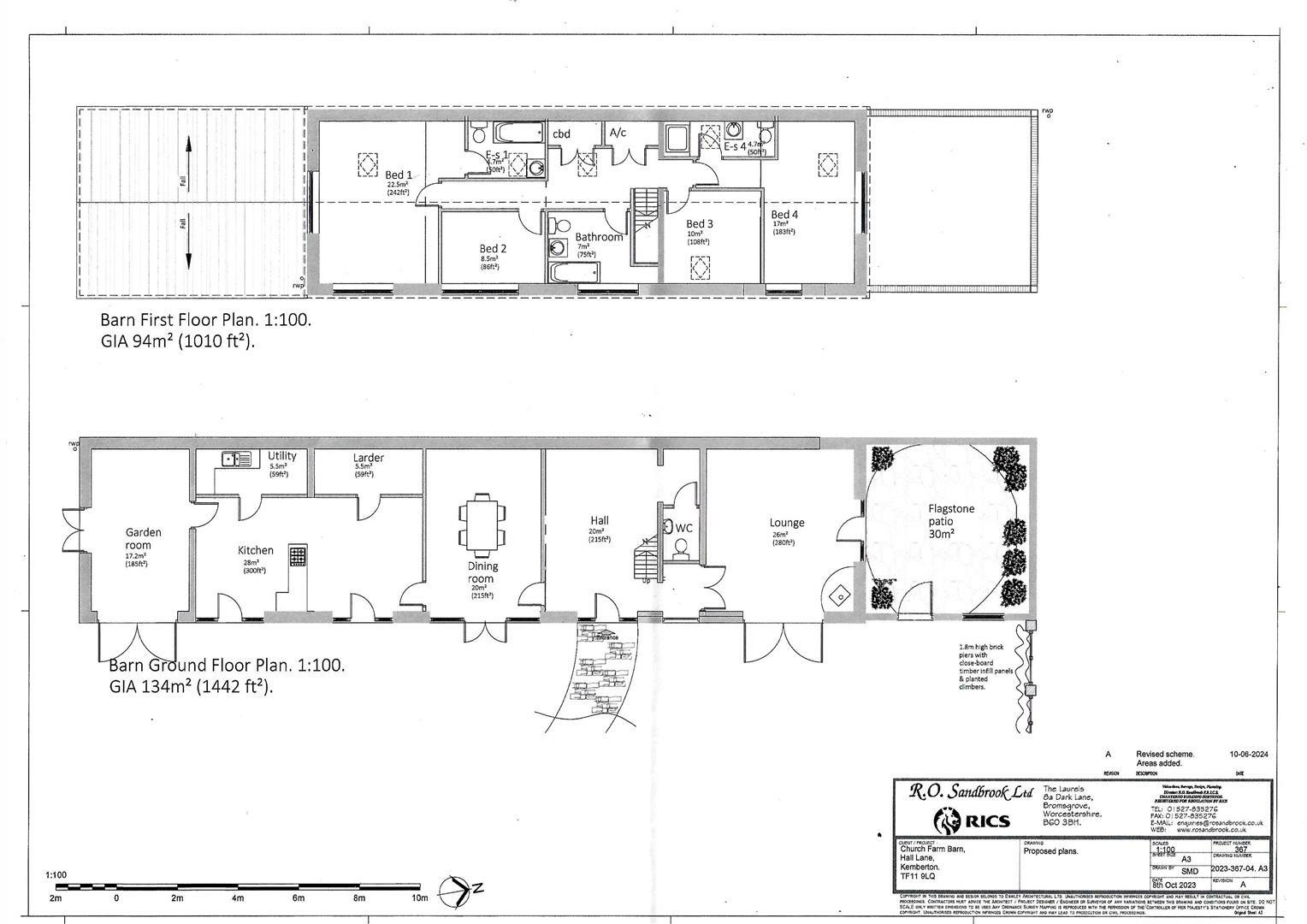
In a sought after village location with mature surroundings, this two storey barn with around 2,500sq.ft will make a large and unique home as a self build opportunity. Plans available upon request. For further information contact Shifnal - 3 miles, Telford - 5 mil...
Property Oracle says ..
The property is a barn conversion opportunity located in a desirable village near Shifnal and Telford. The area offers good access to amenities and transport links, including a train station. Nearby schools have varying Ofsted ratings. The barn appears structurally sound from the exterior images but requires substantial conversion. The plot size is not specified. The asking price is lower than comparable properties, but significant conversion costs must be considered. A detailed assessment of the property’s condition and land size is needed for a comprehensive evaluation.
Therefore, we give this property 6 / 10. *Disclaimer: This is our option and does constitute a recommendation or financial advice. Do your own research. *
- Price
- 6
- Condition
- 6
- Location
- 7
- Land
- 0
- Bedrooms
- 4
- Bathrooms
- 0
- Sqft (est)
- 2,015.00
The heatmap indicates the level of crime in the area. The color of the heatmap indicates the crime severity and recency.
Metrics Year-on-Year
- Average area value
- 243,278.00 £Decreased by 3.15 %
- Est sale value
- 630,695.00 £Increased by 28.81 %
- Average area rental value
- 1,186.00 £/moIncreased by 12.42 %
- Est letting value
- 2,015.00 £/moUnchanged by 0.00 %
- Est rental Yield
- 5.85 %Increased by 16.07 %
- Crime Rate
- 103.00 %Unchanged by 0.00 %
Agent Activity
Berriman Eaton created the listing.
Nearby Schools
| Name | Type | Ofsted | Distance |
|---|---|---|---|
| John Randall Primary School | Community School | Requires improvement | 3.81 KM |
| Holmer Lake Primary School | Community School | Good | 3.83 KM |
| Haughton School | Community Special School | Good | 3.89 KM |
| Grange Park Primary School | Academy Converter | Good | 4.07 KM |
| The Telford Park School | Academy Sponsor Led | Requires improvement | 4.09 KM |
Images
Nearby Streets
| Name | Average Price | Average Sqft | Distance |
|---|---|---|---|
| Brockton | £ 1,750,000 | 0 | 0.00 KM |
Nearby Transport
| Name | NLC | TLC | Distance |
|---|---|---|---|
| Shifnal | 4619 | SFN | 4.65 KM |
| Telford Central | 4691 | TFC | 6.42 KM |
| Oakengates | 4689 | OKN | 8.12 KM |
Nearby Listings
| Address | Price | Type | Score | Distance |
|---|---|---|---|---|
| Barn adjacent to Church Farm, Hall Lane, Kemberton, Shifnal | £ 250,000 | BUY | 6 / 10 | 0.00 KM |
| Old Smithy, Kemberton, Shifnal, Shropshire, TF11 9LY | £ 400,000 | BUY | 5 / 10 | 0.20 KM |
| The Row, Kemberton, Shifnal | £ 235,000 | BUY | 7 / 10 | 0.21 KM |
| Fairview, Kemberton | £ 799,995 | BUY | 7 / 10 | 0.38 KM |
| Midway House, Grooms Lane, Kemberton, Shifnal | £ 950,000 | BUY | 7 / 10 | 0.72 KM |
Nearby Properties
| Address | Price | Distance |
|---|---|---|
| 2 The Row | £ 170,000 | 0.20 KM |
| Oak Cottage | £ 320,000 | 0.88 KM |