Plot 11, Monks Dyke Road Development, Louth
By TES Property (Lincolnshire) Limited
£ 287,495
Reviews
3 out of 5 stars
TES Property (Lincolnshire) Limited says ..
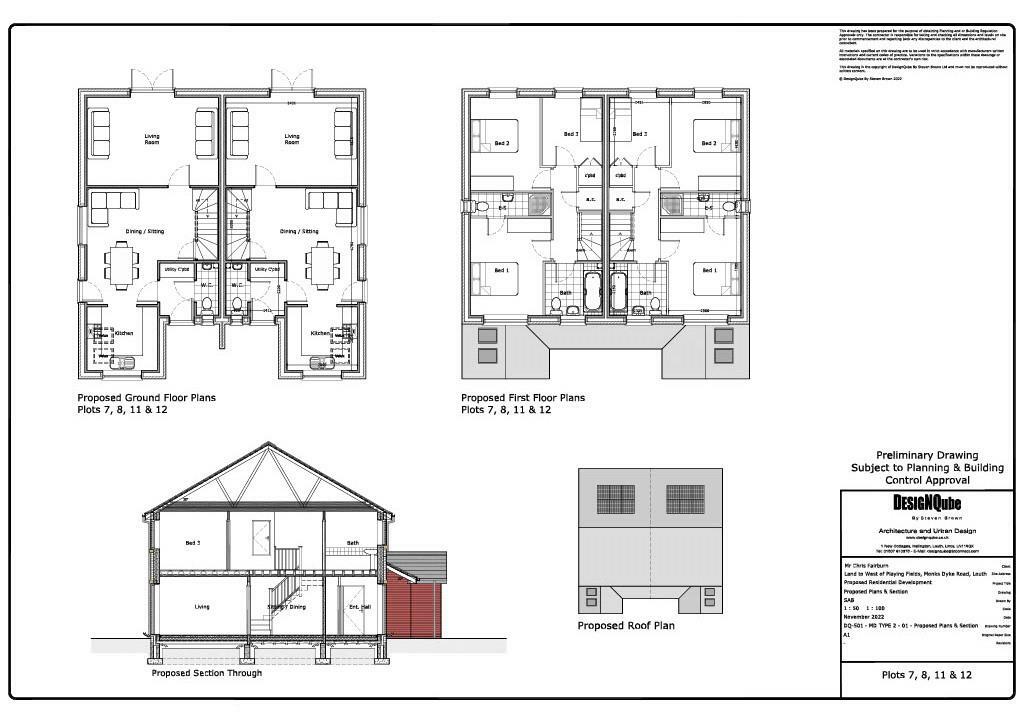
It is a pleasure for TES Property to offer for sale Plot 11 a luxury semi-detached house located on the Monks Dyke Road Development built by the well known C & L Fairburn Properties. This exclusive development offers a variety of semi-detached, mid terrace and end terrace properties, all...
Property Oracle says ..
This property is a three-bedroom, three-bathroom semi-detached house located in Louth, Lincolnshire on the Monks Dyke Road Development. The development itself appears to be modern and well maintained. The property is presented as a luxury home. The images provided showcase a contemporary interior design with high-quality finishes and modern appliances, suggesting it is well-equipped and move-in ready. The inclusion of a garage is a further positive aspect. The house’s position within the Monks Dyke Road development places it near several well-regarded schools, indicating a positive aspect for families. A lack of information regarding transport links and amenities is present. While the property is described as ‘luxury’, the relatively small amount of outdoor space should be noted as a potential downside for some buyers. The price should be considered in relation to comparable properties in the area.
Therefore, we give this property 6 / 10. *Disclaimer: This is our option and does constitute a recommendation or financial advice. Do your own research. *
- Price
- 7
- Condition
- 9
- Location
- 7
- Land
- 4
- Bedrooms
- 3
- Bathrooms
- 3
- Sqft (est)
- 1,000.00
The heatmap indicates the level of crime in the area. The color of the heatmap indicates the crime severity and recency.
Metrics Year-on-Year
- Average area value
- 197,200.00 £Decreased by 6.39 %
- Est sale value
- 223,000.00 £Decreased by 6.69 %
- Average area rental value
- 547.00 £/moDecreased by 9.88 %
- Est letting value
- 0.00 £/mo
- Est rental Yield
- 3.33 %Decreased by 3.76 %
- Crime Rate
- 6.00 %Unchanged by 0.00 %
Agent Activity
TES Property (Lincolnshire) Limited marked this listing as sold.
TES Property (Lincolnshire) Limited created the listing.
Nearby Schools
| Name | Type | Ofsted | Distance |
|---|---|---|---|
| St Michael'S Church Of England School, Louth | Voluntary Controlled School | Good | 0.15 KM |
| Louth Academy | Academy Sponsor Led | 0.20 KM | |
| Louth Kidgate Primary Academy | Academy Converter | Outstanding | 0.54 KM |
| Eastfield Infants And Nursery Academy | Academy Converter | 0.70 KM | |
| Louth And Holton-Le-Clay Children'S Centre | Children's Centre | 0.79 KM |
Images
Nearby Streets
| Name | Average Price | Average Sqft | Distance |
|---|---|---|---|
| Orme Lane | £ 256,424 | 0 | 0.00 KM |
| Priory Close | £ 239,950 | 0 | 0.00 KM |
| Tennyson Road | £ 172,000 | 0 | 0.00 KM |
| Railway Walk | £ 0 | 0 | 0.00 KM |
| Millers Court | £ 0 | 0 | 0.00 KM |
Nearby Listings
| Address | Price | Type | Score | Distance |
|---|---|---|---|---|
| Plot 11, Monks Dyke Road Development, Louth | £ 287,495 | BUY | 6 / 10 | 0.00 KM |
| Plot 14, Monks Dyke Road Development, Louth | £ 219,995 | BUY | 6 / 10 | 0.02 KM |
| Plot 25, Monks Dyke Road Development, Louth | £ 219,995 | BUY | 6 / 10 | 0.03 KM |
| Plot 29, Monks Dyke Road Development, Louth | £ 287,495 | BUY | 6 / 10 | 0.03 KM |
| Plot 23, Monks Dyke Road Development, Louth | £ 229,995 | BUY | 6 / 10 | 0.03 KM |
Nearby Properties
| Address | Price | Distance |
|---|---|---|
| 27 Monks Dyke Road | £ 63,000 | 0.07 KM |
| 21 Monks Dyke Road | £ 86,000 | 0.07 KM |
| 3 Little Lane | £ 145,125 | 0.15 KM |
| 21 Little Lane | £ 28,000 | 0.15 KM |
| 9 Priory Road | £ 30,900 | 0.15 KM |